Rodinný dom v Turčianskych Tepliciach
- [28.11. 2025]Zmazať/ Upraviť/ Topovať

Predaj rodinného domu – výborná lokalita, blízko centra a akvaparku
Na predaj priestranný rodinný dom nachádzajúci sa len 150 m od akvaparku a 200 m od centra mesta. Výborná strategická poloha – v pešej dostupnosti stanica, park a farebná fontána.
Dom má 2 podlažia + suterén, vhodný pre väčšiu rodinu, ubytovacie zariadenie alebo personálne bývanie.
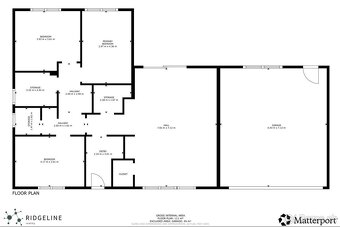
Dispozícia:
Prízemie: 1 jednolôžková izba, 2 dvojlôžkové izby, 1 trojlôžková izba, jedáleň.
Poschodie: 2 trojlôžkové izby, kuchyňa, kúpeľňa, menšia jedáleň.
Suterén: práčovňa, sušiareň, sklad, kancelária, sociálne zariadenia pre zamestnancov, sprcha, WC, prezliekareň + garáž využívaná ako sklad.
Rekonštrukcia prebehla pred 13 rokmi – menená elektroinštalácia, kúpeľne, WC, podlahy, stierky, kotolňa aj úpravy suterénu.
Vhodné aj ako penzión, dom pre personál alebo rodinné sídlo s možnosťou rozšírenia.
Neváhajte nás kontaktovať pre viac informácií alebo dohodnutie obhliadky!
Predáme aj Vašu nehnuteľnosť. Pomôžeme Vám pri príprave nehnuteľnosti na predaj. Zabezpečíme vypracovanie profesionálnych kúpnych zmlúv, znaleckého posudku, vybavíme potrebné záležitosti na katastri, zabezpečíme odovzdanie nehnuteľnosti a prepis energií. V prípade potreby zabezpečíme statický posudok, vypracovanie geometrických plánov, vypratanie nehnuteľnosti a právne poradenstvo. Nájdete nás v kancelárií na adrese: A. Sládkoviča 1 Zvolen oproti HLAVNEJ POŠTE a vedľa SLSP. Bližšie informácie Vám poskytneme na e-mail: Tel. č. +421 905 285 610
Naša spoločnosť Vám rada poskytne služby ZMENÁRNE a to predaj a nákup valuty v cudzej mene - zmenárenská činnosť pre fyzické aj právnické osoby.
Nezmeškajte túto jedinečnú príležitosť! Kontaktujte nás a dohodnite si obhliadku ešte dnes. Váš vysnívaný domov vás čaká!
Zastavaná plocha: 833m²
Celková rozloha: 979m²
Vlastníctvo: osobné
Terén: rovina
Na predaj priestranný rodinný dom nachádzajúci sa len 150 m od akvaparku a 200 m od centra mesta. Výborná strategická poloha – v pešej dostupnosti stanica, park a farebná fontána.
Dom má 2 podlažia + suterén, vhodný pre väčšiu rodinu, ubytovacie zariadenie alebo personálne bývanie.
Dispozícia:
Prízemie: 1 jednolôžková izba, 2 dvojlôžkové izby, 1 trojlôžková izba, jedáleň.
Poschodie: 2 trojlôžkové izby, kuchyňa, kúpeľňa, menšia jedáleň.
Suterén: práčovňa, sušiareň, sklad, kancelária, sociálne zariadenia pre zamestnancov, sprcha, WC, prezliekareň + garáž využívaná ako sklad.
Rekonštrukcia prebehla pred 13 rokmi – menená elektroinštalácia, kúpeľne, WC, podlahy, stierky, kotolňa aj úpravy suterénu.
Vhodné aj ako penzión, dom pre personál alebo rodinné sídlo s možnosťou rozšírenia.
Neváhajte nás kontaktovať pre viac informácií alebo dohodnutie obhliadky!
Predáme aj Vašu nehnuteľnosť. Pomôžeme Vám pri príprave nehnuteľnosti na predaj. Zabezpečíme vypracovanie profesionálnych kúpnych zmlúv, znaleckého posudku, vybavíme potrebné záležitosti na katastri, zabezpečíme odovzdanie nehnuteľnosti a prepis energií. V prípade potreby zabezpečíme statický posudok, vypracovanie geometrických plánov, vypratanie nehnuteľnosti a právne poradenstvo. Nájdete nás v kancelárií na adrese: A. Sládkoviča 1 Zvolen oproti HLAVNEJ POŠTE a vedľa SLSP. Bližšie informácie Vám poskytneme na e-mail: Tel. č. +421 905 285 610
Naša spoločnosť Vám rada poskytne služby ZMENÁRNE a to predaj a nákup valuty v cudzej mene - zmenárenská činnosť pre fyzické aj právnické osoby.
Nezmeškajte túto jedinečnú príležitosť! Kontaktujte nás a dohodnite si obhliadku ešte dnes. Váš vysnívaný domov vás čaká!
Zastavaná plocha: 833m²
Celková rozloha: 979m²
Vlastníctvo: osobné
Terén: rovina
|
| |||||||||||||||||||||||||||||||
Kontaktovať inzerenta e-mailom
Kontaktovať e-mailom môže iba overený užívateľ.
Overenie je zadarmo.
Vaše telefónne číslo *
Kontaktovať e-mailom môže iba overený užívateľ.
Overenie je zadarmo.
Vaše telefónne číslo *
Podobné inzeráty
dom + veľká záhrada - Čremošné - okr. Turč.Teplice - [28.11. 2025]Ponúkame Vám na predaj rodinný dom/chalupu v obci ČREMOŠNĚ (okres Turčianske Teplice).Zastavaná plocha: dom - 137 m² + humno - 132 m²Pozemok: 1568 m²Na záhrade sú rodiace ovocné stromy (jablone, hrušky, čerešňa, orech...) a ríbezle.Materiál: prízemie - kameň (60cm múry) + poschodie - tehla (50cm múr ...
210 000 €
Turčianske Teplice
039 01
039 01
537 x
Označiť zlý inzerát Chybnú kategóriu Ohodnotiť užívateľa Zmazať/Upraviť/Topovať
Na predaj priestranný bungalov štádium holodom s dvojgarážou - TOP - [1.12. 2025]Ponúkame na predaj priestranný 4-izbový bungalov v mestskej časti Turčianskych Teplíc – Turčiansky Michal, časť Sever. Dom stojí na rovinatom pozemku o výmere 771 m². Úžitková plocha domu je približne 167 m², z toho cca 45 m² tvorí priestranná dvojgaráž so samostatným východom.
3D virtuálna prehl ...
275 000 €
Turčianske Teplice
039 01
039 01
101 x
Označiť zlý inzerát Chybnú kategóriu Ohodnotiť užívateľa Zmazať/Upraviť/Topovať
4-izbový bungalov s dvojgarážou, Turčiansky Michal (TT) - [25.11. 2025]Ponúkam na predaj priestranný 4-izbový bungalov v tichej časti Turčianskych Teplíc – Turčiansky Michal, časť Sever na rovinatom pozemoku 771 m².
Jeho úžitková plocha je 167 m² z toho cca 45 m² tvorí veľká dvojgaráž so samostatným východom.
Dispozícia domu:
vstupná chodba, veľká obývačka pre ...
275 000 €
Turčianske Teplice
039 01
039 01
364 x
Označiť zlý inzerát Chybnú kategóriu Ohodnotiť užívateľa Zmazať/Upraviť/Topovať
Rodinný dom - [21.11. 2025]Georgi Conev vám ponúka na predaj modernú novostavbu Drevo domu v Martine - Priekope, ktorá kombinuje komfort súčasného bývania s výhodami pokojného prostredia.
Ak hľadáte obrovský rodinný dom s 5 izbami, 2 kúpeľňami, práčovňou a „fakt veľkou obývačkou“ tak ste ho práve našli !
Pozrite si vide ...
359 990 €
Turčianske Teplice
039 01
039 01
478 x
Označiť zlý inzerát Chybnú kategóriu Ohodnotiť užívateľa Zmazať/Upraviť/Topovať
TARGETreal | Na predaj, nadštandardná novostavba - Rezidenci - [21.11. 2025]VIRTUÁLNA OBHLIADKA VZOROVÝ DOM NA KĽÚČ:
https://my.matterport.com/show/?m=vfrCbLMpCLq
DRON VIDEO:
https://youtu.be/fsaIEMuD3X0
Projekt REZIDENICA KOŠŤANY = Novostavba 14 moderných rodinných domov v pokojnej a vyhľadávanej lokalite s krásnymi výhľadmi na Malú a Veľkú Fatru.
Hlavné benefity nehnu ...
350 000 €
Turčianske Teplice
039 01
039 01
72 x
Označiť zlý inzerát Chybnú kategóriu Ohodnotiť užívateľa Zmazať/Upraviť/Topovať
Predpredaj dvojdomov - [14.11. 2025]Ponukam na predaj rodinné domy ktoré sa budú realizovať v príbehu roka 2026. Domy budú v štádiu holodom a okolie bude spravené na kľúč ploty chodníky parkovne miesta 2ks ku každému domu pre viac informácií kontaktovať na telefónnom čísle 0917598419
Fotky su ilustračné projekty sa kreslia
222 222 €
Turčianske Teplice
039 01
039 01
232 x
Označiť zlý inzerát Chybnú kategóriu Ohodnotiť užívateľa Zmazať/Upraviť/Topovať
Na predaj rodinný dom Turčianske Teplice - TOP - [26.11. 2025]✅ Nový priestranný dom
✅ Výborná dispozícia izieb
✅ Slnečný pozemok
✅ VMREALITY ponúk priestranný 5-izbový rodinný dom v meste Turčianske Teplice v časti Turčiansky Michal.
Tento nový a udržiavaný dom ponúka komfortné bývanie pre rodiny hľadajúce pokojné prostredie s výbornou dostupnosťou do ...
330 000 €
Turčianske Teplice
039 01
039 01
196 x
Označiť zlý inzerát Chybnú kategóriu Ohodnotiť užívateľa Zmazať/Upraviť/Topovať
TARGETreal | Na predaj rodinný dom v Turčianskych Tepliciach - [2.11. 2025]Dom, kde sa sny kutilov a záhradkárov menia na skutočnosť
Turčianske Teplice – Družstevná ulica
Dom s dielňami, 2 garážami a záhradou pri potoku
Ak hľadáte miesto, kde môžete naplno rozvinúť svoje nápady, tvoriť, opravovať, pestovať či oddychovať v objatí prírody, práve ste ho našli.
Tento 6-izbov ...
295 000 €
Turčianske Teplice
039 01
039 01
696 x
Označiť zlý inzerát Chybnú kategóriu Ohodnotiť užívateľa Zmazať/Upraviť/Topovať
NA PREDAJ ZA BEZKONKURENČNÚ CENU Rodinný dom/sídlo - [30.10. 2025]Objavte Svoje Vysnené Vidiecke Sídlo v Hornom Turci PRI BEZKONKURENČNEJ CENE!
Pre tých, ktorí túžia po kombinácii luxusu a vidieckeho šarmu, predstavujeme exkluzívne sídlo, ktoré splní očakávania aj tých najnáročnejších klientov. Ponúkame Vám jedinečnú príležitosť stať sa majiteľom vidieckeho dom ...
310 000 €
Turčianske Teplice
039 01
039 01
608 x
Označiť zlý inzerát Chybnú kategóriu Ohodnotiť užívateľa Zmazať/Upraviť/Topovať
Na predaj 3 moderné nízkoenergetické rodinné domy v obci Val - [17.10. 2025]Typ: Rodinný dom
Obec: Turčianske Teplice
Ponúkame vám výnimočnú príležitosť bývať v obľúbenej a pokojnej obci Valča, kde sa spája pokoj vidieka s výbornou dostupnosťou do okresného mesta Martin. Na predaj sú tri samostatné rodinné domy, každý v inom štádiu dokončenia – ideálne riešenie pre tých ...
219 000 €
Turčianske Teplice
039 01
039 01
528 x
Označiť zlý inzerát Chybnú kategóriu Ohodnotiť užívateľa Zmazať/Upraviť/Topovať