S vlastným kúrením, 4-izbový byt s loggiou na predaj, SNV
- [28.11. 2025]Zmazať/ Upraviť/ Topovať





















Firma ILP má pre vás EXKLUZÍVNE na predaj 4-izbový byt s loggiou na sídlisku Tarča v meste Spišská Nová Ves.
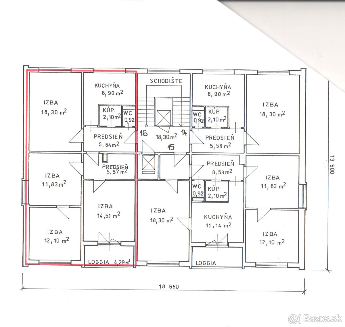
Úžitková plocha nehnuteľnosti je 85,87 m2, vrátane loggie a pivnice.
Dispozične pozostáva z chodby (5,80 m2), štyroch izieb (18,30 m2, 12,10 m2, 12,10 m2, 14,51 m2), kuchyne (8,96 m2) s kuchynskou linkou na mieru do L, kúpeľne s vaňou (2,10 m2), samostatného WC (0,94 m2), chodby so šatníkom (5,65 m2) a loggie (4,29 m2). K bytu prislúcha pivnica na prízemí bytového domu s rozlohou 1,12 m2.
Nehnuteľnosť prešla rekonštrukciou: kuchynská linka na mieru, obklady v kúpeľni a toalete, dlažba v kuchyni, chodbe, kúpeľni a toalete, interiérové dvere so sklami, plastové okná a drevené parkety v izbách. Elektroinštalácia je zrekonštruovaná v kuchyni, kúpeľni a chodbe. Nové bezpečnostné vchodové dvere ADLO.
Orientácia bytu je na tri svetové strany a je celodenne slnečný a presvetlený. Na východ je orientovaná detská izba a spálňa, na juh je orientovaná jedáleň a na juhozápad je orientovaná obývacia izba a kuchyňa.
Nachádza na 5. poschodí v 10-poschodovom panelovom bytovom dome s dvoma novými výťahmi.
Bytový dom je zateplený, nemá vyhotovený energetický certifikát.
Mesačné náklady pre Správcovskú firmu sú 111 EUR, z toho fond opráv je 62,17 EUR. Náklady na plyn sú 50 EUR a elektrinu 28 EUR mesačne.
Na sídlisku Tarča, kde sa byt nachádza, je kompletná občianska vybavenosť: jasle, škôlka, škola, potraviny, zdravotnícke zariadenie, lekáreň, potraviny a neďaleko bytového domu je zastávka MHD.
K bytu je možné dokúpiť GARÁŽ s rozlohou 23 m2, ktorá sa nachádza neďaleko bytového domu na Brezovej ulici.
VÝHODY NEHNUTEĽNOSTI:
– slnečný,
– priestranný,
– výhľad na tri svetové strany,
– dva výťahy
– zrekonštruovaný a udržiavaný bytový dom,
– možné dokúpenie garáže.
Vychádzame z informácii od klienta.
Cena bytu je 140.000,- EUR.
Voľný ihneď, alebo na základe dohody.
Videoobhliadka k dispozícii.
Zaujala vás táto príležitosť?
Volajte na číslo 0903 147 470, Eva Podoben ČONTOŠOVÁ vám veľmi rada pomôže a poradí.
Naša firma vám je k dispozícii v právnom poradenstve, príprave zmlúv, PREPISE ENERGIÍ a aj v prípade hľadania možnosti FINANCOVANIA.
Firma ILP svojim klientom zároveň vie poradiť s prerobením priestoru novej nehnuteľnosti, s jej predbežným rozpočtom a s VÝSTAVBOU RODINNÝCH DOMOV.
Ceny nehnuteľností sú stanovené majiteľmi a naše uvedené ceny zahŕňajú provízie s kompletným servisom spojeným so zmenou bývania.
Viac fotiek, ďalšie nehnuteľnosti a informácie o našej firme nájdete na našej webovej stránke www.ilp.sk.
https://realitynapredaj.sk/nehnutelnost/priestranny-4-izbovy-byt-s-loggiou-na-predaj-v-snv-sidlisku-tarca/
Úžitková plocha nehnuteľnosti je 85,87 m2, vrátane loggie a pivnice.
Dispozične pozostáva z chodby (5,80 m2), štyroch izieb (18,30 m2, 12,10 m2, 12,10 m2, 14,51 m2), kuchyne (8,96 m2) s kuchynskou linkou na mieru do L, kúpeľne s vaňou (2,10 m2), samostatného WC (0,94 m2), chodby so šatníkom (5,65 m2) a loggie (4,29 m2). K bytu prislúcha pivnica na prízemí bytového domu s rozlohou 1,12 m2.
Nehnuteľnosť prešla rekonštrukciou: kuchynská linka na mieru, obklady v kúpeľni a toalete, dlažba v kuchyni, chodbe, kúpeľni a toalete, interiérové dvere so sklami, plastové okná a drevené parkety v izbách. Elektroinštalácia je zrekonštruovaná v kuchyni, kúpeľni a chodbe. Nové bezpečnostné vchodové dvere ADLO.
Orientácia bytu je na tri svetové strany a je celodenne slnečný a presvetlený. Na východ je orientovaná detská izba a spálňa, na juh je orientovaná jedáleň a na juhozápad je orientovaná obývacia izba a kuchyňa.
Nachádza na 5. poschodí v 10-poschodovom panelovom bytovom dome s dvoma novými výťahmi.
Bytový dom je zateplený, nemá vyhotovený energetický certifikát.
Mesačné náklady pre Správcovskú firmu sú 111 EUR, z toho fond opráv je 62,17 EUR. Náklady na plyn sú 50 EUR a elektrinu 28 EUR mesačne.
Na sídlisku Tarča, kde sa byt nachádza, je kompletná občianska vybavenosť: jasle, škôlka, škola, potraviny, zdravotnícke zariadenie, lekáreň, potraviny a neďaleko bytového domu je zastávka MHD.
K bytu je možné dokúpiť GARÁŽ s rozlohou 23 m2, ktorá sa nachádza neďaleko bytového domu na Brezovej ulici.
VÝHODY NEHNUTEĽNOSTI:
– slnečný,
– priestranný,
– výhľad na tri svetové strany,
– dva výťahy
– zrekonštruovaný a udržiavaný bytový dom,
– možné dokúpenie garáže.
Vychádzame z informácii od klienta.
Cena bytu je 140.000,- EUR.
Voľný ihneď, alebo na základe dohody.
Videoobhliadka k dispozícii.
Zaujala vás táto príležitosť?
Volajte na číslo 0903 147 470, Eva Podoben ČONTOŠOVÁ vám veľmi rada pomôže a poradí.
Naša firma vám je k dispozícii v právnom poradenstve, príprave zmlúv, PREPISE ENERGIÍ a aj v prípade hľadania možnosti FINANCOVANIA.
Firma ILP svojim klientom zároveň vie poradiť s prerobením priestoru novej nehnuteľnosti, s jej predbežným rozpočtom a s VÝSTAVBOU RODINNÝCH DOMOV.
Ceny nehnuteľností sú stanovené majiteľmi a naše uvedené ceny zahŕňajú provízie s kompletným servisom spojeným so zmenou bývania.
Viac fotiek, ďalšie nehnuteľnosti a informácie o našej firme nájdete na našej webovej stránke www.ilp.sk.
https://realitynapredaj.sk/nehnutelnost/priestranny-4-izbovy-byt-s-loggiou-na-predaj-v-snv-sidlisku-tarca/
|
| |||||||||||||||||||||||||||||||
Kontaktovať inzerenta e-mailom
Kontaktovať e-mailom môže iba overený užívateľ.
Overenie je zadarmo.
Vaše telefónne číslo *
Kontaktovať e-mailom môže iba overený užívateľ.
Overenie je zadarmo.
Vaše telefónne číslo *
