026h 3 izb. byt v apartmánovom komplexe Košice - Sever
- [27.11. 2025]Zmazať/ Upraviť/ Topovať

























Do dlhodobého nájmu ponúkame atypický bezbariérový byt s dvoma balkónmi v uzavretom obytnom komplexe a to vrátane parkovacieho miesta.
Lokalita: okrajová vilová štvrť mesta v susedstve obľúbenej rekreačnej zóny.
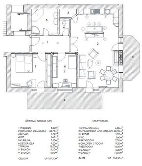
Popis bytu: Dispozícia bytu o rozlohe 104 m2 + balkóny je zrejmá z priloženého pôdorysu.
Byt umiestnený na 3.poschodí bytového domu je v nadštandardnom prevedení, drevené a keramické podlahy, kvalitné zariadenie, sanita, svietidlá, moderná kuchynská linka so spotrebičmi značky Bosch, samostatná priestranná kúpeľňa s práčkou a sušičkou, rohovou vaňou, sprchovým kútom s masážnym boxom a parnou saunou. Cez domový telefón je možné komunikovať s návštevou pri bráne. V kuchyni, WC a kúpeľni je aj podlahové kúrenie. V obývacej miestnosti je krb na drevo, zabudovaný systém domáceho kina, nezávislý TV, počítačový a telefónny rozvod. Televízny signál je možné prijímať cez satelitný rozvod telefónu T-com sieť (Magio), alebo UPS kábelový rozvod.
Popis areálu: Obytný komplex tvorí 11 apartmanových bytov a 4 rodinné domy so samostatnou infraštruktúrou a parkovaním pri dome, priamo v oplotenom a bezpečnom areály. Súčasťou dvorovej časti je aj oddychová zeleň s lavičkami a nočným záhradným osvetlením. Samozrejmosťou je aj detské ihrisko.
Kúrenie: plynový kotol, radiátory, + funkčný krb + podlahové kúrenie.
Dostupnosť: MHD.
Okolie a občianska vybavenosť: kompletná v blízkom okolí.
Mesačné nájomné za byt a jedno parkovacie miesto v areáli je 1 100,- € bez DPH. Platby nájmu sú kvartálne. K nájmu sa pripočítava platba za skutočnú spotrebu médií a služieb. Možnosť 2.parkovacieho miesta za poplatok 60,-€/mes.
Depozit:1 500,- €.
Uvedená cena je vrátane provízie realitnej kancelárie, v ktorej je zahrnuté vypracovanie nájomnej zmluvy a preberacieho protokolu.
Lokalita: okrajová vilová štvrť mesta v susedstve obľúbenej rekreačnej zóny.
Popis bytu: Dispozícia bytu o rozlohe 104 m2 + balkóny je zrejmá z priloženého pôdorysu.
Byt umiestnený na 3.poschodí bytového domu je v nadštandardnom prevedení, drevené a keramické podlahy, kvalitné zariadenie, sanita, svietidlá, moderná kuchynská linka so spotrebičmi značky Bosch, samostatná priestranná kúpeľňa s práčkou a sušičkou, rohovou vaňou, sprchovým kútom s masážnym boxom a parnou saunou. Cez domový telefón je možné komunikovať s návštevou pri bráne. V kuchyni, WC a kúpeľni je aj podlahové kúrenie. V obývacej miestnosti je krb na drevo, zabudovaný systém domáceho kina, nezávislý TV, počítačový a telefónny rozvod. Televízny signál je možné prijímať cez satelitný rozvod telefónu T-com sieť (Magio), alebo UPS kábelový rozvod.
Popis areálu: Obytný komplex tvorí 11 apartmanových bytov a 4 rodinné domy so samostatnou infraštruktúrou a parkovaním pri dome, priamo v oplotenom a bezpečnom areály. Súčasťou dvorovej časti je aj oddychová zeleň s lavičkami a nočným záhradným osvetlením. Samozrejmosťou je aj detské ihrisko.
Kúrenie: plynový kotol, radiátory, + funkčný krb + podlahové kúrenie.
Dostupnosť: MHD.
Okolie a občianska vybavenosť: kompletná v blízkom okolí.
Mesačné nájomné za byt a jedno parkovacie miesto v areáli je 1 100,- € bez DPH. Platby nájmu sú kvartálne. K nájmu sa pripočítava platba za skutočnú spotrebu médií a služieb. Možnosť 2.parkovacieho miesta za poplatok 60,-€/mes.
Depozit:1 500,- €.
Uvedená cena je vrátane provízie realitnej kancelárie, v ktorej je zahrnuté vypracovanie nájomnej zmluvy a preberacieho protokolu.
|
| |||||||||||||||||||||||||||||||
Kontaktovať inzerenta e-mailom
Kontaktovať e-mailom môže iba overený užívateľ.
Overenie je zadarmo.
Vaše telefónne číslo *
Kontaktovať e-mailom môže iba overený užívateľ.
Overenie je zadarmo.
Vaše telefónne číslo *
Podobné inzeráty
Moderné bývanie v obľúbenej lokalite Kysucká - TOP - [29.11. 2025]Moderné bývanie v obľúbenej lokalite Kysucká – na prenájom zariadený byt s privátnou záhradou, recepciou 24/7 a množstvom výhod, ktoré si zamiluješ
Parametre bytu:
• Výmera: 24 m² (21 m² byt + 3 m² loggia )
• Poschodie: 2./12
• v budove až 3 výťahy
• Stav: Nový komplet zariadený byt v moderno ...
750 €
Košice
040 01
040 01
122 x
Označiť zlý inzerát Chybnú kategóriu Ohodnotiť užívateľa Zmazať/Upraviť/Topovať
Prenájom 2 i. blízko Centra, Ludmanská, rek., LO, zariadený - [28.11. 2025]PONUKY NA NÁJOM PROSÍM ZASIELAŤ VÝHRADNE MAILOM: antol@seznam.cz ....ĎAKUJEME, BUDEME VÁS NÁSLEDNE KONTAKTOVAŤ
- Ing. Juraj Antol, ANTE REALITY (viac ako 26 ročné skúsenosti, člen Realitnej únie)
- EXKLIZÍVNE ZASTÚPENIE PRENAJÍMATEĽA
- 2 izbový byt v CENTRE mesta (Ludmanská ul.,pri Auparku)
- ...
650 €
Košice
040 01
040 01
130 x
Označiť zlý inzerát Chybnú kategóriu Ohodnotiť užívateľa Zmazať/Upraviť/Topovať
Atraktívny 2 i, Krosnianska (Furča), rekonšt., zariadený - [28.11. 2025]Atraktívny 2 izb. byt v novšom bytovom dome, Krosnianska ul., rekonštruovaný a zariadený
PONUKY NA NÁJOM PROSÍM ZASIELAŤ VÝHRADNE MAILOM: antol@seznam.cz ....ĎAKUJEME, BUDEME VÁS NÁSLEDNE KONTAKTOVAŤ
- Ing. Juraj Antol, ANTE REALITY (viac ako 26 ročné skúsenosti, člen Realitnej únie)
- exkluz ...
700 €
Košice
040 01
040 01
124 x
Označiť zlý inzerát Chybnú kategóriu Ohodnotiť užívateľa Zmazať/Upraviť/Topovať
3 izb. blízko CENTRA, Kuzmányho, ul. Kpt. Nálepku, rekonšt. - [28.11. 2025]PONUKY NA NÁJOM PROSÍM ZASIELAŤ VÝHRADNE MAILOM: antol@seznam.cz ....ĎAKUJEME, BUDEME VÁS NÁSLEDNE KONTAKTOVAŤ
- Ing. Juraj Antol, ANTE REALITY (viac ako 26 ročné skúsenosti, člen Realitnej únie)
- EXKLUZÍVNE ZASTÚPENIE PRENAJÍMATEĽA
- 3 izbový pražský typ bytu, 72 m2 (65m2 byt + 7m2 lodžia)
- ...
800 €
Košice
040 01
040 01
120 x
Označiť zlý inzerát Chybnú kategóriu Ohodnotiť užívateľa Zmazať/Upraviť/Topovať
3 izb rekonšt., Ťahanovce (Bukureštská), LO, zariadený - [28.11. 2025]PONUKY NA NÁJOM PROSÍM ZASIELAŤ VÝHRADNE MAILOM: antol@seznam.cz ....ĎAKUJEME, BUDEME VÁS NÁSLEDNE KONTAKTOVAŤ
- Ing. Juraj Antol, ANTE REALITY, (viac ako 26 ročné skúsenosti, člen Realitnej únie)
- Bukurešťská ulica, sídlisko Ťahanovce
- v blízkosti LESA a PRÍRODY,
- dobré dopravné napojenie ...
800 €
Košice
040 01
040 01
113 x
Označiť zlý inzerát Chybnú kategóriu Ohodnotiť užívateľa Zmazať/Upraviť/Topovať
Nadštandard zariad.byt centrum Košíc po rekonštrukcii - [28.11. 2025]Prenajmem zariadený byt 145 m2 v Košiciach na I. poschodí. Byt má 3 veľké obytné izby plus kuchyňu s novou linkou a je po celkovej rekonštrukcii. Je pre pohodové bývanie pre 3 osoby a je situovaný vo dvore 50 m od pešej zóny a fontány. Cena 1400+médiá
1 400 €
Košice
040 01
040 01
139 x
Označiť zlý inzerát Chybnú kategóriu Ohodnotiť užívateľa Zmazať/Upraviť/Topovať
Na prenájom 2,5 izbový byt - Komenského, Košice - [28.11. 2025]Typ: 3-izbový byt
Ulica: Komenského
Obec: Košice-Staré Mesto
Moderné bývanie v Starom Meste – kompletne zariadený 2,5-izbový byt s balkónom na Komenského ulici.
Miroslava Papco z Reality s VAMI vám exkluzívne ponúka na prenájom krásny, úplne nový a vkusne zariadený 2,5-izbový byt v obľúbenej č ...
950 €
Košice
040 01
040 01
186 x
Označiť zlý inzerát Chybnú kategóriu Ohodnotiť užívateľa Zmazať/Upraviť/Topovať
Na prenájom 1,5 izbový byt - Košice, Krivá ulica - [28.11. 2025]Typ: 2-izbový byt
Ulica: Krivá
Mestská časť: Juh
Obec: Košice-Juh
Vitajte na Krive ulicij – v byte, kde sa centrum Košíc spája s pohodlným a bezpečným mestským bývaním.
Erik Sabol z Reality s Vami vám ponúka štýlový 1,5-izbový byt na Krivej ulici, ideálny pre nájomníka, ktorý hľadá komfo ...
750 €
Košice
040 01
040 01
236 x
Označiť zlý inzerát Chybnú kategóriu Ohodnotiť užívateľa Zmazať/Upraviť/Topovať
Prenájom 3 izbový byt - [28.11. 2025]Dám do prenájmu 3 izbový byt byt je zariadený jedná sa o dlhodobý prenájom
680 €
Košice
040 01
040 01
222 x
Označiť zlý inzerát Chybnú kategóriu Ohodnotiť užívateľa Zmazať/Upraviť/Topovať
NA PRENÁJOM PRIESTRANNÝ 3-IZBOVÝ BYT, UL. BRANISKOVÁ - [28.11. 2025]Petersen realitný servis a Katarína Lešková ponúkajú na prenájom priestranný 3-izbový byt na ulici Branisková.
Byt s výmerou 78 m² je kompletne zariadený. Nachádza sa na 10. poschodí a súčasťou bytu je aj balkón, ktorý poskytuje príjemný priestor na oddych.
V cene nájmu je zahrnutý aj internet.
...
900 €
Košice
040 01
040 01
192 x
Označiť zlý inzerát Chybnú kategóriu Ohodnotiť užívateľa Zmazať/Upraviť/Topovať




