REALITY BROKER ponúka na predaj 3izb. byt v dobrej lokalite
- [27.11. 2025]Zmazať/ Upraviť/ Topovať




Ponúkame Vám na predaj 3 izbový byt v Senci na Svätoplukovej ulici. Byt s úžitkovou plochou 63 m2 plus loggia o rozlohe 2,5 m2 sa nachádza na 2.p. zatepleného bytového domu bez výťahu. Obytný dom je po kompletnej rekonštrukcii - zateplená fasáda, nový vchod, zrekonštruovaná strecha, výmena stupačiek v bytoch.
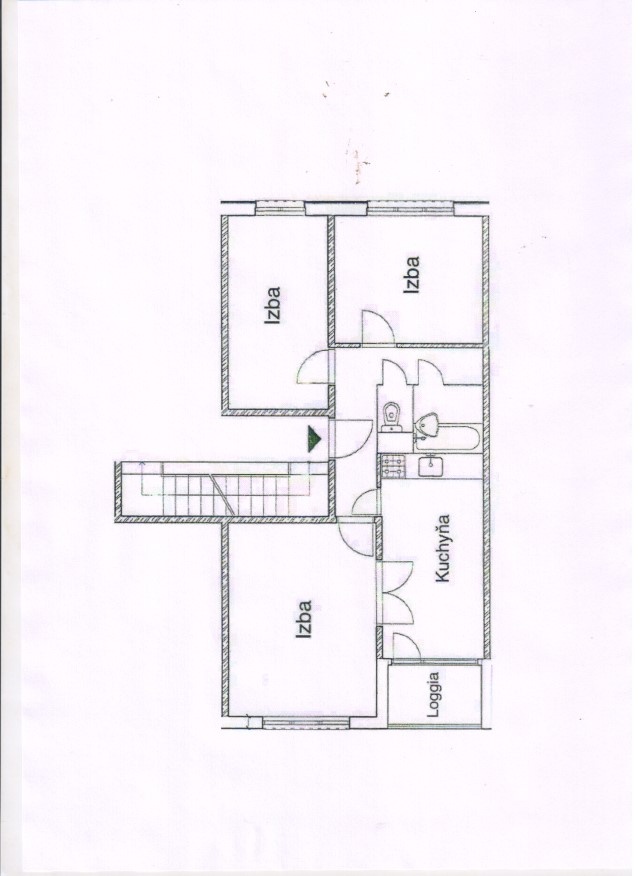
DISPOZIČNÉ RIEŠENIE :
Samotný byt sa skladá z vstupnej chodby, veľká obývacia izba, 2 x samostatná izba, priestranná samostatná kuchyňa s výstupom na zasklenú loggiu, samostatná kúpeľka so sprchou a samostatné WC. K bytu prislúcha pivnica a spoločné priestory na odkladanie kočíkov, bicyklov, ....
VYBAVENIE BYTU :
Byt prešiel čiastočnou rekonštrukciou v roku 2013. V celom byte sú plastové okná , podlahy sú miešané tzn. v troch izbách sú veľmi zachovalé drevené parkety, v kuchynskej časti je pred kuchynskou linkou dlažba a v jedálenskej časti je plávajúca podlaha. V chodbe, WC a v kúpeľke je dlažba. Kuchyňa je zariadená staršou zachovalou kuchynskou linkou digestor, plynový sporák s rúrou. Byt sa predáva komplet zariadený resp. podľa dohody.
V byte je možnosť pripojenia na vysokorýchlostný optický internet.
Mesačné náklady : 139,- eur bytové družstvo, 10,- eur elektrika, 5,- eur plyn plus internet a TV
OBČIANSKA VYBAVENOSŤ:
Byt svojou polohou ponúka výbornú občiansku vybavenosť. Nachádza sa kúsok od centra, dobré parkovanie, dobrý prístup na výjazd k D1 smer TT a BA. V blízkosti bytového domu sa nachádza škôlka, škola, obchody, pošta, pešia zóna. V okolí bytového domu je množstvo zelene a detské ihriská.
Cena bytu je 149.900 € vrátane provízie pre RK.
Fotografie z bytu sú k nahliadnutiu v realitnej kancelárií.
DISPOZIČNÉ RIEŠENIE :
Samotný byt sa skladá z vstupnej chodby, veľká obývacia izba, 2 x samostatná izba, priestranná samostatná kuchyňa s výstupom na zasklenú loggiu, samostatná kúpeľka so sprchou a samostatné WC. K bytu prislúcha pivnica a spoločné priestory na odkladanie kočíkov, bicyklov, ....
VYBAVENIE BYTU :
Byt prešiel čiastočnou rekonštrukciou v roku 2013. V celom byte sú plastové okná , podlahy sú miešané tzn. v troch izbách sú veľmi zachovalé drevené parkety, v kuchynskej časti je pred kuchynskou linkou dlažba a v jedálenskej časti je plávajúca podlaha. V chodbe, WC a v kúpeľke je dlažba. Kuchyňa je zariadená staršou zachovalou kuchynskou linkou digestor, plynový sporák s rúrou. Byt sa predáva komplet zariadený resp. podľa dohody.
V byte je možnosť pripojenia na vysokorýchlostný optický internet.
Mesačné náklady : 139,- eur bytové družstvo, 10,- eur elektrika, 5,- eur plyn plus internet a TV
OBČIANSKA VYBAVENOSŤ:
Byt svojou polohou ponúka výbornú občiansku vybavenosť. Nachádza sa kúsok od centra, dobré parkovanie, dobrý prístup na výjazd k D1 smer TT a BA. V blízkosti bytového domu sa nachádza škôlka, škola, obchody, pošta, pešia zóna. V okolí bytového domu je množstvo zelene a detské ihriská.
Cena bytu je 149.900 € vrátane provízie pre RK.
Fotografie z bytu sú k nahliadnutiu v realitnej kancelárií.
|
| |||||||||||||||||||||||||||||||
Kontaktovať inzerenta e-mailom
Kontaktovať e-mailom môže iba overený užívateľ.
Overenie je zadarmo.
Vaše telefónne číslo *
Kontaktovať e-mailom môže iba overený užívateľ.
Overenie je zadarmo.
Vaše telefónne číslo *