Na predaj: Novostavba rodinného domu – Galanta
- [27.11. 2025]Zmazať/ Upraviť/ Topovať
















Ponúkame na predaj prízemný rodinný dom bez podpivničenia s valbovou strechou, ktorý je ideálnou voľbou pre rodinu hľadajúcu komfortné a funkčné bývanie. Rodinný dom s praktickou dispozíciou na priestrannom pozemku v Galante.
Základné údaje:
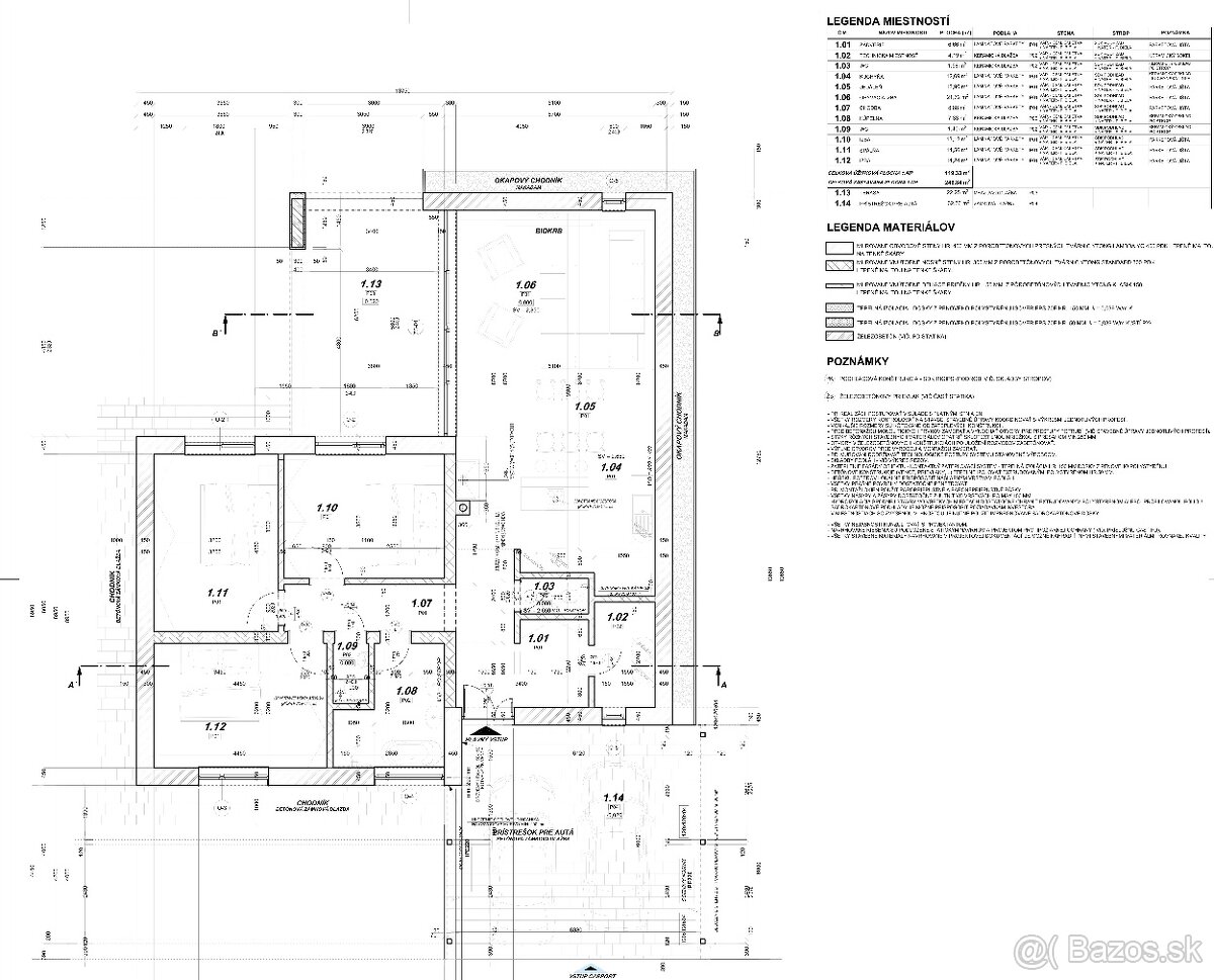
o Plocha pozemku: 829 m²
o Zastavaná plocha: 207,25 m²
o Úžitková plocha: 119,33 m²
Dispozičné riešenie domu:
Dom zaujme bravúrnou kompozíciou, ktorá elegantne oddeľuje dennú časť od nočnej (oddýchovej). Je navrhnutý s dôrazom na jednoduchosť, prehľadnosť a funkčnosť. Každá miestnosť má svoje jasné miesto, pričom dispozícia umožňuje variabilitu využitia jednotlivých priestorov. Ideálne riešenie pre moderné bývanie s dostatkom priestoru a súkromia.
• Vstup vedie do zádveria, z ktorého sa prechádza cez šatník do technickej miestnosti
• Na chodbe sa nachádza samostatná toaleta
• Denná časť zahŕňa priestrannú obývaciu izbu s kuchyňou a jedálňou
• Nočná časť pozostáva z 3 izieb a komfortnej kúpeľne
Technické informácie:
• Obvodové murivo: pórobetónové tvárnice YTONG – 45 cm
• P
• Nosné konštrukcie: železobetónové monolitické preklady a prievlaky
• Strecha: valbová
• Okná: plastové, trojsklo REHAU
• Strešná krytina: Terran
• Dom nie je plynofikovaný
IS – inžinierske siete:
Pozemok je kompletne napojený na všetky verejné siete – voda, kanalizácia, elektrina, plyn (existujúca plynová prípojka).________________________________________
Výhody projektu:
• Energeticky efektívne riešenie (izolačné trojsklá, kompaktná dispozícia)
• Možnosť úprav podľa požiadaviek kupujúceho pred realizáciou
• Príjemné a pokojné prostredie
• Kompletná projektová dokumentácia
• Premyslená dispozícia
• Veľký priestranný pozemok
• Možnosť výberu interiérového vybavenia
• Kvalitné stavebné materiály
• Kľudná lokalita vhodná pre rodiny
Neváhajte využiť túto príležitosť na nový domov, ktorý spája kvalitné materiály, výbornú lokalitu a funkčne riešený pôdorys navrhnutý pre pohodlný rodinný život.
Začnite novú etapu bývania v dome, ktorý si dotvoríte podľa vlastných predstáv.
Cena: 265.000,- €
Cena zahŕňa vonkajšiu fasádu, vnútorné omietky, podlahové kúrenie, sadrokartónový strop.
Pre ďalšie informácie a osobnú obhliadku kontaktujte:
Mgr. Anita Holásek – 0908 798 501
Základné údaje:
o Plocha pozemku: 829 m²
o Zastavaná plocha: 207,25 m²
o Úžitková plocha: 119,33 m²
Dispozičné riešenie domu:
Dom zaujme bravúrnou kompozíciou, ktorá elegantne oddeľuje dennú časť od nočnej (oddýchovej). Je navrhnutý s dôrazom na jednoduchosť, prehľadnosť a funkčnosť. Každá miestnosť má svoje jasné miesto, pričom dispozícia umožňuje variabilitu využitia jednotlivých priestorov. Ideálne riešenie pre moderné bývanie s dostatkom priestoru a súkromia.
• Vstup vedie do zádveria, z ktorého sa prechádza cez šatník do technickej miestnosti
• Na chodbe sa nachádza samostatná toaleta
• Denná časť zahŕňa priestrannú obývaciu izbu s kuchyňou a jedálňou
• Nočná časť pozostáva z 3 izieb a komfortnej kúpeľne
Technické informácie:
• Obvodové murivo: pórobetónové tvárnice YTONG – 45 cm
• P
• Nosné konštrukcie: železobetónové monolitické preklady a prievlaky
• Strecha: valbová
• Okná: plastové, trojsklo REHAU
• Strešná krytina: Terran
• Dom nie je plynofikovaný
IS – inžinierske siete:
Pozemok je kompletne napojený na všetky verejné siete – voda, kanalizácia, elektrina, plyn (existujúca plynová prípojka).________________________________________
Výhody projektu:
• Energeticky efektívne riešenie (izolačné trojsklá, kompaktná dispozícia)
• Možnosť úprav podľa požiadaviek kupujúceho pred realizáciou
• Príjemné a pokojné prostredie
• Kompletná projektová dokumentácia
• Premyslená dispozícia
• Veľký priestranný pozemok
• Možnosť výberu interiérového vybavenia
• Kvalitné stavebné materiály
• Kľudná lokalita vhodná pre rodiny
Neváhajte využiť túto príležitosť na nový domov, ktorý spája kvalitné materiály, výbornú lokalitu a funkčne riešený pôdorys navrhnutý pre pohodlný rodinný život.
Začnite novú etapu bývania v dome, ktorý si dotvoríte podľa vlastných predstáv.
Cena: 265.000,- €
Cena zahŕňa vonkajšiu fasádu, vnútorné omietky, podlahové kúrenie, sadrokartónový strop.
Pre ďalšie informácie a osobnú obhliadku kontaktujte:
Mgr. Anita Holásek – 0908 798 501
|
| |||||||||||||||||||||||||||||||
Kontaktovať inzerenta e-mailom
Kontaktovať e-mailom môže iba overený užívateľ.
Overenie je zadarmo.
Vaše telefónne číslo *
Kontaktovať e-mailom môže iba overený užívateľ.
Overenie je zadarmo.
Vaše telefónne číslo *