Investičný stavebný pozemok Nesvady 1540 m2, pri termálnom k
- [27.11. 2025]Zmazať/ Upraviť/ Topovať






























*** MOŽNOSŤ VÝSTAVBY REKREAČNÉHO OBJEKTU S PROJEKTOVOU DOKUMENTÁCIOU, STAVEBNÉ POVOLENIE ***
EXKLUZÍVNE v predaji iba v LEGEND stavebný pozemok s rozlohou 1540 m2 v kúpeľnom mestečku Nesvady s novovybudovaným termálnym kúpaliskom je vzdialené iba 10 km od Nových Zámkov, 10 km od Kolárova a 23 km od okresného mesta Komárno.
Slnečný stavebný pozemok s výmerou 1540 m2 určený na výstavbu rekreačného objektu ku ktorému je spracovaná projektová dokumentácia s možnosťou úpravy a vydané stavebné povolenie od mesta, ktoré Vám ušetrí množstvo času. Pozemok nachádzajúci sa priamo v rekreačnej lokalite termálneho kúpaliska s novovybudovanými uličkami pomenovanými podľa kvetov, Vám poskytne zdravé a kvalitné zázemie pre Váš oddych. Kľudná, ničím nerušená lokalita obklopená krásnou prírodou a príjemnými susedmi. Pred pozemkom sa nachádzajú novovybudované inžinierske siete, elektrická prípojka, vodovod a tlakové kanalizačné potrubie.
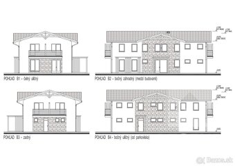
Rekreačný objekt navrhnutý s dvoma budovami, kde v jednom objekte bude 8 samostatných apartmánov s celkovou ubytovacou kapacitou max. 40 lôžok. Stavba bude dvojpodlažná na každom podlaží po 4 samostatné apartmány. Okrem apartmánov sa na prízemí bude nachádzať vstupné zádverie, hala, schodisko, sklad prádla pod schodiskom a miestnosť upratovačky. Na poschodí sú komunikačná chodba spojená s halou a sklad upratovačky. Ku každému apartmánu na prízemí bude prislúchať záhrada, apartmány na poschodí majú svoje vlastné balkóny.
V druhom objekte budú 4 samostatné apartmány s celkovou ubytovacou kapacitou max. 20 lôžok. Stavba dvojpodlažná, na prízemí sú spoločné a komunikačné priestory, priestory stravovacích služieb, sklady a technické zázemie, prevádzka a administratíva. Každý z troch funkčných celkov bude mať samostatné vstupy. Na poschodí sa nachádza komunikačná chodba, miestnosť upratovačky a 4 samostatné apartmány. Každý apartmán s prístupom na balkón. V budove sa budú nachádzať 3 typy dvojizbových apartmánov. V prípade záujmu možná zmena na rovnakú dispozíciu ako pri prvom objekte, čiže po 8 apartmánov (ak nemáte záujem vytvárať reštauráciu a ďalšie servisné priestory).
Kompletná občianska vybavenosť: MŠ+ZŠ, detské ihriská, autobusová stanica, zdravotné stredisko, kultúrne stredisko, lekárne, obchody a služby, reštaurácie, cukráreň, čerpacia stanica, futbalové ihrisko, kúpalisko a iné.
Atrakcie a zaujímavosti v okolí a tipy na výlet:
- plávajúci vodný mlyn v Kolárove a najdlhší drevený riečny most v Európe
- oáza kemp Komoča
- ranč pri Svätom Petrovi
- termálne kúpalisko Nové Zámky, Patince, Veľký Meder, aquapark Vadaš v Štúrove
- vodné a športové aktivity na rieke Malý Dunaj
- prírodná rezervácia SEV Dropie
- hvezdáreň Hurbanovo
Nehnuteľnosť nájdete v predaji EXKLUZÍVNE iba v LEGEND!!!
CENA: 193.000,- EUR
KONTAKT: Veronika Bilková, Tel. 0949 225 664
Túto nehnuteľnosť predáva LEGEND realitná spoločnosť s.r.o., pobočka Nové Mesto nad Váhom, Nám
EXKLUZÍVNE v predaji iba v LEGEND stavebný pozemok s rozlohou 1540 m2 v kúpeľnom mestečku Nesvady s novovybudovaným termálnym kúpaliskom je vzdialené iba 10 km od Nových Zámkov, 10 km od Kolárova a 23 km od okresného mesta Komárno.
Slnečný stavebný pozemok s výmerou 1540 m2 určený na výstavbu rekreačného objektu ku ktorému je spracovaná projektová dokumentácia s možnosťou úpravy a vydané stavebné povolenie od mesta, ktoré Vám ušetrí množstvo času. Pozemok nachádzajúci sa priamo v rekreačnej lokalite termálneho kúpaliska s novovybudovanými uličkami pomenovanými podľa kvetov, Vám poskytne zdravé a kvalitné zázemie pre Váš oddych. Kľudná, ničím nerušená lokalita obklopená krásnou prírodou a príjemnými susedmi. Pred pozemkom sa nachádzajú novovybudované inžinierske siete, elektrická prípojka, vodovod a tlakové kanalizačné potrubie.
Rekreačný objekt navrhnutý s dvoma budovami, kde v jednom objekte bude 8 samostatných apartmánov s celkovou ubytovacou kapacitou max. 40 lôžok. Stavba bude dvojpodlažná na každom podlaží po 4 samostatné apartmány. Okrem apartmánov sa na prízemí bude nachádzať vstupné zádverie, hala, schodisko, sklad prádla pod schodiskom a miestnosť upratovačky. Na poschodí sú komunikačná chodba spojená s halou a sklad upratovačky. Ku každému apartmánu na prízemí bude prislúchať záhrada, apartmány na poschodí majú svoje vlastné balkóny.
V druhom objekte budú 4 samostatné apartmány s celkovou ubytovacou kapacitou max. 20 lôžok. Stavba dvojpodlažná, na prízemí sú spoločné a komunikačné priestory, priestory stravovacích služieb, sklady a technické zázemie, prevádzka a administratíva. Každý z troch funkčných celkov bude mať samostatné vstupy. Na poschodí sa nachádza komunikačná chodba, miestnosť upratovačky a 4 samostatné apartmány. Každý apartmán s prístupom na balkón. V budove sa budú nachádzať 3 typy dvojizbových apartmánov. V prípade záujmu možná zmena na rovnakú dispozíciu ako pri prvom objekte, čiže po 8 apartmánov (ak nemáte záujem vytvárať reštauráciu a ďalšie servisné priestory).
Kompletná občianska vybavenosť: MŠ+ZŠ, detské ihriská, autobusová stanica, zdravotné stredisko, kultúrne stredisko, lekárne, obchody a služby, reštaurácie, cukráreň, čerpacia stanica, futbalové ihrisko, kúpalisko a iné.
Atrakcie a zaujímavosti v okolí a tipy na výlet:
- plávajúci vodný mlyn v Kolárove a najdlhší drevený riečny most v Európe
- oáza kemp Komoča
- ranč pri Svätom Petrovi
- termálne kúpalisko Nové Zámky, Patince, Veľký Meder, aquapark Vadaš v Štúrove
- vodné a športové aktivity na rieke Malý Dunaj
- prírodná rezervácia SEV Dropie
- hvezdáreň Hurbanovo
Nehnuteľnosť nájdete v predaji EXKLUZÍVNE iba v LEGEND!!!
CENA: 193.000,- EUR
KONTAKT: Veronika Bilková, Tel. 0949 225 664
Túto nehnuteľnosť predáva LEGEND realitná spoločnosť s.r.o., pobočka Nové Mesto nad Váhom, Nám
|
| |||||||||||||||||||||||||||||||
Kontaktovať inzerenta e-mailom
Kontaktovať e-mailom môže iba overený užívateľ.
Overenie je zadarmo.
Vaše telefónne číslo *
Kontaktovať e-mailom môže iba overený užívateľ.
Overenie je zadarmo.
Vaše telefónne číslo *









