NA PREDAJ ROD. DOM, POZEMOK 294M2, KLÁŠTORSKÁ ul., PIEŠŤANY
- [25.11. 2025]Zmazať/ Upraviť/ Topovať





























ARCHEUS reality ponúka exkluzívne na predaj útulný, kompletne a detailne zrekonštruovaný rodinný dom v Piešťanoch, iba pár minút od centra mesta. Dom je čiastočne podpivničený, nachádza na pozemku o výmere 294 m2, a je ideálny pre rodinné bývanie alebo ako investícia 💰s možnosťou rozšírenia obytného priestoru ⛏️🧱.
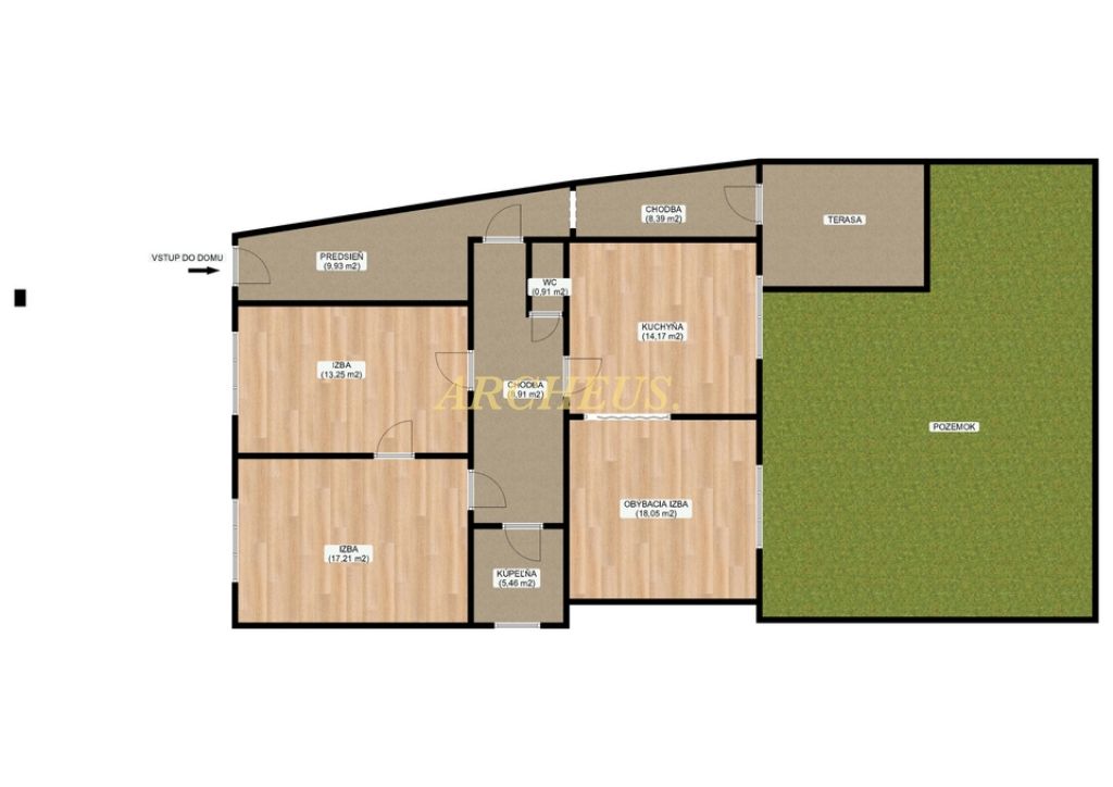
DISPOZÍCIA (priložený pôdorys)
- predsieň, chodba
- priestranná kuchyňa orientovaná na JUH
- svetlá obývačka s krbovými kachľami - JUH
- 2 x izba (orientácia na SEVER), zateplené protihlukovou izoláciou
- veľká kúpeľňa s vaňou, bidetom, dvoma umývadlami a WC
- samostatné WC na chodbe
- možnosť zobytniť podkrovie – projekt a stavebné povolenie k dispozícii
- pivnica s pripravenými prípojkami na práčovňu (voda, odpady)
DOM
- konštrukcia z pálenej tehly, zateplený polystyrénom
- sedlová strecha: nová škridla s novým latovaním a strešnou fóliou pod celou strechou
- betónové podlahy s izoláciou, sadrokartónové stropy s minerálnou izoláciou
- nové medené rozvody elektriny
- hliníkové okná s vonkajšími žalúziami a sieťkami, plastové okná v pivnici
- hliníkovo-plastové vstupné i záhradné dvere
- nové interiérové drevené dvere s výplňou
- kúrenie: plynové gamatky + krbové kachle
- inžinierske siete: verejný vodovod, studňa na úžitkovú vodu, elektrina 230/400V, plyn, kanalizácia
- ohrev vody elektrickým bojlerom
- v podkroví loggia s dlažbou a vyspádovaná spádovým polystyrénom
- k dispozícii ZNALECKÝ POSUDOK 📋
POZEMOK
- udržiavaný dvor s vonkajšou terasou a veľkým altánkom (5x3m), v altánku zavedená elektrina
- záhrada ideálna na relax alebo pestovanie, s ovocnými stromami, krásnym trávnikom, betónové chodníky
VÝHODY
- nízke mesačné náklady (1 osoba) plyn - 42 euro, elektrina - 30 euro, voda - 3 euro
- výborná lokalita blízko centra mesta Piešťany
- možnosť vytvoriť samostatnú bytovú jednotku v podkroví
- kvalitná rekonštrukcia a premyslené technické riešenia
Piešťany je mesto s kompletnou občianskou vybavenosťou, kúpeľnou tradíciou a vysokou kvalitou života.
Príďte sa sami presvedčiť o tejto ponuke, vo výbornej lokalite mesta Piešťany. Rada Vám nehnuteľnosť ukážem, príp. doplním ďalšie potrebné informácie. Teším sa na osobnú prehliadku.
Ing. Alexandra Michalková – certifikovaný realitný maklér NARKS
tel.: +421 908 182 194
e-mail: michalkova@archeus.sk
Garantujeme vám profesionálny právny i katastrálny servis, asistenciu pri prepise. Prevediem vás kúpou nehnuteľnosti od prvej obhliadky až po odovzdanie kľúčov.
© Archeus reality - text, fotografie a pôdorys sú dielom a majetkom realitnej kancelárie.
DISPOZÍCIA (priložený pôdorys)
- predsieň, chodba
- priestranná kuchyňa orientovaná na JUH
- svetlá obývačka s krbovými kachľami - JUH
- 2 x izba (orientácia na SEVER), zateplené protihlukovou izoláciou
- veľká kúpeľňa s vaňou, bidetom, dvoma umývadlami a WC
- samostatné WC na chodbe
- možnosť zobytniť podkrovie – projekt a stavebné povolenie k dispozícii
- pivnica s pripravenými prípojkami na práčovňu (voda, odpady)
DOM
- konštrukcia z pálenej tehly, zateplený polystyrénom
- sedlová strecha: nová škridla s novým latovaním a strešnou fóliou pod celou strechou
- betónové podlahy s izoláciou, sadrokartónové stropy s minerálnou izoláciou
- nové medené rozvody elektriny
- hliníkové okná s vonkajšími žalúziami a sieťkami, plastové okná v pivnici
- hliníkovo-plastové vstupné i záhradné dvere
- nové interiérové drevené dvere s výplňou
- kúrenie: plynové gamatky + krbové kachle
- inžinierske siete: verejný vodovod, studňa na úžitkovú vodu, elektrina 230/400V, plyn, kanalizácia
- ohrev vody elektrickým bojlerom
- v podkroví loggia s dlažbou a vyspádovaná spádovým polystyrénom
- k dispozícii ZNALECKÝ POSUDOK 📋
POZEMOK
- udržiavaný dvor s vonkajšou terasou a veľkým altánkom (5x3m), v altánku zavedená elektrina
- záhrada ideálna na relax alebo pestovanie, s ovocnými stromami, krásnym trávnikom, betónové chodníky
VÝHODY
- nízke mesačné náklady (1 osoba) plyn - 42 euro, elektrina - 30 euro, voda - 3 euro
- výborná lokalita blízko centra mesta Piešťany
- možnosť vytvoriť samostatnú bytovú jednotku v podkroví
- kvalitná rekonštrukcia a premyslené technické riešenia
Piešťany je mesto s kompletnou občianskou vybavenosťou, kúpeľnou tradíciou a vysokou kvalitou života.
Príďte sa sami presvedčiť o tejto ponuke, vo výbornej lokalite mesta Piešťany. Rada Vám nehnuteľnosť ukážem, príp. doplním ďalšie potrebné informácie. Teším sa na osobnú prehliadku.
Ing. Alexandra Michalková – certifikovaný realitný maklér NARKS
tel.: +421 908 182 194
e-mail: michalkova@archeus.sk
Garantujeme vám profesionálny právny i katastrálny servis, asistenciu pri prepise. Prevediem vás kúpou nehnuteľnosti od prvej obhliadky až po odovzdanie kľúčov.
© Archeus reality - text, fotografie a pôdorys sú dielom a majetkom realitnej kancelárie.
|
| |||||||||||||||||||||||||||||||
Kontaktovať inzerenta e-mailom
Kontaktovať e-mailom môže iba overený užívateľ.
Overenie je zadarmo.
Vaše telefónne číslo *
Kontaktovať e-mailom môže iba overený užívateľ.
Overenie je zadarmo.
Vaše telefónne číslo *








