HALA - NEMČICE, TO
- [25.11. 2025]Zmazať/ Upraviť/ Topovať
















V priemyselnej časti obce Nemčice máme pre Vás ponuku haly. Súčasťou haly je oplotenie so vstupnýmou bránou. Nehnuteľnosť je rozostavaná a dá sa prispôsobiť špecifikácii záujemcu. Hala je multifunkčná a má zázemie pre administratívu a alternatívne aj byt. Hala je súčasťou menšej priemyselnej časti s prístupovou cestou.
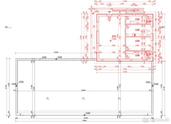
Zastavaná plocha haly č.2 – 489m
HALA výmera 329 m2
Pozemok k hale č.2 – 856m
Celková výmera č.2 – 1345m
Výška haly: 5 m
Váška prístvby: 6,5 m
Byt úžitková plocha, prvé poschodie haly č.2 – 104m
Pôdorsný rozmer 30,4 x 22 m
CENA 330 000 Eur je v aktuálnom stave. Dokončenie je možné podľa požiadaviek klienta a bude individuálne nacenené.
——————————————————
Hala je postavená z porfixu o hrubke 375mm. Strecha je z pur panelov.
Pripojka plynu sa nachadza pri pozemku. Voda je naplánovaná zo studne a odpad do žumpy.
Zastavaná plocha haly č.2 – 489m
HALA výmera 329 m2
Pozemok k hale č.2 – 856m
Celková výmera č.2 – 1345m
Výška haly: 5 m
Váška prístvby: 6,5 m
Byt úžitková plocha, prvé poschodie haly č.2 – 104m
Pôdorsný rozmer 30,4 x 22 m
CENA 330 000 Eur je v aktuálnom stave. Dokončenie je možné podľa požiadaviek klienta a bude individuálne nacenené.
——————————————————
Hala je postavená z porfixu o hrubke 375mm. Strecha je z pur panelov.
Pripojka plynu sa nachadza pri pozemku. Voda je naplánovaná zo studne a odpad do žumpy.
|
| |||||||||||||||||||||||||||||||
Kontaktovať inzerenta e-mailom
Kontaktovať e-mailom môže iba overený užívateľ.
Overenie je zadarmo.
Vaše telefónne číslo *
Kontaktovať e-mailom môže iba overený užívateľ.
Overenie je zadarmo.
Vaše telefónne číslo *