PRENÁJOM – Obchodné alebo kancelárske priestory v centre Kru
- [25.11. 2025]Zmazať/ Upraviť/ Topovať






Ponúkame do prenájmu atraktívne obchodné/kancelárske priestory priamo na Svätotrojičnom námestí v Krupine. Priestory sa nachádzajú na prízemí historickej budovy s výbornou viditeľnosťou, vlastným vstupom z chodníka a silným pohybom chodcov.
Lokalita
•Svätotrojičné námestie – centrum mesta
•Priamo pri hlavnej komunikácii, v blízkosti obchodov, služieb
•Výborná dostupnosť aj parkovanie v okolí
•Možnosť vstupu aj zo zadnej časti objektu – z dvora (praktické pre zásobovanie alebo personál)
Charakteristika priestorov
Priestory sú vhodné na:
•obchod,
•prevádzku služieb,
•kancelárie,
•lekáreň, výdajňu,
•showroom,
•ateliér alebo administratívu.
Plochy prevádzkových priestorov sú dostupné v prílohe.
Možnosť prenájmu viacerým nájomcom
Vďaka členitej dispozícii a samostatným vstupom je možné priestory distribuovať medzi viacerých nájomcov. Jednotlivé miestnosti/sekcie sa dajú využiť nezávisle podľa potreby prevádzky. Ideálne pre kombináciu viacerých služieb alebo menších firiem.
Výhody objektu
•samostatný vstup z ulice,
•možnosť vstupu aj zo zadnej strany objektu – z dvora, vhodné napríklad pre zásobovanie,
•možnosť prenajať časti priestorov samostatne,
•variabilné dispozičné riešenie,
•zázemie pre personál (WC, šatňa, sklady),
•možnosť úprav podľa požiadaviek nájomcu,
•reprezentatívna poloha v centre mesta.
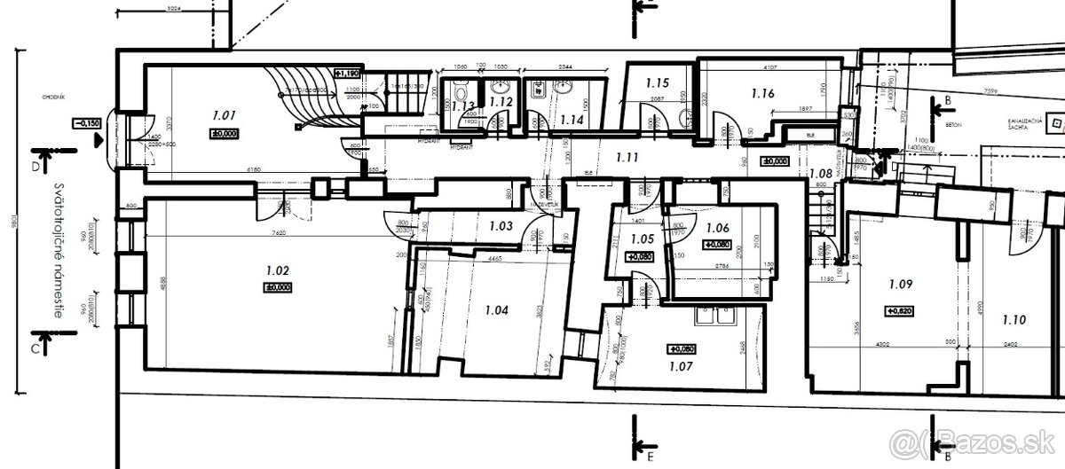
Dispozícia
Priestor pozostáva z hlavnej miestnosti orientovanej do ulice so vstupom z chodníka, na ktorú nadväzujú skladové, prípravné a administratívne miestnosti. K dispozícii je kancelária, hygienické zázemie, šatňa aj zadný vstup z dvora.
Pôdorys je dostupný v prílohe.
Vhodné pre
•zdravotnícke prevádzky, lekárne, výdajne zdravotníckych potrieb,
•kozmetické a estetické služby,
•obchodné prevádzky,
•účtovnícke a advokátske kancelárie,
•menšie firmy a organizácie,
•prevádzky s potrebou skladového zázemia.
Cena prenájmu dohodou podľa rozsahu prenajatých miestností.
Možnosť dlhodobého prenájmu.
Možný prenájom celku aj po častiach.
Kontakt pre viac informácií alebo dohodnutie obhliadky:
ju.krupina@gmail.com
Mobil:0905 409 364
Lokalita
•Svätotrojičné námestie – centrum mesta
•Priamo pri hlavnej komunikácii, v blízkosti obchodov, služieb
•Výborná dostupnosť aj parkovanie v okolí
•Možnosť vstupu aj zo zadnej časti objektu – z dvora (praktické pre zásobovanie alebo personál)
Charakteristika priestorov
Priestory sú vhodné na:
•obchod,
•prevádzku služieb,
•kancelárie,
•lekáreň, výdajňu,
•showroom,
•ateliér alebo administratívu.
Plochy prevádzkových priestorov sú dostupné v prílohe.
Možnosť prenájmu viacerým nájomcom
Vďaka členitej dispozícii a samostatným vstupom je možné priestory distribuovať medzi viacerých nájomcov. Jednotlivé miestnosti/sekcie sa dajú využiť nezávisle podľa potreby prevádzky. Ideálne pre kombináciu viacerých služieb alebo menších firiem.
Výhody objektu
•samostatný vstup z ulice,
•možnosť vstupu aj zo zadnej strany objektu – z dvora, vhodné napríklad pre zásobovanie,
•možnosť prenajať časti priestorov samostatne,
•variabilné dispozičné riešenie,
•zázemie pre personál (WC, šatňa, sklady),
•možnosť úprav podľa požiadaviek nájomcu,
•reprezentatívna poloha v centre mesta.
Dispozícia
Priestor pozostáva z hlavnej miestnosti orientovanej do ulice so vstupom z chodníka, na ktorú nadväzujú skladové, prípravné a administratívne miestnosti. K dispozícii je kancelária, hygienické zázemie, šatňa aj zadný vstup z dvora.
Pôdorys je dostupný v prílohe.
Vhodné pre
•zdravotnícke prevádzky, lekárne, výdajne zdravotníckych potrieb,
•kozmetické a estetické služby,
•obchodné prevádzky,
•účtovnícke a advokátske kancelárie,
•menšie firmy a organizácie,
•prevádzky s potrebou skladového zázemia.
Cena prenájmu dohodou podľa rozsahu prenajatých miestností.
Možnosť dlhodobého prenájmu.
Možný prenájom celku aj po častiach.
Kontakt pre viac informácií alebo dohodnutie obhliadky:
ju.krupina@gmail.com
Mobil:0905 409 364
|
| |||||||||||||||||||||||||||||||
Kontaktovať inzerenta e-mailom
Kontaktovať e-mailom môže iba overený užívateľ.
Overenie je zadarmo.
Vaše telefónne číslo *
Kontaktovať e-mailom môže iba overený užívateľ.
Overenie je zadarmo.
Vaše telefónne číslo *