Pozemok so stavebným povolením na penzión/apart. dom
- [25.11. 2025]Zmazať/ Upraviť/ Topovať




























Výborná voľba pre tých klientov, ktorí hľadajú pozemok už s vydaným stavebným povolením na výstavbu apartmánového domu či penziónu v top lokalite vo Vysokých Tatrách.
Pozemok s PRIPRAVENÝM, SCHVÁLENÝM a ZAMERANÝM projektom. Developer si teda nekupuje len zem, ale aj ušetrený čas a eliminované riziko v procese povoľovania.
Nehnuteľnosť je situovaná vo veľmi peknej lokalite, neďaleko golfového areálu a zároveň v blízkosti prírody. Ide o veľmi obľúbenú lokalitu nielen u domácich, ale aj u turistov.
Základné informácie:
Veľkosť pozemku: 1500 m² + 534 m²
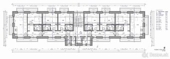
- Celková úžitková plocha objektu: 813,12 m²
- Zastavaná plocha objektu: 281,2 m²
- Výborné dopravné napojenie
- Obľúbená lokalita
- Skvelá občianska vybavenosť v okolí
Špecifikácia
- stavebné povolenie je vydané a všetky inžinierske siete sú k dispozícií
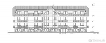
Projekt je riešený ako penzión s celkovou kapacitou 32 lôžok + 8 prísteliek.
- Apartmány (dvojizbové): 8 jednotiek
- Izby (dvojlôžkové): 8 jednotiek
- Celkový počet ubytovacích jednotiek: 16 (8 apartmánov a 8 izieb)
Rozdelenie v objekte:
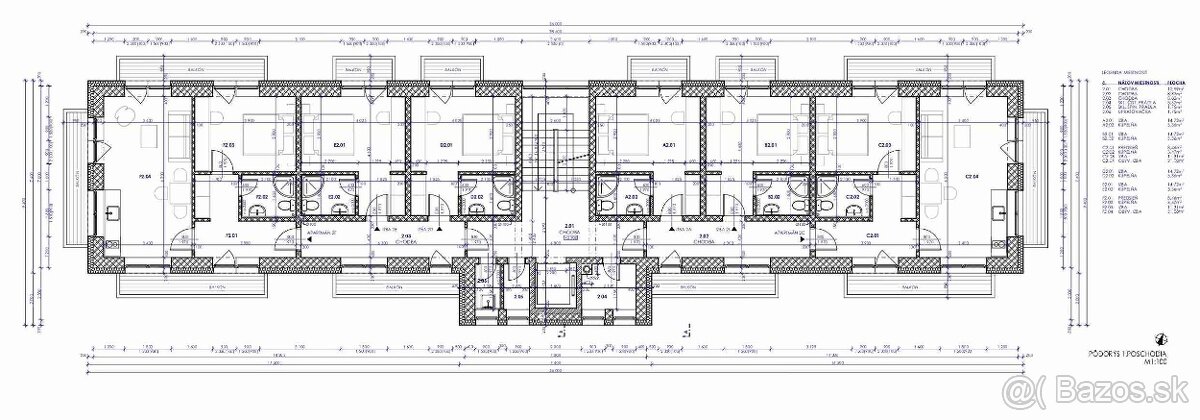
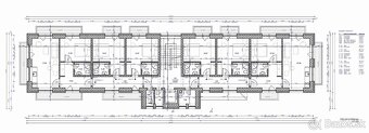
- Prízemie a 1. poschodie: Sú identické. Každé obsahuje 4 dvojlôžkové izby a 2 dvojizbové apartmány. (Spolu 8 izieb a 4 apartmány)
- Podkrovie: Obsahuje 4 dvojizbové apartmány
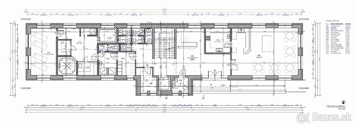
- Suterén: dispozícia suterénu sa skladá z recepcie, jedálne, kuchyne, kancelárie, wellness so saunami a relaxačnou miestnosťou
Lokalita:
Pozemok sa nachádza na ulici Golfovej, neďaleko golfového ihriska. Overená, obľúbená rekreačná lokalita s vysokou obsadenosťou. Obec Veľká Lomnica má ideálnu polohu neďaleko dvoch okresných miest Poprad (8 km) a Kežmarok (8 km) a zároveň neďaleko jedného z centier Vysokých Tatier - Tatranskej Lomnice (8 km). V jej blízkosti je aj niekoľko ďalších stredísk cestovného ruchu ako Bachledova dolina či Starý Smokovec.
Záujem o bývanie v podtatranskej oblasti v posledných rokoch veľmi stúpol, z čoho ťažia viaceré miestne obce a Veľká Lomnica je jednou z nich. V posledných rokoch tam vyrástlo niekoľko nových lokalít, či už na rekreačné alebo rodinné bývanie. Obec má vďaka tomu veľký potenciál na rozvoj. Spája v sebe vidiecke bývanie v blízkosti tatranskej prírody a dostupnosť rušného života v meste.
„INVESTIČNÁ PRÍLEŽITOSŤ: Pozemok 2034 m² s právoplatným STAVEBNÝM POVOLENÍM na penzión/ apartmánový dom vo Veľká Lomnica. Ušetrite 12-18 mesiacov povoľovania!"
Cena: na vyžiadanie
Pozemok s PRIPRAVENÝM, SCHVÁLENÝM a ZAMERANÝM projektom. Developer si teda nekupuje len zem, ale aj ušetrený čas a eliminované riziko v procese povoľovania.
Nehnuteľnosť je situovaná vo veľmi peknej lokalite, neďaleko golfového areálu a zároveň v blízkosti prírody. Ide o veľmi obľúbenú lokalitu nielen u domácich, ale aj u turistov.
Základné informácie:
Veľkosť pozemku: 1500 m² + 534 m²
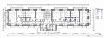
- Celková úžitková plocha objektu: 813,12 m²
- Zastavaná plocha objektu: 281,2 m²
- Výborné dopravné napojenie
- Obľúbená lokalita
- Skvelá občianska vybavenosť v okolí
Špecifikácia
- stavebné povolenie je vydané a všetky inžinierske siete sú k dispozícií
Projekt je riešený ako penzión s celkovou kapacitou 32 lôžok + 8 prísteliek.
- Apartmány (dvojizbové): 8 jednotiek
- Izby (dvojlôžkové): 8 jednotiek
- Celkový počet ubytovacích jednotiek: 16 (8 apartmánov a 8 izieb)
Rozdelenie v objekte:
- Prízemie a 1. poschodie: Sú identické. Každé obsahuje 4 dvojlôžkové izby a 2 dvojizbové apartmány. (Spolu 8 izieb a 4 apartmány)
- Podkrovie: Obsahuje 4 dvojizbové apartmány
- Suterén: dispozícia suterénu sa skladá z recepcie, jedálne, kuchyne, kancelárie, wellness so saunami a relaxačnou miestnosťou
Lokalita:
Pozemok sa nachádza na ulici Golfovej, neďaleko golfového ihriska. Overená, obľúbená rekreačná lokalita s vysokou obsadenosťou. Obec Veľká Lomnica má ideálnu polohu neďaleko dvoch okresných miest Poprad (8 km) a Kežmarok (8 km) a zároveň neďaleko jedného z centier Vysokých Tatier - Tatranskej Lomnice (8 km). V jej blízkosti je aj niekoľko ďalších stredísk cestovného ruchu ako Bachledova dolina či Starý Smokovec.
Záujem o bývanie v podtatranskej oblasti v posledných rokoch veľmi stúpol, z čoho ťažia viaceré miestne obce a Veľká Lomnica je jednou z nich. V posledných rokoch tam vyrástlo niekoľko nových lokalít, či už na rekreačné alebo rodinné bývanie. Obec má vďaka tomu veľký potenciál na rozvoj. Spája v sebe vidiecke bývanie v blízkosti tatranskej prírody a dostupnosť rušného života v meste.
„INVESTIČNÁ PRÍLEŽITOSŤ: Pozemok 2034 m² s právoplatným STAVEBNÝM POVOLENÍM na penzión/ apartmánový dom vo Veľká Lomnica. Ušetrite 12-18 mesiacov povoľovania!"
Cena: na vyžiadanie
|
| |||||||||||||||||||||||||||||||
Kontaktovať inzerenta e-mailom
Kontaktovať e-mailom môže iba overený užívateľ.
Overenie je zadarmo.
Vaše telefónne číslo *
Kontaktovať e-mailom môže iba overený užívateľ.
Overenie je zadarmo.
Vaše telefónne číslo *







