NOVOSTAVBA - 3 izb. byt s komplet zariadením na mieru
- [25.11. 2025]Zmazať/ Upraviť/ Topovať






























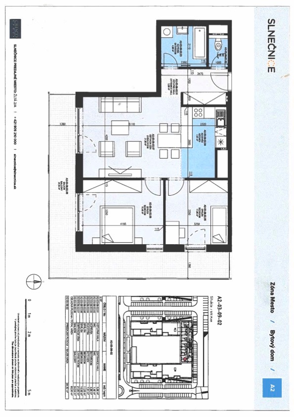
Ponúkame na predaj 3 izb.byt v Petržalke na ulici Zuzany Chalupovej – Slnečnice.
Celková výmera ponúkaného bytu je 91,27 m2 - z toho obytná plocha 66,73, terasa 24,54m2. Nachádza sa na 9/11NP s dvomi veľkými výťahmi.
Pozostáva z chodby, obývacej izby spojenej s kuchyňou, dvoch spální, kúpeľne, samostatnej toalety, loggie po celom obvode bytu s prístupom z každej izby.
V cene bytu je zahrnutné nadčasové a útulné kompletné zariadenie na mieru - dizajnová kuchynská linka so vstavanými spotrebičmi zn.Bosch, vstavané skrine, kompletná kúpeľňa s vaňou. Taktiež zariadené spálne, sedačka, TV, práčka, klimatizácia..... stačí sa nasťahovať.
Byt je orientovaný na dve svetové strany (východ, juh), čo mu zaručuje množstvo prirodzeného svetla počas celého dňa. Okná s fóliou proti prehievaniu poskytujú maximálny komfort aj počas jasných letných dní.
Mesačné náklady sú 170,- EUR/2 osoby.
K bytu je možnosť dokúpenia vnútorného parkovacieho miesta, priamo v bytovom dome: cena 23.000 EUR.
Bytový dom má vlastný kotol, elektronického vrátnika, kamerový systém vo vstupnej hale.
VÝHODY
- perfektne udržiavaný byt od prvomajiteľa
- kompletne zariadený
- moderný dizajn
- dostatok úložného priestoru
- novostavba veľmi úspešného projektu
- parkovacie státie v garáži priamo v bytovom dome
- priestanná loggia
- výborné spojenie MHD do centra mesta
Medzi bytovými domami je komunitný priestranný priestor vhodný na posedenie, v blízkosti detské ihriská, neďaleko dunajská hrádza, nákupné centrum Slnečnice market s rôznymi obchodmi ako Billa, Jysk, lekáreň, drogéria, reštaurácie s rýchlym občerstvením.
Výhodou dopravy je rýchle napojenie na obchvat D4 a R7 a do centra mesta novo vybudovanou električkovu traťou.
Cena: 395 000 eur vrátane provízie RK
Provízia zahŕňa:
- vypracovanie kompletnej zmluvnej dokumentácie
- notárske poplatky spojené s overovaním podpisov predávajúceho na zmluve o prevode vlastníctva bytu
- základný správny poplatok spojený s návrhom na vklad vlastníckych práv
- v prípade záujmu Vám zabezpečíme BEZPLATNÝ kompletný hypotekárny servis. K dispozícii Vám bude náš hypotekárny špecialista, ktorý Vám dojedná najvýhodnejšie podmienky.
Bližšie informácie o ponúkanej nehnuteľnosti alebo záujem o obhliadku kontaktujte:
Barátová Jana
0903 792 101
info@gaviareality.sk
Pri kontaktovaní emailom, Vás prosíme uvádzať na Vás i telefonický kontakt.
Celková výmera ponúkaného bytu je 91,27 m2 - z toho obytná plocha 66,73, terasa 24,54m2. Nachádza sa na 9/11NP s dvomi veľkými výťahmi.
Pozostáva z chodby, obývacej izby spojenej s kuchyňou, dvoch spální, kúpeľne, samostatnej toalety, loggie po celom obvode bytu s prístupom z každej izby.
V cene bytu je zahrnutné nadčasové a útulné kompletné zariadenie na mieru - dizajnová kuchynská linka so vstavanými spotrebičmi zn.Bosch, vstavané skrine, kompletná kúpeľňa s vaňou. Taktiež zariadené spálne, sedačka, TV, práčka, klimatizácia..... stačí sa nasťahovať.
Byt je orientovaný na dve svetové strany (východ, juh), čo mu zaručuje množstvo prirodzeného svetla počas celého dňa. Okná s fóliou proti prehievaniu poskytujú maximálny komfort aj počas jasných letných dní.
Mesačné náklady sú 170,- EUR/2 osoby.
K bytu je možnosť dokúpenia vnútorného parkovacieho miesta, priamo v bytovom dome: cena 23.000 EUR.
Bytový dom má vlastný kotol, elektronického vrátnika, kamerový systém vo vstupnej hale.
VÝHODY
- perfektne udržiavaný byt od prvomajiteľa
- kompletne zariadený
- moderný dizajn
- dostatok úložného priestoru
- novostavba veľmi úspešného projektu
- parkovacie státie v garáži priamo v bytovom dome
- priestanná loggia
- výborné spojenie MHD do centra mesta
Medzi bytovými domami je komunitný priestranný priestor vhodný na posedenie, v blízkosti detské ihriská, neďaleko dunajská hrádza, nákupné centrum Slnečnice market s rôznymi obchodmi ako Billa, Jysk, lekáreň, drogéria, reštaurácie s rýchlym občerstvením.
Výhodou dopravy je rýchle napojenie na obchvat D4 a R7 a do centra mesta novo vybudovanou električkovu traťou.
Cena: 395 000 eur vrátane provízie RK
Provízia zahŕňa:
- vypracovanie kompletnej zmluvnej dokumentácie
- notárske poplatky spojené s overovaním podpisov predávajúceho na zmluve o prevode vlastníctva bytu
- základný správny poplatok spojený s návrhom na vklad vlastníckych práv
- v prípade záujmu Vám zabezpečíme BEZPLATNÝ kompletný hypotekárny servis. K dispozícii Vám bude náš hypotekárny špecialista, ktorý Vám dojedná najvýhodnejšie podmienky.
Bližšie informácie o ponúkanej nehnuteľnosti alebo záujem o obhliadku kontaktujte:
Barátová Jana
0903 792 101
info@gaviareality.sk
Pri kontaktovaní emailom, Vás prosíme uvádzať na Vás i telefonický kontakt.
|
| |||||||||||||||||||||||||||||||
Kontaktovať inzerenta e-mailom
Kontaktovať e-mailom môže iba overený užívateľ.
Overenie je zadarmo.
Vaše telefónne číslo *
Kontaktovať e-mailom môže iba overený užívateľ.
Overenie je zadarmo.
Vaše telefónne číslo *









