NOVOSTAVBA vo výstavbe - Moderný rodinný dom Svätý Peter
- [25.11. 2025]Zmazať/ Upraviť/ Topovať




















Nízkoenergetická novostavba - rodinný dom vo výstavbe !!!
Chceš bývať v novom, peknom útulnom domove s nízkymi réžiami ?
Tak si pozri našu ponuku !
Nakoľko sú ešte k dispozícii dva voľné pozemky je možnosť si vybrať RD podľa vlastných predstáv !!!
Henrieta Nemšovská - KN Reality Vám ponúka na predaj 4 izbový rodinný dom v stave " Holodom" s možnosťou dokončenia na klúč v obci Svätý Peter.
Možnosť dohody s majiteľom na dokončení kúpeľne podľa vlastných predstáv( za príplatok). Taktiež možnosť prístavby garáže, altánu, krbu a pod.
Rodinný dom je postavený s vysokokvalitných materiálov. Použitý materiál : Ytong, strešná kritina Bramac, okná plastové trojsklo. Predpokladaný termín dokončenia je august 2025.
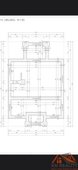
Rozloha pozemku je 700 m2. Pozemok je pekný slnečný , je z troch strán ohraničený s betonovým plotom. Obytná plocha domu je 140m2, zastavaná plocha : 169m2. Nachádza sa v kľudnej, tichej uličke.
Inžinierske siete : elektrina, verejný vodovod, kanalizácia + vodomerná šachta ( plyn nie je).
Vchodové dvere a posuvne balkonové dvere na terasu sú z hliníkového materiálu. Vnútorné dvere, dlažby, sanita kúpeľne, komín podľa vlastného výberu na vlastné náklady.
Kúrenie je podlahové ( tepelné čerpadlo), predpríprava krbu. Zateplenie - polystyrén 20cm, vonkajšia fasáda silikonová.
Steny: stierky rodinného domu sú vymaľované na bielo, podlaha poter.
Dispozičné riešenie :
- predsieň
- kuchyňa s obývačkou, vstup na terasu
- spálňa , gardrob
- 2 x detská izba
- kúpeľňa s vaňou, sprchovacím kútom, dvojité umývadlo, toaleta
- samostatná toaleta s umývadlom
- technická miestnosť
Cena nehnuteľnosti : 220 000 eur a zahrňa všetky právne a katastrálne poplatky. Dohoda možná !
Občianska vybavenosť obce je dobre zabezpečená : Mš, Zš, lekárska starostlivosť, lekáreň, pošta, knižnica, ihrisko, telocvičňa ,obchody potravinárskeho a nepotravinárskeho pôvodu, čerpacia stanica, služby, dom dôchodcov, reštaurácia, pizzéria ,pohostinstvo, kanalizácia atd.
Obec Svätý Peter sa nachádza 13 km od Komárna a 18 km od Nových Zámkov.
Ak Vás ponuka zaujala rada Vám poskytnem dalšie informácie a obhliadku na tel.č. 0918 107 570
Teším sa na Vás !!!
Zastavaná plocha: 169m²
Obytná plocha: 140m²
Rozloha pozemku: 700m²
Úžitková plocha: 140m²
Vlastníctvo: osobné
Stav: holopriestor
Odvoz odpadu: áno
Voda: verejný vodovod
El. napätie: 230/400V
Plyn: nie
Kanalizácia: áno
Internet: optika
Kúpeľňa: vaňa a sprchovací kút
Vykurovanie: vlastné - elektrické
Terasa: áno
Inžinierske siete: áno
Postavené z: Ytong
Zariadenie: nezariadený
Zateplený objekt: áno
Krb: predpríprava
Energetický certifikát: A
Predzáhradka: neuvedené
Okná: plastové
Terén: rovina
Chceš bývať v novom, peknom útulnom domove s nízkymi réžiami ?
Tak si pozri našu ponuku !
Nakoľko sú ešte k dispozícii dva voľné pozemky je možnosť si vybrať RD podľa vlastných predstáv !!!
Henrieta Nemšovská - KN Reality Vám ponúka na predaj 4 izbový rodinný dom v stave " Holodom" s možnosťou dokončenia na klúč v obci Svätý Peter.
Možnosť dohody s majiteľom na dokončení kúpeľne podľa vlastných predstáv( za príplatok). Taktiež možnosť prístavby garáže, altánu, krbu a pod.
Rodinný dom je postavený s vysokokvalitných materiálov. Použitý materiál : Ytong, strešná kritina Bramac, okná plastové trojsklo. Predpokladaný termín dokončenia je august 2025.
Rozloha pozemku je 700 m2. Pozemok je pekný slnečný , je z troch strán ohraničený s betonovým plotom. Obytná plocha domu je 140m2, zastavaná plocha : 169m2. Nachádza sa v kľudnej, tichej uličke.
Inžinierske siete : elektrina, verejný vodovod, kanalizácia + vodomerná šachta ( plyn nie je).
Vchodové dvere a posuvne balkonové dvere na terasu sú z hliníkového materiálu. Vnútorné dvere, dlažby, sanita kúpeľne, komín podľa vlastného výberu na vlastné náklady.
Kúrenie je podlahové ( tepelné čerpadlo), predpríprava krbu. Zateplenie - polystyrén 20cm, vonkajšia fasáda silikonová.
Steny: stierky rodinného domu sú vymaľované na bielo, podlaha poter.
Dispozičné riešenie :
- predsieň
- kuchyňa s obývačkou, vstup na terasu
- spálňa , gardrob
- 2 x detská izba
- kúpeľňa s vaňou, sprchovacím kútom, dvojité umývadlo, toaleta
- samostatná toaleta s umývadlom
- technická miestnosť
Cena nehnuteľnosti : 220 000 eur a zahrňa všetky právne a katastrálne poplatky. Dohoda možná !
Občianska vybavenosť obce je dobre zabezpečená : Mš, Zš, lekárska starostlivosť, lekáreň, pošta, knižnica, ihrisko, telocvičňa ,obchody potravinárskeho a nepotravinárskeho pôvodu, čerpacia stanica, služby, dom dôchodcov, reštaurácia, pizzéria ,pohostinstvo, kanalizácia atd.
Obec Svätý Peter sa nachádza 13 km od Komárna a 18 km od Nových Zámkov.
Ak Vás ponuka zaujala rada Vám poskytnem dalšie informácie a obhliadku na tel.č. 0918 107 570
Teším sa na Vás !!!
Zastavaná plocha: 169m²
Obytná plocha: 140m²
Rozloha pozemku: 700m²
Úžitková plocha: 140m²
Vlastníctvo: osobné
Stav: holopriestor
Odvoz odpadu: áno
Voda: verejný vodovod
El. napätie: 230/400V
Plyn: nie
Kanalizácia: áno
Internet: optika
Kúpeľňa: vaňa a sprchovací kút
Vykurovanie: vlastné - elektrické
Terasa: áno
Inžinierske siete: áno
Postavené z: Ytong
Zariadenie: nezariadený
Zateplený objekt: áno
Krb: predpríprava
Energetický certifikát: A
Predzáhradka: neuvedené
Okná: plastové
Terén: rovina
|
| |||||||||||||||||||||||||||||||
Kontaktovať inzerenta e-mailom
Kontaktovať e-mailom môže iba overený užívateľ.
Overenie je zadarmo.
Vaše telefónne číslo *
Kontaktovať e-mailom môže iba overený užívateľ.
Overenie je zadarmo.
Vaše telefónne číslo *