NA PREDAJ POSLEDNÉ TRI 3.IZBOVÉ BYTY TYP 5, KARPATSKÁ POPRAD
- TOP - [29.11. 2025]Zmazať/ Upraviť/ Topovať





























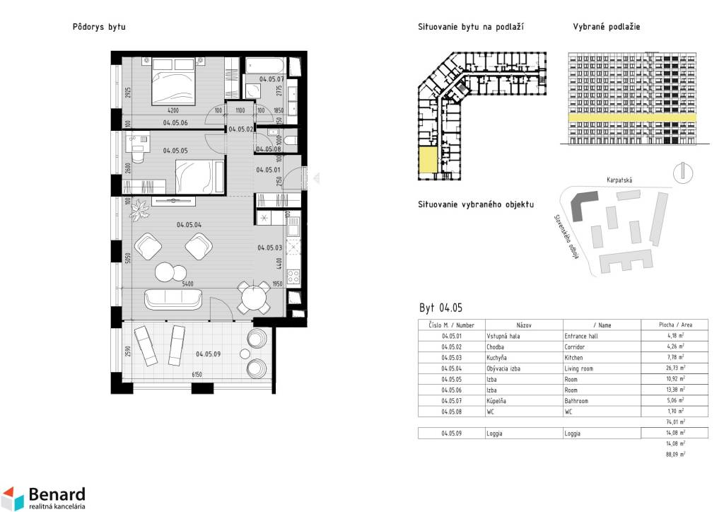
KARPATSKÁ RESIDENCE TYP BYTU 5 je voľný na:
1 poschodí ( byt č.: 1.05. ) - 275 400 EUR
2 poschodí ( byt č.: 2.05. ) - 275 400 EUR
3 poschodí ( byt č.: 3.05. ) - 275 400 EUR
- Výmera 88,09 m2 s loggiou
- Orientácia bytu je na J/Z
- Byty sú dokončené v ŠTANDARDE:
- laminátové podlahy v celom byte, dlažba a keramické obklady so sanitou v kúpeľni a WC.
- Kuchynská linka so vstavanými spotrebičmi: chladnička s mrazničkou, teplovzdušná rúra, indukčná varná doska, umývačka riadu, digestor vedený do komína, všetko v
značke Whirlpool
- PLASTOVÉ OKNÁ s izolačným trojsklom. V každej obytnej izbe je minimálne jedno okenné krídlo otváravo – sklopné.
- VZDUCHOTECHNIKA v kúpeľniach a WC. V byte je navrhnuté vzduchotechnické potrubie pre napojenie digestora
ŠATNÍK: nadštandardným prvkom je aj uzatvorenie šatníkového priestoru vo vstupnej chodbe bytu posuvnými dverami, ktoré sú zahrnuté v cene bytu. Vnútorné vybavenie šatníka si klient zabezpečuje individuálne v zmysle jeho predstáv.
EXTÉRIEROVÉ ROLETY: exteriérové rolety s elektrickým ovládaním, s vonkajším zaomietacím bubnom, vo farbe okenných rámov.
VYKUROVANIE:
- Objekt má vlastnú plynovú kotolňu, z ktorej je centrálne distribuované teplo a TÚV do bytov a apartmánov.
- V každom byte sú biele doskové panelové radiátory a v kúpeľni sú biele rebríkové radiátory
- Regulácia tepla je umožnená termostatickými hlavicami na vykurovacích telesách
- Merače tepla sú umiestnené v uzatváracích šachtách prístupných zo spoločnej chodby, pre každý byt je inštalované individuálne meranie spotreby.
CHLADENIE:
- V bytoch je zrealizovaná príprava na individuálne chladenie bytov pozostávajúca z priestoru na umiestnenie vonkajšej jednotky chladenia na balkóne, vývodu elektroinštalácie na pripojenie vonkajšej jednotky chladenia, podľa platnej projektovej dokumentácie. (Vonkajšie jednotky, vnútorné jednotky vrátane regulácie, inštalácie rozvodov chladiva a dopojenia elektriny a odvod kondenzátu v rámci bytu nie sú súčasťou štandardného vybavenia).
PIVNICA:
Možnosť zakúpenia pivničnej kobky.
PARKOVANIE:
Možnosť zakúpenia garážového státia v suteréne bytového domu.
VÝŤAH:
V celom bytovom dome sú 2 osobné výťahy a jeden nákladný. Všetky výťahy idú aj do suterénu bytového dumu.
SPOLOČNÉ PRIESTORY:
Vstup do bytového domu je cez hliníkové rámové presklené dvere s elektrozámkom ovládaným bezdotykovým čítacím zariadením. Vo vstupnej hale je na podlahe čistiaca zóna a na stene poštové schránky. Vstupná časť do bytového domu, výťahová lobby a spoločné chodby majú na podlahe dlažbu a na stenách náter bielej farby. Bytové chodby majú inštalované svietidlá, detektory pohybu a núdzové osvetlenie.
OKOLIE BYTOVÉHO DOMU:
V blízkom okolí je kompletná občianska vybavenosť SAD, ŽSR, MHD, obchodné a nákupné centrá, lekári, reštaurácie, centrum mesta.
KONTAKT:
Ak máte záujem o obhliadku, p
1 poschodí ( byt č.: 1.05. ) - 275 400 EUR
2 poschodí ( byt č.: 2.05. ) - 275 400 EUR
3 poschodí ( byt č.: 3.05. ) - 275 400 EUR
- Výmera 88,09 m2 s loggiou
- Orientácia bytu je na J/Z
- Byty sú dokončené v ŠTANDARDE:
- laminátové podlahy v celom byte, dlažba a keramické obklady so sanitou v kúpeľni a WC.
- Kuchynská linka so vstavanými spotrebičmi: chladnička s mrazničkou, teplovzdušná rúra, indukčná varná doska, umývačka riadu, digestor vedený do komína, všetko v
značke Whirlpool
- PLASTOVÉ OKNÁ s izolačným trojsklom. V každej obytnej izbe je minimálne jedno okenné krídlo otváravo – sklopné.
- VZDUCHOTECHNIKA v kúpeľniach a WC. V byte je navrhnuté vzduchotechnické potrubie pre napojenie digestora
ŠATNÍK: nadštandardným prvkom je aj uzatvorenie šatníkového priestoru vo vstupnej chodbe bytu posuvnými dverami, ktoré sú zahrnuté v cene bytu. Vnútorné vybavenie šatníka si klient zabezpečuje individuálne v zmysle jeho predstáv.
EXTÉRIEROVÉ ROLETY: exteriérové rolety s elektrickým ovládaním, s vonkajším zaomietacím bubnom, vo farbe okenných rámov.
VYKUROVANIE:
- Objekt má vlastnú plynovú kotolňu, z ktorej je centrálne distribuované teplo a TÚV do bytov a apartmánov.
- V každom byte sú biele doskové panelové radiátory a v kúpeľni sú biele rebríkové radiátory
- Regulácia tepla je umožnená termostatickými hlavicami na vykurovacích telesách
- Merače tepla sú umiestnené v uzatváracích šachtách prístupných zo spoločnej chodby, pre každý byt je inštalované individuálne meranie spotreby.
CHLADENIE:
- V bytoch je zrealizovaná príprava na individuálne chladenie bytov pozostávajúca z priestoru na umiestnenie vonkajšej jednotky chladenia na balkóne, vývodu elektroinštalácie na pripojenie vonkajšej jednotky chladenia, podľa platnej projektovej dokumentácie. (Vonkajšie jednotky, vnútorné jednotky vrátane regulácie, inštalácie rozvodov chladiva a dopojenia elektriny a odvod kondenzátu v rámci bytu nie sú súčasťou štandardného vybavenia).
PIVNICA:
Možnosť zakúpenia pivničnej kobky.
PARKOVANIE:
Možnosť zakúpenia garážového státia v suteréne bytového domu.
VÝŤAH:
V celom bytovom dome sú 2 osobné výťahy a jeden nákladný. Všetky výťahy idú aj do suterénu bytového dumu.
SPOLOČNÉ PRIESTORY:
Vstup do bytového domu je cez hliníkové rámové presklené dvere s elektrozámkom ovládaným bezdotykovým čítacím zariadením. Vo vstupnej hale je na podlahe čistiaca zóna a na stene poštové schránky. Vstupná časť do bytového domu, výťahová lobby a spoločné chodby majú na podlahe dlažbu a na stenách náter bielej farby. Bytové chodby majú inštalované svietidlá, detektory pohybu a núdzové osvetlenie.
OKOLIE BYTOVÉHO DOMU:
V blízkom okolí je kompletná občianska vybavenosť SAD, ŽSR, MHD, obchodné a nákupné centrá, lekári, reštaurácie, centrum mesta.
KONTAKT:
Ak máte záujem o obhliadku, p
|
| |||||||||||||||||||||||||||||||
Kontaktovať inzerenta e-mailom
Kontaktovať e-mailom môže iba overený užívateľ.
Overenie je zadarmo.
Vaše telefónne číslo *
Kontaktovať e-mailom môže iba overený užívateľ.
Overenie je zadarmo.
Vaše telefónne číslo *
Podobné inzeráty
Na predaj luxusný 2-izbový byt A24 v Tatranskej Štrbe o výme - [29.11. 2025]Luxusný 2-izbový byt s označením A24 je skvelá príležitosť pre tých, ktorí hľadajú komfortné a štýlové bývanie. Priestranné izby poskytujú dostatok miesta na pohodlný životný štýl, zatiaľ čo terasa ponúka jedinečný priestor na relaxáciu a vychutnávanie si nádherných výhľadov na Vysoké Tatry. Takéto ...
230 600 €
Poprad
058 01
058 01
9 x
Označiť zlý inzerát Chybnú kategóriu Ohodnotiť užívateľa Zmazať/Upraviť/Topovať
Luxusný 3 izbový mezonet - [28.11. 2025]Typ: 3-izbový byt
Mestská časť: Poprad
Obec: Poprad
NA PREDAJ | Luxusný mezonetový 3-izbový byt s výhľadom na Tatry – Ratzinger Residence, Poprad
Realitná kancelária Nové bývanie Vám ponúka jedinečný mezonetový 2-podlažný 3-izbový byt v prémiovom projekte Ratzinger Residence v Poprade – v tich ...
339 315 €
Poprad
058 01
058 01
173 x
Označiť zlý inzerát Chybnú kategóriu Ohodnotiť užívateľa Zmazať/Upraviť/Topovať
Prečo si kúpiť tento 3-izbový byt v centre Popradu? - [28.11. 2025]Prečo si kúpiť tento 3-izbový byt v centre Popradu?
✅ TOP poloha v absolútnom centre mesta
Všetko máte doslova na skok – nemocnicu, úrady, banky, obchody, školy, škôlky aj služby.
✅ Prízemie – pohodlie bez výťahu
Ideálne pre rodiny s deťmi, seniorov aj klientov, ktorí ocenia bezbariérový prí ...
169 900 €
Poprad
058 01
058 01
206 x
Označiť zlý inzerát Chybnú kategóriu Ohodnotiť užívateľa Zmazať/Upraviť/Topovať
Prečo si kúpiť práve tento jedinečný dizajnový byt? - [28.11. 2025]Prečo si kúpiť práve tento byt?
✅ 43 m2, loggia, samostatná izba
✅ Jedinečný dizajn bez kompromisov – byt nie je „štandardná rekonštrukcia“, ale architektonicky navrhnutý priestor s originálnymi materiálmi a prémiovým dojmom.
✅ ZNALECKÝ POSUDOK k dispozícii
✅ Bez ďalších investícií – kompletne z ...
123 000 €
Poprad
058 01
058 01
227 x
Označiť zlý inzerát Chybnú kategóriu Ohodnotiť užívateľa Zmazať/Upraviť/Topovať
Zrekonštruovaný 3-izbový byt neďaleko širšieho centra Poprad - [28.11. 2025]Ponúkame na predaj 3-izbový byt s praktickou dispozíciou, nachádzajúci sa v pokojnej a vyhľadávanej lokalite mesta Poprad – na ulici L. Svobodu v Poprade.
Veľkosť bytu: 65,15 m² + lodžia
Orientácia: juhozápad/ severovýchod
- Zrekonštruovaný byt
- Nová kuchyňa, murované jadro s novou elektr ...
Dohodou
Poprad
058 01
058 01
266 x
Označiť zlý inzerát Chybnú kategóriu Ohodnotiť užívateľa Zmazať/Upraviť/Topovať
Predaj trojizbového bytu na sídlisku Nový Juh - [28.11. 2025]Priestranný byt so zaujímavým dispozičným riešením ideálny pre rodinu, ktorá hľadá nové bývanie, ktoré si vie dotvoriť podľa svojich predstáv.
Ponúkame na predaj 3-izbový byt nachádzajúci sa na ulici Tolstého, v časti Poprad – Nový juh.
Výmera bytu: 68,5 m²+ lodžia
Poschodie: 1
Orientáci ...
Dohodou
Poprad
058 01
058 01
261 x
Označiť zlý inzerát Chybnú kategóriu Ohodnotiť užívateľa Zmazať/Upraviť/Topovať
Pripravujeme na predaj 3izbový byt, Vysoké Tatry - [28.11. 2025]TUreality pre Vás pripravuje na predaj krásny 3izbový byt s veľkým balkónom na úpätí Vysokých Tatier vo Veľkej Lomnici. Byt je ideálnou voľbou na krátkodobé prenajímanie. Moderne zariadený, pekne presvetlený, výborný východzí bot pre turistov. Pivnica a parkovacie státie sú v cene. Pre viac informác ...
229 990 €
Poprad
058 01
058 01
260 x
Označiť zlý inzerát Chybnú kategóriu Ohodnotiť užívateľa Zmazať/Upraviť/Topovať
DELTA - Zrekonštruovaný a dispozične zmenený 2-izbový byt s - [28.11. 2025]REALITNÁ KANCELÁRIA DELTA PROPERTY, VÁŠ MIESTNY ŠPECIALISTA Vám ponúka na predaj štýlový a kompletne zrekonštruovaný 2-izbový byt v tichej lokalite širšieho centra Popradu. Byt prešiel zmenou dispozície a kompletnou rekonštrukciou - novo vymurované jadro v kúpeľňi a špajzi, elektroinštalácia, podla ...
200 000 €
Poprad
058 01
058 01
286 x
Označiť zlý inzerát Chybnú kategóriu Ohodnotiť užívateľa Zmazať/Upraviť/Topovať
3 izbový byt Poprad - TOP - [29.11. 2025]Ponúkame na predaj krásny, priestranný a slnečný 3-izbový byt o výmere 76 m² na Letnej ulici v Poprade. Byt má výbornú dispozíciu a veľké, svetlé izby, ktoré ponúkajú dostatok priestoru aj pre rodinu.
Nachádza sa v pôvodnom, veľmi zachovalom stave, pričom vymenené sú len plastové okná. Je to ideá ...
155 500 €
Poprad
058 01
058 01
481 x
Označiť zlý inzerát Chybnú kategóriu Ohodnotiť užívateľa Zmazať/Upraviť/Topovať
Byt v centre Popradu, bezbariérový, prízemie, vhodný aj na p - [27.11. 2025]RK Real Vision Vám ponúka Exkluzívne na predaj 3 izbový byt v centre Popradu.
Byt ponúka bývanie na mieste, kde to máte na skok do mesta, nemocnice, do úradov, do banky, školy, škôlky.
Nepotrebujete výťah, z pohodlia bytu urobíte pár krokov a poteší vás udržiavaný park. Máte, kde zaparkovať i na ...
169 900 €
Poprad
058 01
058 01
289 x
Označiť zlý inzerát Chybnú kategóriu Ohodnotiť užívateľa Zmazať/Upraviť/Topovať








