Predám 2 izbový byt v centre Martina, kompletná rekonštrukci
- [24.11. 2025]Zmazať/ Upraviť/ Topovať






























Štýlový 2-izbový byt v tehlovej bytovke na predaj, vyhľadávaná lokalita v centre Martina, na ulici L. Novomeského.
Byt prešiel kompletnou, vkusnou rekonštrukciou a predáva sa spolu so zariadením – stačí sa už len nasťahovať.
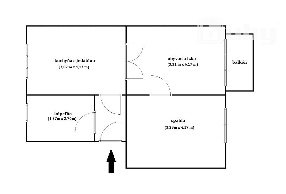
Podlahová plocha bytu je 54,16 m², k tomu balkón 4,30 m² a dve pivnice v suteréne, spolu o výmere 7 m2.
Nachádza sa na 1. poschodí tehlového, zatepleného bytového domu bez výťahu.
Dispozične pozostáva zo:
- vstupnej chodby so vstavaným šatníkom,
- kúpeľne s vaňou a toaletou,
- kuchyne s jedáleňou,
- obývacej izby so vstupom na zasklený balkón,
- samostatnej spálne s úložným priestorom.
Rekonštrukcia zahŕňa:
- nové rozvody elektriny, vody a odpadu,
- vstupné bezpečnostné dvere,
- podlahové kúrenie v chodbe a kúpeľni,
- nivelizované podlahy, kompozitná podlaha v celom byte,
- keramické obklady a dlažby,
- zateplené stropy minerálnou vatou
- znížené stropy sadrokartónom
- nové stierky, interiérové dvere a obložkové zárubne,
- kuchynská linka na mieru so vstavanými spotrebičmi,
- vstavané skrine v chodbe a spálni,
- úložný priestor v obývacej izbe,
- zasklený balkón.
Výborná občianska vybavenosť – v pešej dostupnosti sa nachádza lekárska fakulta, centrum mesta, zastávka MHD, školy, škôlky, obchody a iné.
Byt je ideálny na okamžité nasťahovanie alebo ako investícia, na následný prenájom.
Cena bytu 168 000 €. Pri vážnom záujme, možná dohoda na cene.
Pre viac informácií ma kontaktujte: Mgr. Milan Valušek, tel. 0904 742 743, mail: valusek.m@bubyreality.sk
Byt prešiel kompletnou, vkusnou rekonštrukciou a predáva sa spolu so zariadením – stačí sa už len nasťahovať.
Podlahová plocha bytu je 54,16 m², k tomu balkón 4,30 m² a dve pivnice v suteréne, spolu o výmere 7 m2.
Nachádza sa na 1. poschodí tehlového, zatepleného bytového domu bez výťahu.
Dispozične pozostáva zo:
- vstupnej chodby so vstavaným šatníkom,
- kúpeľne s vaňou a toaletou,
- kuchyne s jedáleňou,
- obývacej izby so vstupom na zasklený balkón,
- samostatnej spálne s úložným priestorom.
Rekonštrukcia zahŕňa:
- nové rozvody elektriny, vody a odpadu,
- vstupné bezpečnostné dvere,
- podlahové kúrenie v chodbe a kúpeľni,
- nivelizované podlahy, kompozitná podlaha v celom byte,
- keramické obklady a dlažby,
- zateplené stropy minerálnou vatou
- znížené stropy sadrokartónom
- nové stierky, interiérové dvere a obložkové zárubne,
- kuchynská linka na mieru so vstavanými spotrebičmi,
- vstavané skrine v chodbe a spálni,
- úložný priestor v obývacej izbe,
- zasklený balkón.
Výborná občianska vybavenosť – v pešej dostupnosti sa nachádza lekárska fakulta, centrum mesta, zastávka MHD, školy, škôlky, obchody a iné.
Byt je ideálny na okamžité nasťahovanie alebo ako investícia, na následný prenájom.
Cena bytu 168 000 €. Pri vážnom záujme, možná dohoda na cene.
Pre viac informácií ma kontaktujte: Mgr. Milan Valušek, tel. 0904 742 743, mail: valusek.m@bubyreality.sk
|
| |||||||||||||||||||||||||||||||
Kontaktovať inzerenta e-mailom
Kontaktovať e-mailom môže iba overený užívateľ.
Overenie je zadarmo.
Vaše telefónne číslo *
Kontaktovať e-mailom môže iba overený užívateľ.
Overenie je zadarmo.
Vaše telefónne číslo *









