Moderný 4izb, byt/dom, 2podlažný, novostavba, "B" certifik
- [23.11. 2025]Zmazať/ Upraviť/ Topovať



























LIVEREAL s.r.o. ponúka na predaj v k.ú. Zohor v tichej slepej uličke 4 izb. 2 podlažný byt/dom o podlahovej ploche 99m2. Je postavený na pozemku o celkovej výmere 248m2 Rozmer pozemku: šírka 12m, dĺžka 22m. Na liste vlastníctva je nehnuteľnosť definovaná ako rodinný dom s dvoma bytovými jednotkami, pričom každý byt/dom má svoju stenu a medzi oboma domami je zvuková izolácia. Zastavaná plocha jedného domu je 64m2 (rozmer jedného domu 9,5m x 6,7m), plocha zvyšného pozemku je 184m2. IS - elektrina, mestská voda, kanalizácia ( v ulici nie je plyn a optika sa bude riešiť na jeseň 2024).
Kolaudácia domu prebehla v roku 2023, energetický certifikát ,,B". Dom je postavený z tehly 30cm, zateplený 15 cm polystyrénom, krytina betónová škridla, stropy zaizolované 27 cm minerálnou vatou, kúrenie je podlahové vodné (aj prízemie aj poschodie) elektrický kotol so zásobníkom vody, plastové okná 3-sklo, klasické omietky, zárubne a dvere, laminátové podlahy a dlažba. Byt/dom je v prevedení štandard bez kuchynskej linky.
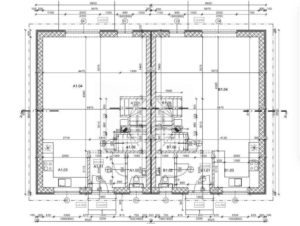
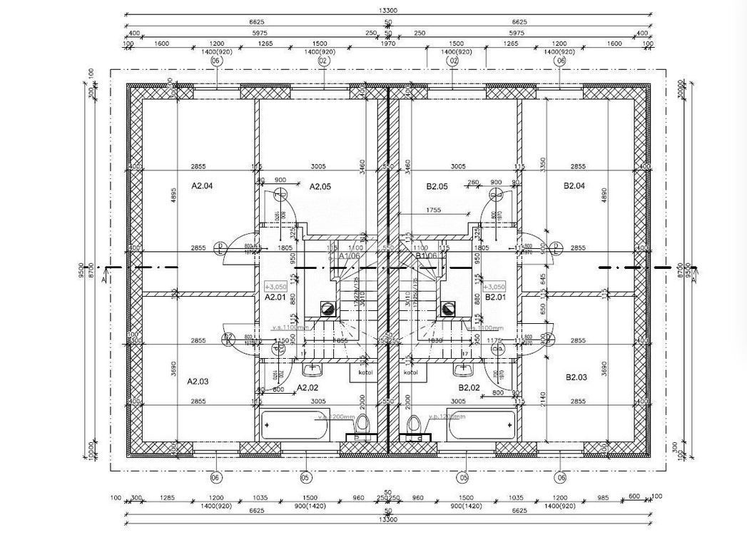
Dispozícia: prízemie: vstupná hala, WC s predprípravou na pračku, komora pod schodmi, veľká obývacia izba prepojená s predpripraveným kuchynským kútom, schodisko na poschodie, poschodie: 3izby, kúpeľňa s vaňou, chodba s kotlom.
Pozemok je oplotený z 3 strán, vybudované 2x parkovacie miesto priamo pred bytom/domom, predné oplotenie je už na realizácii podľa predstáv záujemcu. Predáva sa aj podiel na prístupovej ceste.
Orientácia domu je: vstup a jedna izba na poschodí na západ a obývacia izba a horné 2 spálne na V, list vlastníctva je bez tiarch, kúpa možná aj na úver, okamžite k dispozícii. Náklady: aktuálne len udržiavacie: 26 EUR elektrina.
Výhody: slnečný, tiché prostredie, zateplený dom, vlaková stanica, škola, škôlka, 15 km Malacky, 5 minút od centra obce pešo, od nehnuteľnosti máme kľúče, takže obhliadky sú flexibilné.
K cene bude pripočítaná provízia pre RK vo výške 2 000 EUR. V cene je kompletný právny servis zabezpečený advokátom, vypracovanie zmlúv podľa potreby (zmluva o budúcej zmluve, rezervačná zmluva, zmluva o prevode vlastníctva nehnuteľnosti, návrh na vklad vlastníckeho práva k nehnuteľnosti, prípadné dodatky), notárske poplatky spojené s overovaním podpisov predávajúcich na zmluvách, úhrada základného správneho poplatku na katastri vo výške 100 EUR, poradenstvo k prevodu nehnuteľnosti, bezplatná ponuka financovania prostredníctvom hypotekárneho úveru a poistenia nehnuteľnosti, zabezpečenie ohodnotenia nehnuteľnosti prostredníctvom znalca, ktorý je akceptovaný všetkými bankami. Samozrejmosťou je aj protokol o prevzatí a odovzdaní nehnuteľnosti a odovzdanie nehnuteľnosti. Počas celého procesu sme maximálne k dispozícii až po samotné odovzdanie nehnuteľnosti.
VIDEO DRON: https://youtu.be/SGMDq-789so
VIDEO: https://youtu.be/eYJuJxGS0ik
Naša kompletná ponuka na: www.livereal.sk
https://livereal.sk/a/moderny-4izb-bytdom-2podlazny-novostavba--b--certifikat-pozemok-25a-tich
Kolaudácia domu prebehla v roku 2023, energetický certifikát ,,B". Dom je postavený z tehly 30cm, zateplený 15 cm polystyrénom, krytina betónová škridla, stropy zaizolované 27 cm minerálnou vatou, kúrenie je podlahové vodné (aj prízemie aj poschodie) elektrický kotol so zásobníkom vody, plastové okná 3-sklo, klasické omietky, zárubne a dvere, laminátové podlahy a dlažba. Byt/dom je v prevedení štandard bez kuchynskej linky.
Dispozícia: prízemie: vstupná hala, WC s predprípravou na pračku, komora pod schodmi, veľká obývacia izba prepojená s predpripraveným kuchynským kútom, schodisko na poschodie, poschodie: 3izby, kúpeľňa s vaňou, chodba s kotlom.
Pozemok je oplotený z 3 strán, vybudované 2x parkovacie miesto priamo pred bytom/domom, predné oplotenie je už na realizácii podľa predstáv záujemcu. Predáva sa aj podiel na prístupovej ceste.
Orientácia domu je: vstup a jedna izba na poschodí na západ a obývacia izba a horné 2 spálne na V, list vlastníctva je bez tiarch, kúpa možná aj na úver, okamžite k dispozícii. Náklady: aktuálne len udržiavacie: 26 EUR elektrina.
Výhody: slnečný, tiché prostredie, zateplený dom, vlaková stanica, škola, škôlka, 15 km Malacky, 5 minút od centra obce pešo, od nehnuteľnosti máme kľúče, takže obhliadky sú flexibilné.
K cene bude pripočítaná provízia pre RK vo výške 2 000 EUR. V cene je kompletný právny servis zabezpečený advokátom, vypracovanie zmlúv podľa potreby (zmluva o budúcej zmluve, rezervačná zmluva, zmluva o prevode vlastníctva nehnuteľnosti, návrh na vklad vlastníckeho práva k nehnuteľnosti, prípadné dodatky), notárske poplatky spojené s overovaním podpisov predávajúcich na zmluvách, úhrada základného správneho poplatku na katastri vo výške 100 EUR, poradenstvo k prevodu nehnuteľnosti, bezplatná ponuka financovania prostredníctvom hypotekárneho úveru a poistenia nehnuteľnosti, zabezpečenie ohodnotenia nehnuteľnosti prostredníctvom znalca, ktorý je akceptovaný všetkými bankami. Samozrejmosťou je aj protokol o prevzatí a odovzdaní nehnuteľnosti a odovzdanie nehnuteľnosti. Počas celého procesu sme maximálne k dispozícii až po samotné odovzdanie nehnuteľnosti.
VIDEO DRON: https://youtu.be/SGMDq-789so
VIDEO: https://youtu.be/eYJuJxGS0ik
Naša kompletná ponuka na: www.livereal.sk
https://livereal.sk/a/moderny-4izb-bytdom-2podlazny-novostavba--b--certifikat-pozemok-25a-tich
|
| |||||||||||||||||||||||||||||||
Kontaktovať inzerenta e-mailom
Kontaktovať e-mailom môže iba overený užívateľ.
Overenie je zadarmo.
Vaše telefónne číslo *
Kontaktovať e-mailom môže iba overený užívateľ.
Overenie je zadarmo.
Vaše telefónne číslo *






