026h 3 izb. byt v apartmánovom komplexe Košice - Sever
- [22.11. 2025]Zmazať/ Upraviť/ Topovať

























Do dlhodobého nájmu ponúkame atypický bezbariérový byt s dvoma balkónmi v uzavretom obytnom komplexe a to vrátane parkovacieho miesta.
Lokalita: okrajová vilová štvrť mesta v susedstve obľúbenej rekreačnej zóny.
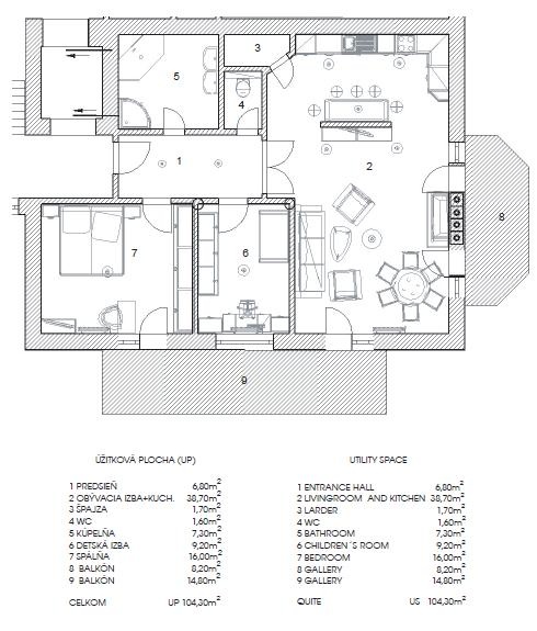
Popis bytu: Dispozícia bytu o rozlohe 104 m2 + balkóny je zrejmá z priloženého pôdorysu.
Byt umiestnený na 3.poschodí bytového domu je v nadštandardnom prevedení, drevené a keramické podlahy, kvalitné zariadenie, sanita, svietidlá, moderná kuchynská linka so spotrebičmi značky Bosch, samostatná priestranná kúpeľňa s práčkou a sušičkou, rohovou vaňou, sprchovým kútom s masážnym boxom a parnou saunou. Cez domový telefón je možné komunikovať s návštevou pri bráne. V kuchyni, WC a kúpeľni je aj podlahové kúrenie. V obývacej miestnosti je krb na drevo, zabudovaný systém domáceho kina, nezávislý TV, počítačový a telefónny rozvod. Televízny signál je možné prijímať cez satelitný rozvod telefónu T-com sieť (Magio), alebo UPS kábelový rozvod.
Popis areálu: Obytný komplex tvorí 11 apartmanových bytov a 4 rodinné domy so samostatnou infraštruktúrou a parkovaním pri dome, priamo v oplotenom a bezpečnom areály. Súčasťou dvorovej časti je aj oddychová zeleň s lavičkami a nočným záhradným osvetlením. Samozrejmosťou je aj detské ihrisko.
Kúrenie: plynový kotol, radiátory, + funkčný krb + podlahové kúrenie.
Dostupnosť: MHD.
Okolie a občianska vybavenosť: kompletná v blízkom okolí.
Mesačné nájomné za byt a jedno parkovacie miesto v areáli je 1 100,- € bez DPH. Platby nájmu sú kvartálne. K nájmu sa pripočítava platba za skutočnú spotrebu médií a služieb. Možnosť 2.parkovacieho miesta za poplatok 60,-€/mes.
Depozit:1 500,- €.
Uvedená cena je vrátane provízie realitnej kancelárie, v ktorej je zahrnuté vypracovanie nájomnej zmluvy a preberacieho protokolu.
Lokalita: okrajová vilová štvrť mesta v susedstve obľúbenej rekreačnej zóny.
Popis bytu: Dispozícia bytu o rozlohe 104 m2 + balkóny je zrejmá z priloženého pôdorysu.
Byt umiestnený na 3.poschodí bytového domu je v nadštandardnom prevedení, drevené a keramické podlahy, kvalitné zariadenie, sanita, svietidlá, moderná kuchynská linka so spotrebičmi značky Bosch, samostatná priestranná kúpeľňa s práčkou a sušičkou, rohovou vaňou, sprchovým kútom s masážnym boxom a parnou saunou. Cez domový telefón je možné komunikovať s návštevou pri bráne. V kuchyni, WC a kúpeľni je aj podlahové kúrenie. V obývacej miestnosti je krb na drevo, zabudovaný systém domáceho kina, nezávislý TV, počítačový a telefónny rozvod. Televízny signál je možné prijímať cez satelitný rozvod telefónu T-com sieť (Magio), alebo UPS kábelový rozvod.
Popis areálu: Obytný komplex tvorí 11 apartmanových bytov a 4 rodinné domy so samostatnou infraštruktúrou a parkovaním pri dome, priamo v oplotenom a bezpečnom areály. Súčasťou dvorovej časti je aj oddychová zeleň s lavičkami a nočným záhradným osvetlením. Samozrejmosťou je aj detské ihrisko.
Kúrenie: plynový kotol, radiátory, + funkčný krb + podlahové kúrenie.
Dostupnosť: MHD.
Okolie a občianska vybavenosť: kompletná v blízkom okolí.
Mesačné nájomné za byt a jedno parkovacie miesto v areáli je 1 100,- € bez DPH. Platby nájmu sú kvartálne. K nájmu sa pripočítava platba za skutočnú spotrebu médií a služieb. Možnosť 2.parkovacieho miesta za poplatok 60,-€/mes.
Depozit:1 500,- €.
Uvedená cena je vrátane provízie realitnej kancelárie, v ktorej je zahrnuté vypracovanie nájomnej zmluvy a preberacieho protokolu.
|
| |||||||||||||||||||||||||||||||
Kontaktovať inzerenta e-mailom
Kontaktovať e-mailom môže iba overený užívateľ.
Overenie je zadarmo.
Vaše telefónne číslo *
Kontaktovať e-mailom môže iba overený užívateľ.
Overenie je zadarmo.
Vaše telefónne číslo *
Podobné inzeráty
PRENÁJOM - 1 IZB BYT s LOGGIOU, L. NOVOMESKÉHO, KOŠICE - TOP - [23.11. 2025]Ponúkame na prenájom VKUSNÝ 1 izbový byt s loggiou a KLIMATIZÁCIOU vo vyhľadávanej lokalite v Mestskej časti Košice- Staré mesto, na ulici Námestie Laca Novomeského, s výbornou občianskou vybavenosťou a dobrou dostupnosťou do centra mesta (iba 10 min. pešo od Hlavnej ulice).
Byt s výmerou 28 m2 s ...
550 €
Košice
040 01
040 01
49 x
Označiť zlý inzerát Chybnú kategóriu Ohodnotiť užívateľa Zmazať/Upraviť/Topovať
4-izbový byt – ideálny pre študentov, pracujúcich - [23.11. 2025]Ponúkame na prenájom priestranný 4-izbový byt na sídl. Nad Jazerom, Irkutská ulica.
Byt o výmere 71 m² + 6 m² loggia, vhodný pre partiu študentov alebo pracujúcich. Byt má základné zariadenie, je udržiavaný a okamžite k dispozícii.
Možnosť meniť, prispôsobiť zariadenie potrebám nájomcov.
Dispo ...
770 €
Košice
040 01
040 01
100 x
Označiť zlý inzerát Chybnú kategóriu Ohodnotiť užívateľa Zmazať/Upraviť/Topovať
Apartments for rent | Košice City Centre Rental Apartments - [23.11. 2025]🚨 LAST CHANCE! Our 1-room apartment in Košice City Centre Rental Apartments is almost never available — and it’s ready now! 🏡
🚨 Struggling to find premium accommodation that feels like home? 🚨
🌟 Welcome to Košice City Center Rental Apartments – where sophistication meets convenience! 🌟
Pict ...
850 €
Košice
040 01
040 01
192 x
Označiť zlý inzerát Chybnú kategóriu Ohodnotiť užívateľa Zmazať/Upraviť/Topovať
Ponúkame na prenájom 1-izbový byt s loggiou na Palárikovej u - [23.11. 2025]So súhlasom majiteľa ponúkame na prenájom 1-izbový byt s loggiou na Palárikovej ul.
Byt o výmere 38 m2, sa nachádza na 5. poschodí.
Rekonštrukcia bytu: murované jadro, plastové okná, pláv. podlahy, sanita v kúpeľni a WC, automatická práčka, zariadená kuchyňa: kuchynská linka, nový plyn. sporák , ...
650 €
Košice
040 01
040 01
177 x
Označiť zlý inzerát Chybnú kategóriu Ohodnotiť užívateľa Zmazať/Upraviť/Topovať
Na prenájom 4-izb. byt s loggiou, Košice - JUH - TOP - [23.11. 2025]Na prenájom: priestranný 4-izbový byt po kompletnej rekonštrukcii s loggiou – Miskovecká ulica, Košice
Hľadáte moderné a pohodlné bývanie vo vyhľadávanej lokalite Košíc?
Ponúkame na dlhodobý prenájom priestranný, kompletne zrekonštruovaný a zariadený 4-izbový byt situovaný na obľúbenej Miskoveck ...
890 €
Košice
040 01
040 01
231 x
Označiť zlý inzerát Chybnú kategóriu Ohodnotiť užívateľa Zmazať/Upraviť/Topovať
Prenajmem veľký 1-izbový byt v Košiciach - [23.11. 2025]Prenajmem veľký 1-izbový byt v Košiciach na Južnej triede 15, 100m od Námestia osloboditeľov, 10 poschodie, 46m2, len 1 osoba, min. doba prenájmu 1 rok, realitky NEVOLAJTE!
600 €
Košice
040 01
040 01
197 x
Označiť zlý inzerát Chybnú kategóriu Ohodnotiť užívateľa Zmazať/Upraviť/Topovať
Prenájom 2 izbového bytu, moderné bývanie blízko centra Koší - [23.11. 2025]Petersen realitný servis ponúka na prenájom 2 izbový byt v blízkosti centra mesta. Lokalita Južná trieda . Byt je o výmere 55 m2, kompletne zariadený, prešiel kvalitnou rekonštrukciou s nábytykom na mieru. Je dispsozične veľmi dobe vyriešený, ponúka priestrannosť izieb a kúpeľne. Nachádza sa 2 posch ...
790 €
Košice
040 01
040 01
240 x
Označiť zlý inzerát Chybnú kategóriu Ohodnotiť užívateľa Zmazať/Upraviť/Topovať
Rekonštruovaný 3 izb. blízko Centra, Južná tr., LO, zariaden - [22.11. 2025]PONUKY NA NÁJOM PROSÍM ZASIELAŤ VÝHRADNE MAILOM: antol@seznam.cz ....ĎAKUJEME, BUDEME VÁS NÁSLEDNE KONTAKTOVAŤ
- Ing. Juraj Antol, ANTE REALITY (viac ako 26 ročné skúsenosti, člen Realitnej únie)
- EXKLUZÍVNE ZASTÚPENIE PRENAJÍMATEĽA
- ATRAKTÍVNY 3 izbový byt v blízkosti CENTRA mesta (ul. Južná ...
800 €
Košice
040 01
040 01
401 x
Označiť zlý inzerát Chybnú kategóriu Ohodnotiť užívateľa Zmazať/Upraviť/Topovať
Prenájom 2 i. blízko Centra, Ludmanská, rek., LO, zariadený - [22.11. 2025]PONUKY NA NÁJOM PROSÍM ZASIELAŤ VÝHRADNE MAILOM: antol@seznam.cz ....ĎAKUJEME, BUDEME VÁS NÁSLEDNE KONTAKTOVAŤ
- Ing. Juraj Antol, ANTE REALITY (viac ako 26 ročné skúsenosti, člen Realitnej únie)
- EXKLIZÍVNE ZASTÚPENIE PRENAJÍMATEĽA
- 2 izbový byt v CENTRE mesta (Ludmanská ul.,pri Auparku)
- ...
650 €
Košice
040 01
040 01
487 x
Označiť zlý inzerát Chybnú kategóriu Ohodnotiť užívateľa Zmazať/Upraviť/Topovať
3 izb. blízko CENTRA, Kuzmányho, ul. Kpt. Nálepku, rekonšt. - [22.11. 2025]PONUKY NA NÁJOM PROSÍM ZASIELAŤ VÝHRADNE MAILOM: antol@seznam.cz ....ĎAKUJEME, BUDEME VÁS NÁSLEDNE KONTAKTOVAŤ
- Ing. Juraj Antol, ANTE REALITY (viac ako 26 ročné skúsenosti, člen Realitnej únie)
- EXKLUZÍVNE ZASTÚPENIE PRENAJÍMATEĽA
- 3 izbový pražský typ bytu, 72 m2 (65m2 byt + 7m2 lodžia)
- ...
800 €
Košice
040 01
040 01
458 x
Označiť zlý inzerát Chybnú kategóriu Ohodnotiť užívateľa Zmazať/Upraviť/Topovať




