4-izbový drevodom v novej štvrti Pod Gombášom – Rožňava
- [22.11. 2025]Zmazať/ Upraviť/ Topovať






























GH Realitná kancelária Vám ponúka na predaj moderný 4-izbový rodinný dom situovaný vo vyhľadávanej novovybudovanej štvrti Pod Gombášom v Rožňave. Táto tichá lokalita ponúka ideálne bývanie pre rodiny, ktoré túžia po spojení komfortu, prírody a dostupnosti mesta.
Link na VIDEO :
https://youtube.com/shorts/rOjtY_1U5RQ?feature=share
Základné informácie:
Typ stavby: novostavba – drevodom (prefabrikovaná drevená konštrukcia)
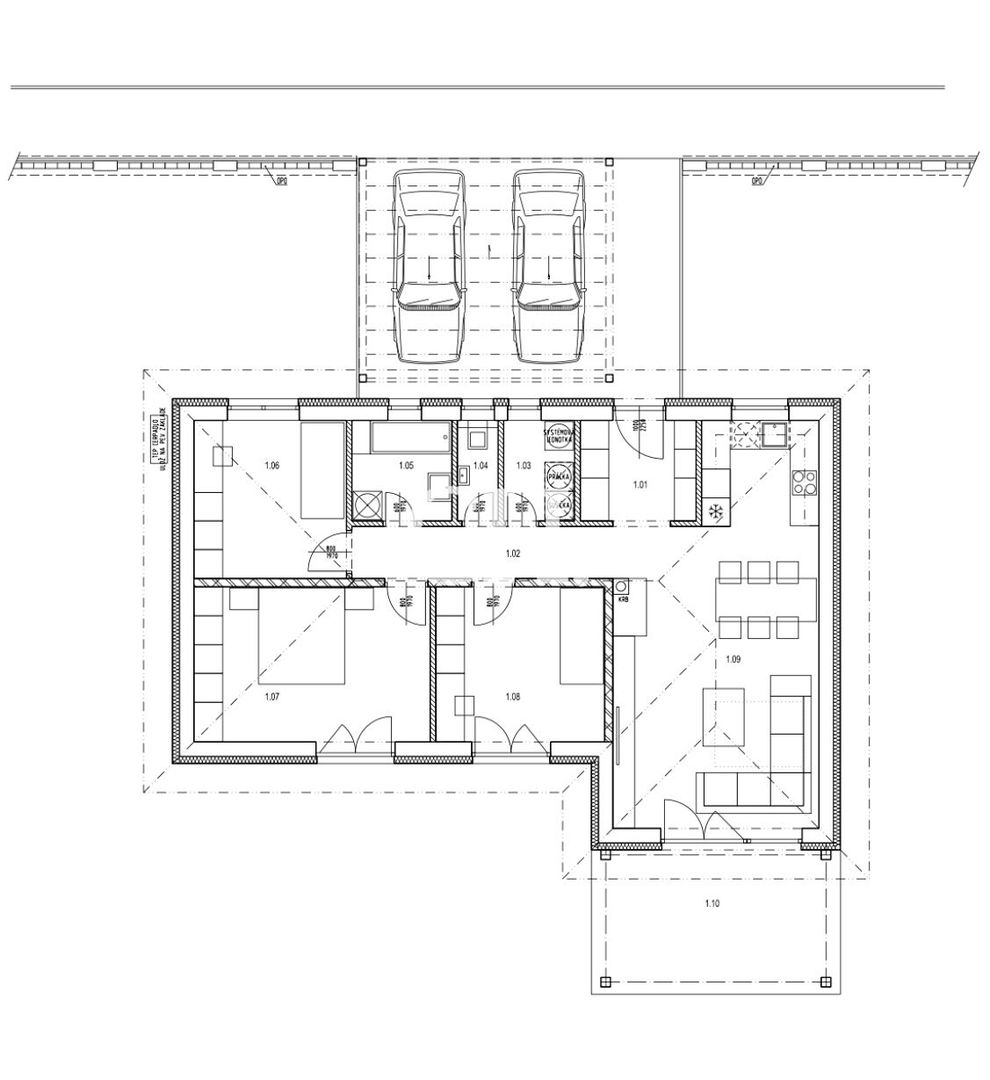
Dispozícia: 4 izbový bungalov (jednopodlažný)
Výmera: pozemok 525m2, zastavaná plocha 124m2, užitková plocha 106m2
Terasa: áno, prekrytá
Záhrada: súčasťou domu (prístup zo zadnej časti)
Parkovanie: pozemok pripravený pre viacero parkovacích miest
Dispozícia domu:
Dom je rozdelený na dennú a nočnú časť. Zo zádveria (chodby) sa vstupuje priamo do priestrannej obývacej izby spojenej s kuchyňou, odkiaľ je výstup na priestrannú prekrytú terasu a do záhrady. Nočná časť pozostáva z troch samostatných izieb – spálne, detskej izby a hosťovskej izby. K dispozícii je kúpeľňa so sprchovým kútom, samostatná toaleta a technická miestnosť.
Konštrukcia a technológie:
Dom je postavený z moderných prefabrikovaných drevených panelov (H-Block systém), čo zabezpečuje vynikajúce tepelno-izolačné vlastnosti a rýchlu výstavbu. O vykurovanie sa stará podlahové kúrenie s rozvodom v celom dome. Stavba je napojená na všetky inžinierske siete (elektrina, voda, kanalizácia).
Výhody lokality:
Nová štvrť s modernou zástavbou
Blízkosť centra mesta a dopravné napojenie na hlavnú cestu
Tichá a pokojná lokalita v dotyku s prírodou
Už viac nehľadajte. Tento dom pod Gombášom čaká možno práve na vás. Príďte si ho pozrieť a pocíťte, ako chutí domov.
Link na VIDEO :
https://youtube.com/shorts/rOjtY_1U5RQ?feature=share
Základné informácie:
Typ stavby: novostavba – drevodom (prefabrikovaná drevená konštrukcia)
Dispozícia: 4 izbový bungalov (jednopodlažný)
Výmera: pozemok 525m2, zastavaná plocha 124m2, užitková plocha 106m2
Terasa: áno, prekrytá
Záhrada: súčasťou domu (prístup zo zadnej časti)
Parkovanie: pozemok pripravený pre viacero parkovacích miest
Dispozícia domu:
Dom je rozdelený na dennú a nočnú časť. Zo zádveria (chodby) sa vstupuje priamo do priestrannej obývacej izby spojenej s kuchyňou, odkiaľ je výstup na priestrannú prekrytú terasu a do záhrady. Nočná časť pozostáva z troch samostatných izieb – spálne, detskej izby a hosťovskej izby. K dispozícii je kúpeľňa so sprchovým kútom, samostatná toaleta a technická miestnosť.
Konštrukcia a technológie:
Dom je postavený z moderných prefabrikovaných drevených panelov (H-Block systém), čo zabezpečuje vynikajúce tepelno-izolačné vlastnosti a rýchlu výstavbu. O vykurovanie sa stará podlahové kúrenie s rozvodom v celom dome. Stavba je napojená na všetky inžinierske siete (elektrina, voda, kanalizácia).
Výhody lokality:
Nová štvrť s modernou zástavbou
Blízkosť centra mesta a dopravné napojenie na hlavnú cestu
Tichá a pokojná lokalita v dotyku s prírodou
Už viac nehľadajte. Tento dom pod Gombášom čaká možno práve na vás. Príďte si ho pozrieť a pocíťte, ako chutí domov.
|
| |||||||||||||||||||||||||||||||
Kontaktovať inzerenta e-mailom
Kontaktovať e-mailom môže iba overený užívateľ.
Overenie je zadarmo.
Vaše telefónne číslo *
Kontaktovať e-mailom môže iba overený užívateľ.
Overenie je zadarmo.
Vaše telefónne číslo *









