Rodinný dom v historickej časti Modry – skvelá...
- [22.11. 2025]Zmazať/ Upraviť/ Topovať






























TUreality ponúka v srdci mesta Modra 4 izbový, čiastočne rekonštruovaný rodinný dom v radovej zástavbe.
___________________________________________________________________________________________
VÝHODY NEHNUTEĽNOSTI:
+ skvelá lokalita – iba 3 minúty pešo od centra Modry s výbornou dostupnosťou do Bratislavy
+ úžitková plocha až 242 m2 – priestranný dom s dostatkom priestoru na pohodlné bývanie
+ investičný potenciál – rekonštrukcia v roku 2011 a je pripravený na ďalšie úpravy podľa vašich predstáv
+ všetky inžinierske siete
___________________________________________________________________________________________
DOM:
= dvojpodlažný rodinný dom v radovej zástavbe
= rok výstavby: 1908, rekonštrukcia v roku 2011
= príjemná historická atmosféra s moderným vybavením
= zastavaná plocha: 127 m2
= úžitková plocha: 242 m2 (1PP: 58 m2, 1NP: 105 m2, 2NP: 79 m2)
= plocha pozemku: 127 m2 + 42 m2 vlastná záhrada (169 m2)
= podiel na spoločnom prístupe
= kamenné základy
= zvislé nosné konštrukcie zmiešané
= šikmá strecha s novou keramickou škridlou
= podkrovie zateplené minerálnou vlnou
= inžinierske siete: mestský vodovod, kanalizácia, plyn, elektrina, studňa na polievanie a s napojením do domu na úžitkové využitie
= kúrenie a ohrev TÚV: plynový kotol, výhrevné telesá radiátory
= mesačné náklady: 200 €
___________________________________________________________________________________________
DISPOZÍCIA:
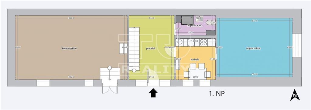
- 1. PP (pivnica): skladové priestory/dielňa, klenbová pivnica, ideálne pre vinárov
- 1. NP: vstupná hala, kuchyňa, obývacia izba, kúpeľňa so sprchovým kútom a WC, schodište na poschodie
- 2. NP: 3 izby, chodba, kúpeľňa s WC a rohovou vaňou
___________________________________________________________________________________________
VYBAVENIE:
* kuchyňa s plynovým sporákom a elektrickou rúrou
* plastové okná s vnútornými žalúziami
* drevené a rolovacie dvere
* podlahy: keramická dlažba a plávajúca podlaha
* kúpeľne: na prízemí sprchový kút, umývadlo a WC; na 2. NP rohová vaňa, keramické umývadlo a WC, prípojky na práčku
* kôlňa s dielňou/sklad
* energetický certifikát nebol predložený
___________________________________________________________________________________________
OKOLIE:
Modra je historická mesto s bohatou tradíciou a skvelými prírodnými podmienkami pre rekreáciu. Okolie ponúka množstvo cyklotrás, turistických chodníkov a blízkosť viníc, čo robí túto lokalitu ideálnym miestom pre relax a oddych. K dispozícii je...
___________________________________________________________________________________________
VÝHODY NEHNUTEĽNOSTI:
+ skvelá lokalita – iba 3 minúty pešo od centra Modry s výbornou dostupnosťou do Bratislavy
+ úžitková plocha až 242 m2 – priestranný dom s dostatkom priestoru na pohodlné bývanie
+ investičný potenciál – rekonštrukcia v roku 2011 a je pripravený na ďalšie úpravy podľa vašich predstáv
+ všetky inžinierske siete
___________________________________________________________________________________________
DOM:
= dvojpodlažný rodinný dom v radovej zástavbe
= rok výstavby: 1908, rekonštrukcia v roku 2011
= príjemná historická atmosféra s moderným vybavením
= zastavaná plocha: 127 m2
= úžitková plocha: 242 m2 (1PP: 58 m2, 1NP: 105 m2, 2NP: 79 m2)
= plocha pozemku: 127 m2 + 42 m2 vlastná záhrada (169 m2)
= podiel na spoločnom prístupe
= kamenné základy
= zvislé nosné konštrukcie zmiešané
= šikmá strecha s novou keramickou škridlou
= podkrovie zateplené minerálnou vlnou
= inžinierske siete: mestský vodovod, kanalizácia, plyn, elektrina, studňa na polievanie a s napojením do domu na úžitkové využitie
= kúrenie a ohrev TÚV: plynový kotol, výhrevné telesá radiátory
= mesačné náklady: 200 €
___________________________________________________________________________________________
DISPOZÍCIA:
- 1. PP (pivnica): skladové priestory/dielňa, klenbová pivnica, ideálne pre vinárov
- 1. NP: vstupná hala, kuchyňa, obývacia izba, kúpeľňa so sprchovým kútom a WC, schodište na poschodie
- 2. NP: 3 izby, chodba, kúpeľňa s WC a rohovou vaňou
___________________________________________________________________________________________
VYBAVENIE:
* kuchyňa s plynovým sporákom a elektrickou rúrou
* plastové okná s vnútornými žalúziami
* drevené a rolovacie dvere
* podlahy: keramická dlažba a plávajúca podlaha
* kúpeľne: na prízemí sprchový kút, umývadlo a WC; na 2. NP rohová vaňa, keramické umývadlo a WC, prípojky na práčku
* kôlňa s dielňou/sklad
* energetický certifikát nebol predložený
___________________________________________________________________________________________
OKOLIE:
Modra je historická mesto s bohatou tradíciou a skvelými prírodnými podmienkami pre rekreáciu. Okolie ponúka množstvo cyklotrás, turistických chodníkov a blízkosť viníc, čo robí túto lokalitu ideálnym miestom pre relax a oddych. K dispozícii je...
|
| |||||||||||||||||||||||||||||||
Kontaktovať inzerenta e-mailom
Kontaktovať e-mailom môže iba overený užívateľ.
Overenie je zadarmo.
Vaše telefónne číslo *
Kontaktovať e-mailom môže iba overený užívateľ.
Overenie je zadarmo.
Vaše telefónne číslo *
Podobné inzeráty
ZREKONŠTRUOVANÝ A ZARIADENÝ RODINNÝ DOM V KRÁĽOVEJ - [18.11. 2025]Túžite po bývaní v malebnom prostredí Malých Karpát v obľúbenom meste známom svojou vinárskou tradíciou? Potom zbystrite pozornosť, tento dom s výbornou dispozíciou izieb majitelia s láskou zrekonštruovali, čo budete cítiť od prvého kontaktu.
NA PREDAJ ZREKONŠTRUOVANÝ A ZARIADENÝ RODINNÝ DOM V MO ...
320 000 €
Pezinok
900 01
900 01
127 x
Označiť zlý inzerát Chybnú kategóriu Ohodnotiť užívateľa Zmazať/Upraviť/Topovať
Predáme dvojgeneračný dom na tichej ulici Modra Kráľova - [18.11. 2025]V tichej lokalite Modra časť Kráľová ponúkame veľký dom postavený od roku 1990, kolaudovaný v roku 2002.
Jedinečné umiestnenie domu je v prístupovej ceste, ktorá je tichá a asfaltová s odbočkou na druhú bočnú pred dom , kde je možné
aj parkovanie.
VÝMERY:
Rodinný dom je postavený na pozemku s vý ...
249 000 €
Pezinok
900 01
900 01
98 x
Označiť zlý inzerát Chybnú kategóriu Ohodnotiť užívateľa Zmazať/Upraviť/Topovať
EXKLUZÍVNE NA PREDAJ KOMFORTNÝ 5-IZBOVÝ RODINNÝ DOM V MODRE - TOP - [19.11. 2025]Typ: Rodinný dom
Ulica: Kalinčiakova
Obec: Modra
EXKLUZÍVNE NA PREDAJ!!!
Znížená cena!!!
Ponúkame Vám na predaj novostavbu priestranného rodinného domu, ktorý je súčasťou dvojdomu. Bývanie v tomto dome ponúka moderné a komfortné bývanie blízko centr ...
389 000 €
Pezinok
900 01
900 01
561 x
Označiť zlý inzerát Chybnú kategóriu Ohodnotiť užívateľa Zmazať/Upraviť/Topovať
Rodinný dom Modra - Kráľová - [9.11. 2025]Na predaj – vidiecky rodinný dom v Modre – Kráľovej
Ponúkame na predaj veľmi pekný, kompletne zrekonštruovaný vidiecky rodinný dom v tichej a vyhľadávanej lokalite Modra – Kráľová. Dom,umiestnený v súvislej uličnej čiare, má štyri izby a skladá sa z troch častí – z prístavby z roku 2000, zo zreko ...
345 000 €
Pezinok
900 01
900 01
322 x
Označiť zlý inzerát Chybnú kategóriu Ohodnotiť užívateľa Zmazať/Upraviť/Topovať
Modra: dvojgeneračný dom na tichej ulici - [7.11. 2025]V tichej lokalite Modra časť Kráľová ponúkame veľký dom postavený od roku 1990, kolaudovaný v roku 2002.
Jedinečné umiestnenie domu je v prístupovej ceste, ktorá je tichá a asfaltová s odbočkou na druhú bočnú pred dom , kde je možné
aj parkovanie.
VÝMERY:
Rodinný dom je postavený na pozemku s ...
249 000 €
Pezinok
900 01
900 01
115 x
Označiť zlý inzerát Chybnú kategóriu Ohodnotiť užívateľa Zmazať/Upraviť/Topovať
NA PREDAJ - 4 izbový rodinný dom Modra - [6.11. 2025]Niwio reality ponúka na predaj rodinný dom v Modre. Dom je súčasťou dvojdomu a predáva vo vyhotovení holodom ako novostavba. Bývajte v tichom rodinnom prostredí za exkluzívnu cenu.
Rodinný dom :
4-izbový rodinný dom
poschodový
výstavba 2025
úžitková plocha 109,88 m2
Pozemok
parkovacie stát ...
259 000 €
Pezinok
900 01
900 01
2314 x
Označiť zlý inzerát Chybnú kategóriu Ohodnotiť užívateľa Zmazať/Upraviť/Topovať
Na predaj - Priestranný 5-izbový rodinný dom s krytým bazén - [30.10. 2025]Typ: Rodinný dom
Ulica: Harmónia
Mestská časť: Harmónia
Obec: Modra
Exkluzívne Vám ponúkame dom, kde sa spája pohodlie, súkromie a dotyk prírody – s lesom hneď za plotom a bazénom, ktorý láka na oddych. Miesto, kde sa stretáva práca s relaxom, rodina s priateľmi a všedné dni sa menia na nezabu ...
408 000 €
Pezinok
900 01
900 01
585 x
Označiť zlý inzerát Chybnú kategóriu Ohodnotiť užívateľa Zmazať/Upraviť/Topovať
MODRA, starý vinársky dom, po rekonštrukcii trvalé bývanie - [24.10. 2025]Ponúkame na predaj starší rodinný dom na Dolnej ulici v Modre.
Rodinný dom nemá vstup priamo z ulice, ale cez parcelu o výmere 149m2, na ktore budúci vlastník nadobudne vlastnícky podiel v 1/2, čiže sa jedná o zadný domček. Disponuje 2 obytnými miestnosťami, t.j. kuchyňa a izba, a kúpeĺňa s WC o ce ...
V texte
Pezinok
900 01
900 01
706 x
Označiť zlý inzerát Chybnú kategóriu Ohodnotiť užívateľa Zmazať/Upraviť/Topovať
Predaj domu Harmonia - TOP - [17.11. 2025]Na predaj dom: Na predaj rodinny dom v časti Harmónia-Modra
Prekvalifikovany na RD v roku 2022 aj znalecky posudok, skolaudovaný v roku 2022
Benefity
+Veľký pozemok 1200m2
+Velka úžitková plocha 275m2
+ podlahová plocha 195m2
+Súkromná príjazdova cesta
+dom v chránenej oblasti
+život v lese ...
363 000 €
Pezinok
900 01
900 01
8876 x
Označiť zlý inzerát Chybnú kategóriu Ohodnotiť užívateľa Zmazať/Upraviť/Topovať
Predaj novostavby samostatne stojaceho 4 izb. bungalovu v Mo - [23.10. 2025]Typ: Rodinný dom
Ulica: Tramínová
Obec: Modra
Ponúkame Vám na predaj novostavbu samostatne stojaceho rodinného domu na pozemku s výmerou 518 m² v novovzniknutej lokalite mesta Modra, Malé hliny.
Dom s úžitkovou plochou 102 m² bude dokončený do štádia holodom v lete 2025.
Predávať sa bude so z ...
315 000 €
Pezinok
900 01
900 01
555 x
Označiť zlý inzerát Chybnú kategóriu Ohodnotiť užívateľa Zmazať/Upraviť/Topovať









