Na predaj 4-izbový RD s garážou v projekte SELANKY Pobedim
- [21.11. 2025]Zmazať/ Upraviť/ Topovať






















Typ: Rodinný dom
Obec: Nové Mesto nad Váhom
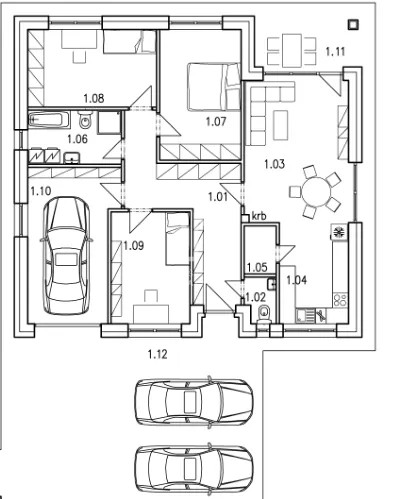
Na pozemku o výmere 551 m² ponúkame na predaj samostatne stojaci prízemný bungalov štvorcového pôdorysu v dvoch variantách: 4-izbový dom s garážou a 2 vonkajšími parkovacími státiami alebo 5-izbový dom bez garáže s 3 vonkajšími státiami. Plánované dokončenie: marec 2026 Stav: holodom s možnosťou dokončenia do štandardu (cca 16 375€). Pozemok: oplotený, rovinatý, s dostatkom priestoru na záhradu aj oddych. Dispozícia 4-izbového variantu: vstupná chodba – 16,27 m², samostatné WC – 1,92 m², obývacia izba s jedálňou a krbom – 20,78 m², kuchyňa – 9,79 m², technická miestnosť – 2,16 m², garáž – 18,33 m², terasa – 8,04 m², spálňa – 14,88 m², detské izby – 13,98 m² a 12,35 m², kúpeľňa s WC. Dispozícia 5-izbového variantu: Vstupná chodba (16,27 m2), z ktorej sa dá vojsť do samostatnej toalety (1,92 m2) ústi do obývacej izby s jedálenskou časťou a krbom (20,78 m2) spojenej s kuchyňou (9,79 m2), odkiaľ je prístup do technickej miestnosti (2,16 m2). V obývacej miestnosti sú osadené veľkoformátové okná umožňujúce vstup priamo na terasu domu (8,04 m2). Zo vstupnej haly je tiež prístup do nočnej časti domu, a to do spálne (14,88 m2) a 3 detských izieb/spální (13,98 m2, 12,35 m2 a 18,33 m2). Veľkoformátové okná prepájajú interiér s exteriérom a zabezpečujú dostatok denného svetla. Premyslená dispozícia ponúka komfortné bývanie pre celú rodinu. Lokalita: Selanky – Pobedim, pokojná lokalita s plnou občianskou vybavenosťou, blízkosť prírody a zároveň výborná dostupnosť, diaľničný privádzač D1 Horná Streda len 4 km, ideálne spojenie vidieckeho pokoja s mestskými výhodami. Moderný bungalov, ktorý spája nadčasový dizajn, kvalitné materiály a praktickú dispozíciu. Neváhajte nás kontaktovať a zistite viac o možnostiach financovania či dokončenia do štandardu. Zavolajte ešte dnes a rezervujte si svoje nové bývanie v Selankách. Gabriela Szabová - certifikovaný realitný maklér NARKS
Viac informácií Vám rada poskytnem na tel. č. +421 910 444 920 alebo mailovej adrese: szabova@piestanyreality.sk
Status: aktívne
Vlastníctvo: osobné
Plocha pozemku: 551 m2
Typ zeme: rovina
Teritórium: Intravilán
Úžitková plocha: 118 m2
Zastavaná plocha: 148 m2
Podlahová plocha
Obec: Nové Mesto nad Váhom
Na pozemku o výmere 551 m² ponúkame na predaj samostatne stojaci prízemný bungalov štvorcového pôdorysu v dvoch variantách: 4-izbový dom s garážou a 2 vonkajšími parkovacími státiami alebo 5-izbový dom bez garáže s 3 vonkajšími státiami. Plánované dokončenie: marec 2026 Stav: holodom s možnosťou dokončenia do štandardu (cca 16 375€). Pozemok: oplotený, rovinatý, s dostatkom priestoru na záhradu aj oddych. Dispozícia 4-izbového variantu: vstupná chodba – 16,27 m², samostatné WC – 1,92 m², obývacia izba s jedálňou a krbom – 20,78 m², kuchyňa – 9,79 m², technická miestnosť – 2,16 m², garáž – 18,33 m², terasa – 8,04 m², spálňa – 14,88 m², detské izby – 13,98 m² a 12,35 m², kúpeľňa s WC. Dispozícia 5-izbového variantu: Vstupná chodba (16,27 m2), z ktorej sa dá vojsť do samostatnej toalety (1,92 m2) ústi do obývacej izby s jedálenskou časťou a krbom (20,78 m2) spojenej s kuchyňou (9,79 m2), odkiaľ je prístup do technickej miestnosti (2,16 m2). V obývacej miestnosti sú osadené veľkoformátové okná umožňujúce vstup priamo na terasu domu (8,04 m2). Zo vstupnej haly je tiež prístup do nočnej časti domu, a to do spálne (14,88 m2) a 3 detských izieb/spální (13,98 m2, 12,35 m2 a 18,33 m2). Veľkoformátové okná prepájajú interiér s exteriérom a zabezpečujú dostatok denného svetla. Premyslená dispozícia ponúka komfortné bývanie pre celú rodinu. Lokalita: Selanky – Pobedim, pokojná lokalita s plnou občianskou vybavenosťou, blízkosť prírody a zároveň výborná dostupnosť, diaľničný privádzač D1 Horná Streda len 4 km, ideálne spojenie vidieckeho pokoja s mestskými výhodami. Moderný bungalov, ktorý spája nadčasový dizajn, kvalitné materiály a praktickú dispozíciu. Neváhajte nás kontaktovať a zistite viac o možnostiach financovania či dokončenia do štandardu. Zavolajte ešte dnes a rezervujte si svoje nové bývanie v Selankách. Gabriela Szabová - certifikovaný realitný maklér NARKS
Viac informácií Vám rada poskytnem na tel. č. +421 910 444 920 alebo mailovej adrese: szabova@piestanyreality.sk
Status: aktívne
Vlastníctvo: osobné
Plocha pozemku: 551 m2
Typ zeme: rovina
Teritórium: Intravilán
Úžitková plocha: 118 m2
Zastavaná plocha: 148 m2
Podlahová plocha
|
| |||||||||||||||||||||||||||||||
Kontaktovať inzerenta e-mailom
Kontaktovať e-mailom môže iba overený užívateľ.
Overenie je zadarmo.
Vaše telefónne číslo *
Kontaktovať e-mailom môže iba overený užívateľ.
Overenie je zadarmo.
Vaše telefónne číslo *

