Poschodový dom v Tvrdošovciach v centre obce vhodné aj na
- [21.11. 2025]Zmazať/ Upraviť/ Topovať


























Typ: Rodinný dom
Ulica: centrum
Obec: Tvrdošovce
VASSE Reality ponúka na predaj 4-izbový rodinný dom v tichej, ale centrálnej časti obce Tvrdošovce. Dom je poschodový, čiastočne zrekonštruovaný a ihneď obývateľný.
Na stránke kancelárie je dostupná virtuálna prehliadka a 23 fotografií, ktoré vám umožnia detailne si dom prezrieť.
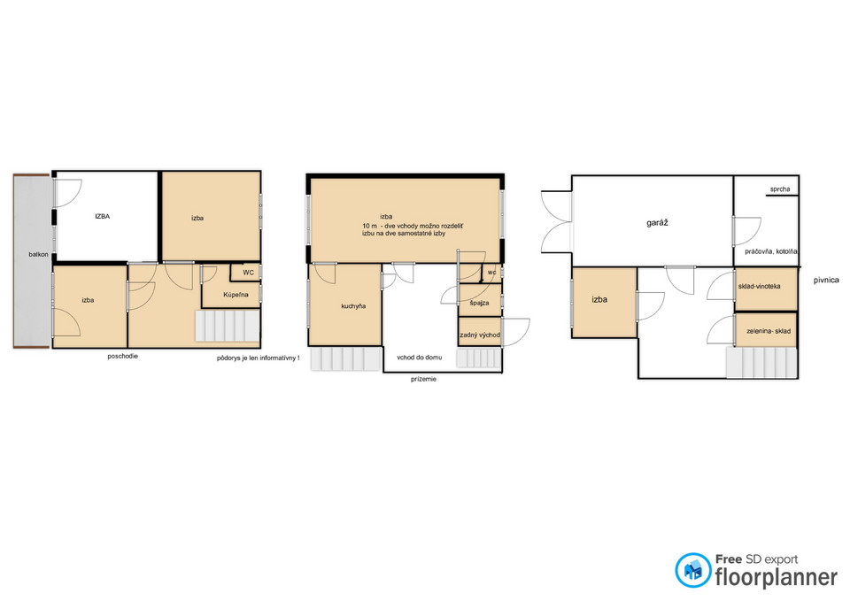
(Pôdorys je informatívny.)
📐 ZÁKLADNÉ ÚDAJE
Rok výstavby: 1976
Materiál: kváder + tehla
Zastavaná plocha: cca 100 m²
Pozemok: 1 103 m²
Rozmery pozemku: cca 12 × 96 m
Stav: čiastočne zrekonštruovaný
Umiestnenie: centrum obce
🏠 DISPOZÍCIA
Dom je prakticky rozdelený na dennú a nočnú časť.
Celý objekt je podpivničený, s množstvom úložného priestoru.
Suterén:
garáž
práčovňa
letná kuchynka
sklad na zeleninu
technická miestnosť
vínna miestnosť
Prízemie (denná časť):
vstup cez vonkajšie schodisko
chodba
kuchyňa
priestranná obývacia izba (cca 10 m) – možnosť rozdeliť na 2 izby
špajza
samostatné WC
1. poschodie (nočná časť):
3 izby
kúpeľňa s vaňou a sprchou
samostatná toaleta
výstup na balkón z dvoch izieb
🔧 TECHNICKÝ STAV A REKONŠTRUKCIA
Rekonštrukcia prebehla v roku 2017:
nová strešná krytina (asfaltové pásy)
plávajúce podlahy v kuchyni, obývačke a na chodbe
nový plynový kotol Protherm (menený pred 4 rokmi)
Ďalšie technické údaje:
kúrenie: plynové, radiátory
ohrev vody: elektrický bojler (nočný prúd)
okná: pôvodné drevené
podlahy: parkety, dlažba, betón
obecná voda, elektrina, plyn, žumpa (v obci sa buduje kanalizácia)
vlastná studňa
🌳 EXTERIÉR A POZEMOK
terasa so súkromím
hospodárska budova + garáž
upravená záhrada s ovocnými stromami a viničom
📍 LOKALITA
Dom sa nachádza v centre obce Tvrdošovce, čo umožňuje využitie aj na podnikanie (kancelária, kozmetika, masáže, služby).
Bezproblémoví a milí susedia, slušná ulica.
🚉 OBČIANSKA VYBAVENOSŤ
výborné vlakové a autobusové spojenie (Nové Zámky 15 km, Nitra 31 km, Bratislava 100 km)
spojenie do závodu Jaguar Land Rover
v obci: MŠ, ZŠ, obchody, pošta, železničná stanica, supermarket, zdravotné stredisko, termálne kúpalisko
💰 CENA
Cena je kompletná – vrátane sprostredkovateľskej provízie RK.
V cene je zahrnutý kompletný právny a zmluvný servis, poplatky za overenie podpisov, návrh na vklad a služby advokátskej kancelárie.
📞 Kontakt: 0907 894 574
📧 VASSE Reality
© Fotografie a text sú autorským dielom a majetkom realitnej kancelárie VASSE Reality.
🟢 U nás nájdete iba aktuálne ponuky!
Status: aktívne
Vlastníctvo: osobné
Plocha pozemku: 1103 m2
Typ zeme: rovina
Teritórium: Intravilán
Šírka pozemku: 12 m
Dĺžka pozemku: 96 m
Úžitková plocha: 240 m2
Zastavaná plocha: 100 m2
Stav: čiastočne prerobený
Počet izieb: 4
Energetický certifikát: žiadne
Energetická náročnosť budovy: Klasické materiály
Typ budovy: tehla
Typ výbavy: čiastočne vybavený
Balkón: áno
Ulica: centrum
Obec: Tvrdošovce
VASSE Reality ponúka na predaj 4-izbový rodinný dom v tichej, ale centrálnej časti obce Tvrdošovce. Dom je poschodový, čiastočne zrekonštruovaný a ihneď obývateľný.
Na stránke kancelárie je dostupná virtuálna prehliadka a 23 fotografií, ktoré vám umožnia detailne si dom prezrieť.
(Pôdorys je informatívny.)
📐 ZÁKLADNÉ ÚDAJE
Rok výstavby: 1976
Materiál: kváder + tehla
Zastavaná plocha: cca 100 m²
Pozemok: 1 103 m²
Rozmery pozemku: cca 12 × 96 m
Stav: čiastočne zrekonštruovaný
Umiestnenie: centrum obce
🏠 DISPOZÍCIA
Dom je prakticky rozdelený na dennú a nočnú časť.
Celý objekt je podpivničený, s množstvom úložného priestoru.
Suterén:
garáž
práčovňa
letná kuchynka
sklad na zeleninu
technická miestnosť
vínna miestnosť
Prízemie (denná časť):
vstup cez vonkajšie schodisko
chodba
kuchyňa
priestranná obývacia izba (cca 10 m) – možnosť rozdeliť na 2 izby
špajza
samostatné WC
1. poschodie (nočná časť):
3 izby
kúpeľňa s vaňou a sprchou
samostatná toaleta
výstup na balkón z dvoch izieb
🔧 TECHNICKÝ STAV A REKONŠTRUKCIA
Rekonštrukcia prebehla v roku 2017:
nová strešná krytina (asfaltové pásy)
plávajúce podlahy v kuchyni, obývačke a na chodbe
nový plynový kotol Protherm (menený pred 4 rokmi)
Ďalšie technické údaje:
kúrenie: plynové, radiátory
ohrev vody: elektrický bojler (nočný prúd)
okná: pôvodné drevené
podlahy: parkety, dlažba, betón
obecná voda, elektrina, plyn, žumpa (v obci sa buduje kanalizácia)
vlastná studňa
🌳 EXTERIÉR A POZEMOK
terasa so súkromím
hospodárska budova + garáž
upravená záhrada s ovocnými stromami a viničom
📍 LOKALITA
Dom sa nachádza v centre obce Tvrdošovce, čo umožňuje využitie aj na podnikanie (kancelária, kozmetika, masáže, služby).
Bezproblémoví a milí susedia, slušná ulica.
🚉 OBČIANSKA VYBAVENOSŤ
výborné vlakové a autobusové spojenie (Nové Zámky 15 km, Nitra 31 km, Bratislava 100 km)
spojenie do závodu Jaguar Land Rover
v obci: MŠ, ZŠ, obchody, pošta, železničná stanica, supermarket, zdravotné stredisko, termálne kúpalisko
💰 CENA
Cena je kompletná – vrátane sprostredkovateľskej provízie RK.
V cene je zahrnutý kompletný právny a zmluvný servis, poplatky za overenie podpisov, návrh na vklad a služby advokátskej kancelárie.
📞 Kontakt: 0907 894 574
📧 VASSE Reality
© Fotografie a text sú autorským dielom a majetkom realitnej kancelárie VASSE Reality.
🟢 U nás nájdete iba aktuálne ponuky!
Status: aktívne
Vlastníctvo: osobné
Plocha pozemku: 1103 m2
Typ zeme: rovina
Teritórium: Intravilán
Šírka pozemku: 12 m
Dĺžka pozemku: 96 m
Úžitková plocha: 240 m2
Zastavaná plocha: 100 m2
Stav: čiastočne prerobený
Počet izieb: 4
Energetický certifikát: žiadne
Energetická náročnosť budovy: Klasické materiály
Typ budovy: tehla
Typ výbavy: čiastočne vybavený
Balkón: áno
|
| |||||||||||||||||||||||||||||||
Kontaktovať inzerenta e-mailom
Kontaktovať e-mailom môže iba overený užívateľ.
Overenie je zadarmo.
Vaše telefónne číslo *
Kontaktovať e-mailom môže iba overený užívateľ.
Overenie je zadarmo.
Vaše telefónne číslo *
Podobné inzeráty
🏡 Na predaj 3-izbový tehlový rodinný dom v pôvodnom stave - [22.11. 2025]ZNÍŽENÁ CENA !!!
🏡 Na predaj 3-izbový tehlový rodinný dom v pôvodnom stave, Tvrdošovce – pozemok 1500 m²
Ponúkame na predaj priestranný 3-izbový tehlový rodinný dom s úžitkovou plochou cca 120 m², nachádzajúci sa v tichej časti obce Tvrdošovce. Dom je v pôvodnom stave – ideálny na rekonštrukci ...
108 000 €
Nové Zámky
941 10
941 10
209 x
Označiť zlý inzerát Chybnú kategóriu Ohodnotiť užívateľa Zmazať/Upraviť/Topovať
Rodinný dom s hosťovským domom, Tvrdošovce - [21.11. 2025]Typ: Rodinný dom
Ulica: Tvdošovce
Obec: Tvrdošovce
Hľadáte rodinný dom pre dve generácie alebo s možnosťou podnikania? To a možno aj viac poskytuje rodinný dom, ktorý sme pre Vás zaradili do ponuky.
Na pozemku s rozlohou 360 m2 sú postavené dva domy. Hlavný rodinný dom pozostáva z p ...
128 000 €
Nové Zámky
941 10
941 10
177 x
Označiť zlý inzerát Chybnú kategóriu Ohodnotiť užívateľa Zmazať/Upraviť/Topovať
Na splátky 5 izbový rodinný dom v obci Tvrdošovce - [21.11. 2025]Aktuálne stále.Ponúkame na predaj 5 izbový rodinný dom v obci Tvrdošovce. Dom pozostáva z kuchyne, kúpeľne, chodba, WC, komora. Dom je pôvodnom stave a je nutná rekonštrukcia. Na pozemku sú všetky inžinierske siete a aj studňa. Akontácia 18000 a mesačne 500 eur.
V texte
Nové Zámky
941 10
941 10
65 x
Označiť zlý inzerát Chybnú kategóriu Ohodnotiť užívateľa Zmazať/Upraviť/Topovať
Ponúkame na predaj 3 izbový radový dom v obci Rastislavice. - [19.11. 2025]Úžitková plocha: 90 m2. Terasa 15 m2. Dom je postavený z tehly Porotherm, zateplený polystyrénom s hrúbkou 15 cm. Strešná krytina je betónová - Terano. Kúrenie v obývačke a kuchyni je podlahové, v izbách je kúrenie zabezpečené konvektormi. Okná sú Gealan - trojsklo.
Pozemok 376 m2.
V obci je do ...
164 900 €
Nové Zámky
941 10
941 10
47 x
Označiť zlý inzerát Chybnú kategóriu Ohodnotiť užívateľa Zmazať/Upraviť/Topovať
Na predaj starší RD na veľkom pozemku v Tvrdošovciach - [17.11. 2025]Typ: Rodinný dom
Ulica: .
Obec: Tvrdošovce
IBA U NÁS:
Ponúkame Vám na predaj starší rodinný dom v pôvodnom stave s rozlohou 170 m2 v tichšej ulici obce Tvrdošovce na 2300 m2 pozemku.
- klasický starší dom do L, s dvoma izbami v prednej časti domu a s presklennou chodbou vedúcou do kuchyne ...
79 000 €
Nové Zámky
941 10
941 10
69 x
Označiť zlý inzerát Chybnú kategóriu Ohodnotiť užívateľa Zmazať/Upraviť/Topovať
Na predaj rodinný dom v tichej lokalite – Malý Jatov, NZ - [17.11. 2025]Lokalita:
Ponúkame na predaj rodinný dom nachádzajúci sa v tichej a pokojnej časti obce Malý Jatov (okres Nové Zámky). Obec poskytuje príjemné vidiecke prostredie s výbornou dostupnosťou – železničná stanica sa nachádza len 300 metrov od nehnuteľnosti.
Popis nehnuteľnosti:
Celková výmera po ...
75 000 €
Nové Zámky
941 10
941 10
136 x
Označiť zlý inzerát Chybnú kategóriu Ohodnotiť užívateľa Zmazať/Upraviť/Topovať
Päťizbový rodinný dom s garážou v Tvrdošovciach - [16.11. 2025]Tento priestranný 5-izbový rodinný dom s garážou sa nachádza v tichej a pokojnej ulici v obci Tvrdošovce. Dom je situovaný na rovinatom, slnečnom pozemku s výmerou 800 m² a šírkou 23 metrov, čo ponúka dostatok priestoru na oddych, záhradu či ďalšie využitie podľa vlastných predstáv.
Nehnuteľnosť ...
94 000 €
Nové Zámky
941 10
941 10
119 x
Označiť zlý inzerát Chybnú kategóriu Ohodnotiť užívateľa Zmazať/Upraviť/Topovať
ALL INCLUSIVE | NA PREDAJ 4-IZBOVÝ RD NA 1186 M² POZEMKU, TV - [11.11. 2025]Realitná kancelária ALL INCLUSIVE REAL Vám ponúka na predaj útulný 4-izbový rodinný dom v obci Tvrdošovce, nachádzajúci sa v obľúbenej lokalite s výbornou dostupnosťou do Nových Zámkov, Šale či Komárna.
Dom je situovaný na priestrannom a rovinatom pozemku, vhodný najmä pre rodiny hľadajúce pokojné ...
155 000 €
Nové Zámky
941 10
941 10
184 x
Označiť zlý inzerát Chybnú kategóriu Ohodnotiť užívateľa Zmazať/Upraviť/Topovať
Priestranný pozemok so starším rodinným domom v obci Tvrd - [11.11. 2025]Ponúkame na predaj veľký pozemok o výmere 2 300 m² s ideálnymi rozmermi 19 × 122 m nachádzajúci sa v tichej, okrajovej časti obce Tvrdošovce.
Na pozemku sa nachádza starší rodinný dom z roku 1950, postavený z pálenej a nepálenej tehly. Dom je v pôvodnom, ale zachovalom stave, so suchými stenami ...
118 000 €
Nové Zámky
941 10
941 10
97 x
Označiť zlý inzerát Chybnú kategóriu Ohodnotiť užívateľa Zmazať/Upraviť/Topovať
Rodinný dom na polosamote v obci Rastislavice– pokoj, tich - [10.11. 2025]Hľadáte si bývanie alebo chalupu na mieste, kde budete mať úplný kľud a súkromie? Tento domček na polosamote je ideálnou voľbou.
Dom bol postavený v roku 1960 a vyžaduje si kompletnú rekonštrukciu. Aktuálne je v štádiu začatej rekonštrukcie – ideálny pre tých, ktorí si chcú vytvoriť bývanie podľa ...
90 000 €
Nové Zámky
941 10
941 10
171 x
Označiť zlý inzerát Chybnú kategóriu Ohodnotiť užívateľa Zmazať/Upraviť/Topovať





