Moderný 4-izbový rodinný dom – novostavba v krásnej lokalite
- [21.11. 2025]Zmazať/ Upraviť/ Topovať










Typ: Rodinný dom
Obec: Sokolovce
JKV Real ponúka na predaj moderný 4-izbový rodinný dom v objekte dvojdomu na peknom, rovinatom pozemku v novej zástavbe, v krásnej lokalite. Dom bude dokončený do štádia holodomu – vonkajšie dvere, okná, potery, zateplenie a fasáda sú už hotové.
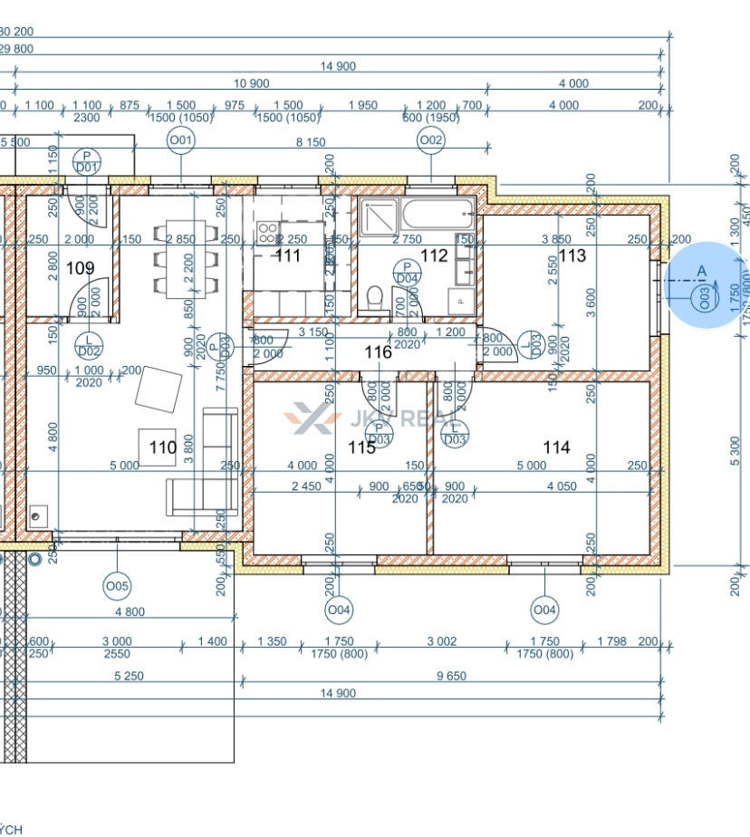
Dom má úžitkovú plochu 108,5 m², má priestrannú terasu a zastavanú plochu 134 m². Pozemok, na ktorom sa dom nachádza, má rozlohu 350 m². Dispozícia zahŕňa 4 izby a dom je situovaný na prízemí s jedným poschodím. Nehnuteľnosť je vo vlastníctve fyzickej osoby. K domu sú vydláždené 3 parkovacie miesta.
Dispozícia
Vstupná chodba
3x izba
Obývacia miestnosť s východom na terasu
Kuchyňa s jedálňou
Kúpeľňa s WC
Technické informácie
Stav: holodomu
Materiál: Porfix (pórobetón)
Strecha: plochá, krytina Fatrafol
Okná: plastové Salamander, izolačné trojsklo
Vykurovanie: elektrické podlahové
Omietky: sadrové BAUMIT
Fasáda: silikónová, biela
Pripojenie na inžinierske siete: obecná voda, elektrina, žumpa 16 m³
Dom sa nachádza v novej výstavbe domov v Sokolovciach, Celá obytná oblasť je zasadená do tichého prostredia obce s nádherným výhľadom. V obci sa nachádza uplné občianske vybavenie, približne 8 minút autom od Piešťan.
Cena: 165 000 €
V prípade záujmu ma neváhajte kontaktovať, pre viac informácií alebo dohodnutie obhliadky 0940 599 023 - Ing. Sabína Benkovská
Status: aktívne
Vlastníctvo: osobné
Plocha pozemku: 350 m2
Typ zeme: rovina
Teritórium: Intravilán
Úžitková plocha: 108.5 m2
Zastavaná plocha: 134 m2
Podlahová plocha: 108.5 m2
Stav: Vo výstavbe
Počet izieb: 4
Typ budovy: iné
Typ výbavy: holopriestor
Rok výstavby: 2025
Celková plocha: 108.5 m2
Vykurovanie - podlahové: áno
Telefón: áno
Internet: áno
Satelit: áno
Káblová TV: áno
Optická sieť: áno
Iné: áno
Obec: Sokolovce
JKV Real ponúka na predaj moderný 4-izbový rodinný dom v objekte dvojdomu na peknom, rovinatom pozemku v novej zástavbe, v krásnej lokalite. Dom bude dokončený do štádia holodomu – vonkajšie dvere, okná, potery, zateplenie a fasáda sú už hotové.
Dom má úžitkovú plochu 108,5 m², má priestrannú terasu a zastavanú plochu 134 m². Pozemok, na ktorom sa dom nachádza, má rozlohu 350 m². Dispozícia zahŕňa 4 izby a dom je situovaný na prízemí s jedným poschodím. Nehnuteľnosť je vo vlastníctve fyzickej osoby. K domu sú vydláždené 3 parkovacie miesta.
Dispozícia
Vstupná chodba
3x izba
Obývacia miestnosť s východom na terasu
Kuchyňa s jedálňou
Kúpeľňa s WC
Technické informácie
Stav: holodomu
Materiál: Porfix (pórobetón)
Strecha: plochá, krytina Fatrafol
Okná: plastové Salamander, izolačné trojsklo
Vykurovanie: elektrické podlahové
Omietky: sadrové BAUMIT
Fasáda: silikónová, biela
Pripojenie na inžinierske siete: obecná voda, elektrina, žumpa 16 m³
Dom sa nachádza v novej výstavbe domov v Sokolovciach, Celá obytná oblasť je zasadená do tichého prostredia obce s nádherným výhľadom. V obci sa nachádza uplné občianske vybavenie, približne 8 minút autom od Piešťan.
Cena: 165 000 €
V prípade záujmu ma neváhajte kontaktovať, pre viac informácií alebo dohodnutie obhliadky 0940 599 023 - Ing. Sabína Benkovská
Status: aktívne
Vlastníctvo: osobné
Plocha pozemku: 350 m2
Typ zeme: rovina
Teritórium: Intravilán
Úžitková plocha: 108.5 m2
Zastavaná plocha: 134 m2
Podlahová plocha: 108.5 m2
Stav: Vo výstavbe
Počet izieb: 4
Typ budovy: iné
Typ výbavy: holopriestor
Rok výstavby: 2025
Celková plocha: 108.5 m2
Vykurovanie - podlahové: áno
Telefón: áno
Internet: áno
Satelit: áno
Káblová TV: áno
Optická sieť: áno
Iné: áno
|
| |||||||||||||||||||||||||||||||
Kontaktovať inzerenta e-mailom
Kontaktovať e-mailom môže iba overený užívateľ.
Overenie je zadarmo.
Vaše telefónne číslo *
Kontaktovať e-mailom môže iba overený užívateľ.
Overenie je zadarmo.
Vaše telefónne číslo *