Malé Straciny - rodinný dom - znížená cena
- [21.11. 2025]Zmazať/ Upraviť/ Topovať






























Realitná kancelária Nataly reality, s. r. o., Vám ponúka na predaj zaujímavú nehnuteľnosť v obci Malé Straciny (dve stavby vedľa seba, postavené na jednom neohradenom dvore v strede obce).
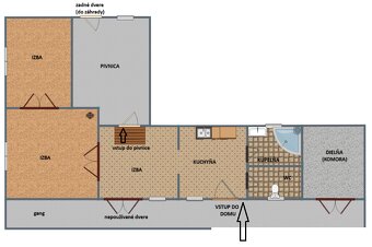
Dom s.č. 42 je asi 90-ročná prízemná, čiastočne podpivničená stavba, postavená z kombinácie nepálených a pálených tehál. Má sedlovú strechu pokrytú pôvodnou škridlou. Dom má obytnú časť a prístavbu. Obytná časť pozostáva z kuchyne, 3 izieb (z jednej izby je vstup do pivnice), kúpeľne a WC, v prístavbe je komora (dielňa). Dom je napojený na elektrický rozvod 220/380 V, obecný vodovod, odpad do žumpy, ohrev teplej vody elektrickým bojlerom, kúrenie pevným palivom (kachle). Vstupné dvere do domu sú plastové, okná sú plastové bez žalúzií, okrem kúpeľne a WC kde sú pôvodné drevené okná. Na podlahách 2 izieb je gumolit, v kúpeľni je rohová vaňa, umývadlo a elektrický bojler na vodu. Osobitne sa nachádza toaleta (splachovacie WC). Celková výmera priestorov vrátane dielne a pivnice je 95 m2, z toho obytná plocha 58 m2 (kuchyňa + 3 izby).
Na dvore je aj druhá stavba s.č. 43, evidovaná ako rodinný dom (v súčasnosti nie je vhodná na bývanie). Tento dom je postavený z nepálených tehál. Vnútorná výmera je 64m2. Je v zlom technickom stave. Nie je obývaná a je odpojená od všetkých inžinierskych sietí.
Výmera pozemku je 367 m2, ktorá patrí výlučne predávajúcemu. Predávajúci je aj podielovým spoluvlastníkom prístupovej cesty s výmerou 119 m2 (spoločný dvor). Dom môže slúžiť ako víkendová chalupa, alebo aj na trvalé bývanie. Prevažnú väčšinu dňa je pozemok vystavený slnku. Stavby v súčasnosti nie sú obývané, sú k dispozícii ihneď. Predávajú sa oba domy spolu. Na tieto nehnuteľnosti nie je možné využiť financovanie prostredníctvom hypotekárneho úveru.
Pri predaji poskytneme záujemcovi právny servis, realitné poradenstvo, služby znalca či geodeta, sprostredkujeme spoľahlivé finančné služby, sťahovanie, prehlásenie odberu elektrickej energie, plynu a vody. Garant predaja je na realitnom trhu už viac ako 30 rokov.
Dom s.č. 42 je asi 90-ročná prízemná, čiastočne podpivničená stavba, postavená z kombinácie nepálených a pálených tehál. Má sedlovú strechu pokrytú pôvodnou škridlou. Dom má obytnú časť a prístavbu. Obytná časť pozostáva z kuchyne, 3 izieb (z jednej izby je vstup do pivnice), kúpeľne a WC, v prístavbe je komora (dielňa). Dom je napojený na elektrický rozvod 220/380 V, obecný vodovod, odpad do žumpy, ohrev teplej vody elektrickým bojlerom, kúrenie pevným palivom (kachle). Vstupné dvere do domu sú plastové, okná sú plastové bez žalúzií, okrem kúpeľne a WC kde sú pôvodné drevené okná. Na podlahách 2 izieb je gumolit, v kúpeľni je rohová vaňa, umývadlo a elektrický bojler na vodu. Osobitne sa nachádza toaleta (splachovacie WC). Celková výmera priestorov vrátane dielne a pivnice je 95 m2, z toho obytná plocha 58 m2 (kuchyňa + 3 izby).
Na dvore je aj druhá stavba s.č. 43, evidovaná ako rodinný dom (v súčasnosti nie je vhodná na bývanie). Tento dom je postavený z nepálených tehál. Vnútorná výmera je 64m2. Je v zlom technickom stave. Nie je obývaná a je odpojená od všetkých inžinierskych sietí.
Výmera pozemku je 367 m2, ktorá patrí výlučne predávajúcemu. Predávajúci je aj podielovým spoluvlastníkom prístupovej cesty s výmerou 119 m2 (spoločný dvor). Dom môže slúžiť ako víkendová chalupa, alebo aj na trvalé bývanie. Prevažnú väčšinu dňa je pozemok vystavený slnku. Stavby v súčasnosti nie sú obývané, sú k dispozícii ihneď. Predávajú sa oba domy spolu. Na tieto nehnuteľnosti nie je možné využiť financovanie prostredníctvom hypotekárneho úveru.
Pri predaji poskytneme záujemcovi právny servis, realitné poradenstvo, služby znalca či geodeta, sprostredkujeme spoľahlivé finančné služby, sťahovanie, prehlásenie odberu elektrickej energie, plynu a vody. Garant predaja je na realitnom trhu už viac ako 30 rokov.
|
| |||||||||||||||||||||||||||||||
Kontaktovať inzerenta e-mailom
Kontaktovať e-mailom môže iba overený užívateľ.
Overenie je zadarmo.
Vaše telefónne číslo *
Kontaktovať e-mailom môže iba overený užívateľ.
Overenie je zadarmo.
Vaše telefónne číslo *









