V ŠTANDARDE - 4izb. BYT + TERASA - 120m2 a viac - REZIDENCIA
- [21.11. 2025]Zmazať/ Upraviť/ Topovať






























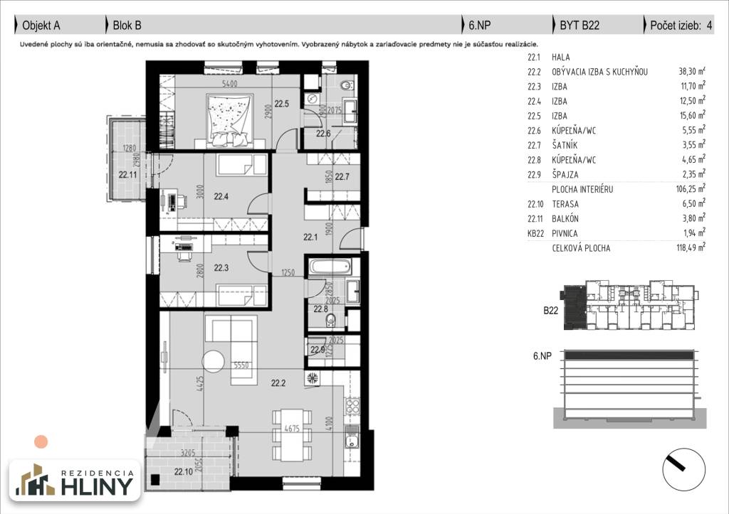
REWIN reality Vám EXKLUZÍVNE ponúka VEĽKORYSÝ 4 izbový BYT s LOGGIOU a BALKÓNOM o výmere 118,49 m2 v práve dokončenej a SKOLAUDOVANEJ novostavbe REZIDENCIA HLINY v Novej Dubnici. Prevádzky Billa supermarket & Benu lekáreň sú už spustené.
CENA PLATÍ PRE ŠTANDARDNÉ VYHOTOVENIE, NIŽŠIE OPIS ŠTANDARDU.
Základné technické pamaretre bytu o výmere 118,49 m2:
- 106,25 m2 výmera interiéru,
- 1,12 m2 výmera pivnice,
- 6,50 m2 výmera terasy,
- 3,80 m2 výmera balkónu.
Pozrite si pôdorys na poslednom mieste medzi fotografiami inzerátu.
Chcete vidieť všetky zvyšné fotky a virtuálnu obhliadku k bytu? Pošlite mi mail na martisek(zavinac)rewin(bodka)sk.
Projekt REZIDENCIA HLINY v energetickom štandarde (A0 - Primárna energia), bol na začiatku roka 2025 dokončený a skolaudovaný. Jedná sa o polyfunkčný objekt s vysokou úrovňou štandardu, v podobe veľkorysých dispozicií a rozmier bytov, komfortné veľké loggie a balkóny, pivnica ku každému bytu na poschodí, spoločné priestory pre obyvateľov domu pre každý vchod vzvlášť, vnútorné garážové a vonkajšie parkovacie miesta, a v neposlednom rade nadpriemerná vybavenosť v podobe Billa supermarketu a Benu lekárne priamo v objekte.
ŠTANDARD, ktorý Vás očarí
Predpríprava na externé rolety, predpríprava na klimatizáciu, pasívna rekuperácia na vetranie, predpríprava na smart ovládanie domácnosti, 6-komorové okná s izolačným trosjklom, závesny WC systém Geberit, vaňa alebo sprchový kút, odsávací ventilátor so spätnou klapkou, optický kábel pre internet a TV privedený priamo do bytu, domáci telefón a elektronický vrátnik, protipožiarne bezpečnostné viacbodové vchodové dvere, vysoká úroveň izolácie stien.
MOŽNOSŤ ZAKÚPIŤ v prevedení HOLOBYT, ŠTANDARD a aj KOMPLETNÉ ZARIADENIE vďaka partnerovi projektu TOMI štúdio Ilava.
Lokalita NOVÁ DUBNICA
Výnimočné mesto s bohatou občianskou vybavenosťou a dostupnosťou. Centrum mesta je známe svojou jedinečnou architektúrou z 50. rokov minulého storočia navrhnutou architektom Jiřím Krohom. Množstvo kultúrnych podujatí v rámci celého roka. Vybavenosť obchodov ako sú BILLA, LIDL, Coop jednota, Tesco, lekárne Benu, Dr. Max, Sara Medica, kino, známa zmrzlina VELICE, doplnkové obchody, kvetinárstva, a kvalitné reštaurácie. V letných mesiacoch poteší ochladenie v Kúpalisku LETKA, v zime zas krytá plaváreň. Toto mesto poskytuje všetko na život či ste mladý človek, začinajúci pár alebo väčšia rodina s deťmi rôzneho veku. Pre športovcov a milovníkov prírody je toto ideálne miesto na bývanie vzhľadom na dostupnosť do rekreácie.
Dostupnosť na kľúčové miesta z projektu:
- pešia dostupnosť do Novej Dubnice,
- 5 min. napojenie na D1 autom,
- do 15 min. presun autom do Trenčína,
- do 5 min. presun autom do Dubnice nad Váhom.
Chcete vedieť presné náklady k bytu a ostatné technické detaily? Pošlite mi mail a odošlem Vám dodatočné informácie.
V prípade záujmu o viac informácií alebo obhliadku ma neváhajte konta
CENA PLATÍ PRE ŠTANDARDNÉ VYHOTOVENIE, NIŽŠIE OPIS ŠTANDARDU.
Základné technické pamaretre bytu o výmere 118,49 m2:
- 106,25 m2 výmera interiéru,
- 1,12 m2 výmera pivnice,
- 6,50 m2 výmera terasy,
- 3,80 m2 výmera balkónu.
Pozrite si pôdorys na poslednom mieste medzi fotografiami inzerátu.
Chcete vidieť všetky zvyšné fotky a virtuálnu obhliadku k bytu? Pošlite mi mail na martisek(zavinac)rewin(bodka)sk.
Projekt REZIDENCIA HLINY v energetickom štandarde (A0 - Primárna energia), bol na začiatku roka 2025 dokončený a skolaudovaný. Jedná sa o polyfunkčný objekt s vysokou úrovňou štandardu, v podobe veľkorysých dispozicií a rozmier bytov, komfortné veľké loggie a balkóny, pivnica ku každému bytu na poschodí, spoločné priestory pre obyvateľov domu pre každý vchod vzvlášť, vnútorné garážové a vonkajšie parkovacie miesta, a v neposlednom rade nadpriemerná vybavenosť v podobe Billa supermarketu a Benu lekárne priamo v objekte.
ŠTANDARD, ktorý Vás očarí
Predpríprava na externé rolety, predpríprava na klimatizáciu, pasívna rekuperácia na vetranie, predpríprava na smart ovládanie domácnosti, 6-komorové okná s izolačným trosjklom, závesny WC systém Geberit, vaňa alebo sprchový kút, odsávací ventilátor so spätnou klapkou, optický kábel pre internet a TV privedený priamo do bytu, domáci telefón a elektronický vrátnik, protipožiarne bezpečnostné viacbodové vchodové dvere, vysoká úroveň izolácie stien.
MOŽNOSŤ ZAKÚPIŤ v prevedení HOLOBYT, ŠTANDARD a aj KOMPLETNÉ ZARIADENIE vďaka partnerovi projektu TOMI štúdio Ilava.
Lokalita NOVÁ DUBNICA
Výnimočné mesto s bohatou občianskou vybavenosťou a dostupnosťou. Centrum mesta je známe svojou jedinečnou architektúrou z 50. rokov minulého storočia navrhnutou architektom Jiřím Krohom. Množstvo kultúrnych podujatí v rámci celého roka. Vybavenosť obchodov ako sú BILLA, LIDL, Coop jednota, Tesco, lekárne Benu, Dr. Max, Sara Medica, kino, známa zmrzlina VELICE, doplnkové obchody, kvetinárstva, a kvalitné reštaurácie. V letných mesiacoch poteší ochladenie v Kúpalisku LETKA, v zime zas krytá plaváreň. Toto mesto poskytuje všetko na život či ste mladý človek, začinajúci pár alebo väčšia rodina s deťmi rôzneho veku. Pre športovcov a milovníkov prírody je toto ideálne miesto na bývanie vzhľadom na dostupnosť do rekreácie.
Dostupnosť na kľúčové miesta z projektu:
- pešia dostupnosť do Novej Dubnice,
- 5 min. napojenie na D1 autom,
- do 15 min. presun autom do Trenčína,
- do 5 min. presun autom do Dubnice nad Váhom.
Chcete vedieť presné náklady k bytu a ostatné technické detaily? Pošlite mi mail a odošlem Vám dodatočné informácie.
V prípade záujmu o viac informácií alebo obhliadku ma neváhajte konta
|
| |||||||||||||||||||||||||||||||
Kontaktovať inzerenta e-mailom
Kontaktovať e-mailom môže iba overený užívateľ.
Overenie je zadarmo.
Vaše telefónne číslo *
Kontaktovať e-mailom môže iba overený užívateľ.
Overenie je zadarmo.
Vaše telefónne číslo *
Podobné inzeráty
NA PREDAJ 2-IZBOVÝ BYT V NOVEJ DUBNICI 56 M2 S BALKÓNOM... - [23.11. 2025]Tureality ponúka na predaj 2-izbový byt v Novej Dubnici na ulici SNP s výmerou 56 M2 s balkónom a s francúzskym oknom. Byt je po kompletnej rekonštrukcii, nové inžinierske siete, elektrika, stúpačky, voda a plyn, internet - Magio. V byte sa menila aj dispozícia bývania. Kompletná renovácia podláh, z ...
134 900 €
Ilava
018 51
018 51
369 x
Označiť zlý inzerát Chybnú kategóriu Ohodnotiť užívateľa Zmazať/Upraviť/Topovať
HALO reality - Predaj, trojizbový byt Nová Dubnica, Janka Kr - [21.11. 2025]Ponúkame na predaj 3-izbový byt o výmere 67 m2 v tichej a vyhľadávanej lokalite na okraji mesta Nová Dubnica. Byt disponuje nepriechodnými izbami, loggiou a je kúpou ihneď voľný. Všetka občianska vybavenosť je dostupná v pešej vzdialenosti.
DISPOZÍCIA:
Byt pozostáva zo vstupnej predsiene a ...
143 000 €
Ilava
018 51
018 51
368 x
Označiť zlý inzerát Chybnú kategóriu Ohodnotiť užívateľa Zmazať/Upraviť/Topovať
V ŠTANDARDE - 3 izb. BYT + loggia - 72,62 m2 - REZIDENCIA HL - [21.11. 2025]REWIN reality Vám EXKLUZÍVNE ponúka VEĽKORYSÝ 3 izbový BYT s LOGGIOU o výmere 72,62 m2 v práve dokončenej a SKOLAUDOVANEJ novostavbe REZIDENCIA HLINY v Novej Dubnici. Prevádzky Billa supermarket & Benu lekáreň sú už spustené.
CENA PLATÍ PRE ŠTANDARDNÉ VYHOTOVENIE, NIŽŠIE OPIS ŠTANDARDU.
Zákla ...
189 980 €
Ilava
018 51
018 51
302 x
Označiť zlý inzerát Chybnú kategóriu Ohodnotiť užívateľa Zmazať/Upraviť/Topovať
NA PREDAJ 2-IZBOVÝ BYT V NOVEJ DUBNICI S VÝMEROU 63 M2 - [21.11. 2025]TUreality ponúka na predaj pekný 2-izb.byt pred dokončovacími úpravami. Prerábka bytu je v netradičnom prevedení. V častiach bytu zostávajú pôvodné doplnky k spríjemneniu bývania a zároveň k motivácii zariadenia. Je v Novej Dubnici v centre mesta na ulici Sady Cyrila a Metoda v tehlovom bytovom dome ...
133 000 €
Ilava
018 51
018 51
225 x
Označiť zlý inzerát Chybnú kategóriu Ohodnotiť užívateľa Zmazať/Upraviť/Topovať
NA PREDAJ 2-IZBOVÝ BYT V NOVEJ DUBNICI S VÝMEROU 56M2. - TOP - [24.11. 2025]TUreality ponúka na predaj 2- izbového bytu v Novej Dubnici na ulici SNP s výmerou podlahovej ploche 56 M2 s balkónom a s francúzskym oknom. Byt sa nachádza na 3/8 poschodí v zateplenom bytovom dome. Kde prebehla kompletná rekonštrukcia celého domu aj s novým výťahom, strechou. Dom má bezbarierový ...
110 090 €
Ilava
018 51
018 51
96 x
Označiť zlý inzerát Chybnú kategóriu Ohodnotiť užívateľa Zmazať/Upraviť/Topovať
NA PREDAJ 2-IZ.BYT V NDCA 2X BALKÓN S VÝMEROU 59M2 +... - [19.11. 2025]Tureality ponúka exkluzívny predaj 2-izbového bytu v Novej Dubnici na ulici SNP, s výmerou 59 m2, na 2/8 poschodí s 2X presklenými balkónmi a s pivnicou. Bytový dom je celý po kompletnej peknej prerábke - od strechy až po pivničné priestranstvá, s novou strechou, nový obojstranný výťah, el. vrátnik ...
105 000 €
Ilava
018 51
018 51
103 x
Označiť zlý inzerát Chybnú kategóriu Ohodnotiť užívateľa Zmazať/Upraviť/Topovať
V ŠTANDARDE - 2izb. BYT + loggia 50,37 m2 a viac - REZIDENCI - [18.11. 2025]REWIN reality Vám EXKLUZÍVNE ponúka VEĽKORYSÝ 2 izbový BYT s LOGGIOU o výmere 50,37 m2 v práve dokončenej a SKOLAUDOVANEJ novostavbe REZIDENCIA HLINY v Novej Dubnici. Prevádzky Billa supermarket & Benu lekáreň sú už spustené.
CENA PLATÍ PRE ŠTANDARDNÉ VYHOTOVENIE, NIŽŠIE OPIS ŠTANDARDU.
Zákla ...
135 788 €
Ilava
018 51
018 51
73 x
Označiť zlý inzerát Chybnú kategóriu Ohodnotiť užívateľa Zmazať/Upraviť/Topovať
V ŠTANDARDE - 1i. BYT s balkónom - 41,27 m2 - REZIDENCIA HLI - [18.11. 2025]REWIN reality Vám EXKLUZÍVNE ponúka VEĽKORYSÝ 1 izbový BYT s BALKÓNOM o výmere 41,27 m2 v práve dokončenej a SKOLAUDOVANEJ novostavbe REZIDENCIA HLINY v Novej Dubnici. Prevádzky Billa supermarket & Benu lekáreň sú už spustené.
CENA PLATÍ PRE ŠTANDARDNÉ VYHOTOVENIE, NIŽŠIE OPIS ŠTANDARDU.
Zákl ...
114 980 €
Ilava
018 51
018 51
56 x
Označiť zlý inzerát Chybnú kategóriu Ohodnotiť užívateľa Zmazať/Upraviť/Topovať
Plnohodnotný 2 izbový 60m2 byt s balkónom a loggiou - TOP - [24.11. 2025]Plnohodnotný 2 izbový 60m2 byt s balkónom a loggiou, na ulici SNP - Nová Dubnica
✅ čiastočne vybavebný
✅ čiastočná rekonštrukcia
✅ žiadaná lokalita, kompletná občianska vybavenost do 5 minút
□ podlahová plocha 60m²
□ naprosto bezbariérový prístup
□ kúpou voľný
□ bez tiarch
□ sádrokarton ...
115 000 €
Ilava
018 51
018 51
461 x
Označiť zlý inzerát Chybnú kategóriu Ohodnotiť užívateľa Zmazať/Upraviť/Topovať
4 izbový byt Nová Dubnica - [16.11. 2025]Mám záujem o kúpu 4 izbového bytu v Novej Dubnici. Platba v hotovosti
Dohodou
Ilava
018 51
018 51
87 x
Označiť zlý inzerát Chybnú kategóriu Ohodnotiť užívateľa Zmazať/Upraviť/Topovať









