Predáme novostavbu RD v Slavnici - dokončenie v 12/2026
- [21.11. 2025]Zmazať/ Upraviť/ Topovať




















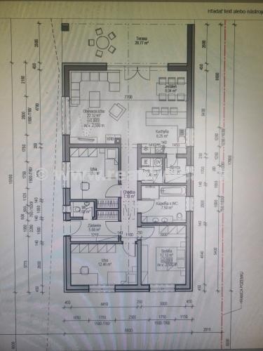
Predáme novostavbu 4-izbového rodinného domu v Slavnici, v novovybudovanej štvrti rodinných domov, ktorý bude postavený v 12/2026 s rovinatým pozemkom o výmere 1072 m2 ( 35x30). Dom bude nízkoenergetický z tehál, 30mm hrúbka, zateplenie 15 mm polystyrénom , škrídla bude betónová taška, silikónová omietka. Zastavaná plocha domu 130m2 plus terasa 28 m2. Vykurovanie bude elektrické podlahové, zásobník na TUV elektrický, predpríprava na krb v obývacej izbe, kompletná elektroinštalácia Dom sa predáva ako holodom. Možnosť aj dokončenia za príplatok ( sanita, plávajúce podlahy , keramická dlažba, interiérové dvere, biela maľovka). Dom bude napojený na obecný vodovod, septik, elektrika. Dispozičné riešenie: vstupná chodba, WC, kúpelňa s druhým WC, technická miestnosť, tri spálne, veľká obývacia izba s jedálňou, kuchyňou s východom na terasu, špajza .
|
| |||||||||||||||||||||||||||||||
Kontaktovať inzerenta e-mailom
Kontaktovať e-mailom môže iba overený užívateľ.
Overenie je zadarmo.
Vaše telefónne číslo *
Kontaktovať e-mailom môže iba overený užívateľ.
Overenie je zadarmo.
Vaše telefónne číslo *