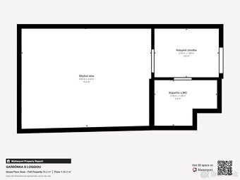
GARSÓNKA S LOGGIOU
- [21.11. 2025]Zmazať/ Upraviť/ Topovať


















Link na 3D virtuálnu prehliadku:
https://my.matterport.com/show/?m=NGsYd66X56E
Garsónka je situovaná v bytovom dome na ulici Dr. Janského v meste Žiar nad Hronom. Jej interiér tvorí vstupná chodba, obytná izba a kúpeľňa spojená s WC. Bytový dom má vlastnú recepciu, 2 osobné výťahy a zrekonštruovanú strechu. V jeho blízkosti sa nachádzajú školy, škôlky, úrady, zastávky MHD a prímestských liniek, obchody, nemocnica a iné.
Lokalita: Žiar nad Hronom (ulica Dr. Janského)
Kúpna cena: 23.500 EUR
Výmera bytu: 22 m2
Pivnica: nie
Loggia: áno
Stavebný materiál: panel
Okná: plastové s izolačným dvojsklom
Radiátor: pôvodný (liatinový)
Poschodie: 11/12 (s výťahom)
Stav: pôvodný
Plyn: nie
Mesačné platby do BSD s elektrinou: 164 EUR (2 osoby)
Internet: káblový
Cena zahŕňa províziu realitnej kancelárie a súvisiace služby, ako je právne poradenstvo, vypracovanie rezervačných a kúpnych zmlúv.
Realitná kancelária Amicus reality s.r.o.
M. R. Štefánika 4
Žiar nad Hronom
965 01
Miroslav Beniak
+421 905 369 269
https://my.matterport.com/show/?m=NGsYd66X56E
Garsónka je situovaná v bytovom dome na ulici Dr. Janského v meste Žiar nad Hronom. Jej interiér tvorí vstupná chodba, obytná izba a kúpeľňa spojená s WC. Bytový dom má vlastnú recepciu, 2 osobné výťahy a zrekonštruovanú strechu. V jeho blízkosti sa nachádzajú školy, škôlky, úrady, zastávky MHD a prímestských liniek, obchody, nemocnica a iné.
Lokalita: Žiar nad Hronom (ulica Dr. Janského)
Kúpna cena: 23.500 EUR
Výmera bytu: 22 m2
Pivnica: nie
Loggia: áno
Stavebný materiál: panel
Okná: plastové s izolačným dvojsklom
Radiátor: pôvodný (liatinový)
Poschodie: 11/12 (s výťahom)
Stav: pôvodný
Plyn: nie
Mesačné platby do BSD s elektrinou: 164 EUR (2 osoby)
Internet: káblový
Cena zahŕňa províziu realitnej kancelárie a súvisiace služby, ako je právne poradenstvo, vypracovanie rezervačných a kúpnych zmlúv.
Realitná kancelária Amicus reality s.r.o.
M. R. Štefánika 4
Žiar nad Hronom
965 01
Miroslav Beniak
+421 905 369 269
|
| |||||||||||||||||||||||||||||||
Kontaktovať inzerenta e-mailom
Kontaktovať e-mailom môže iba overený užívateľ.
Overenie je zadarmo.
Vaše telefónne číslo *
Kontaktovať e-mailom môže iba overený užívateľ.
Overenie je zadarmo.
Vaše telefónne číslo *