Voľná izba pre jednu osobu (spolu v 4-izb. byte len 2 osoby
- [20.11. 2025]Zmazať/ Upraviť/ Topovať




















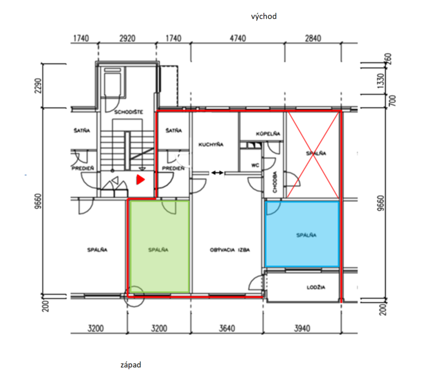
Ponúkam aj na dlhodobý prenájom slnečnú samostatnú izbu (zelená) v kompletne zariadenom štvorizbovom bauringu po rekonštrukcii v Martine na Ľadovni vo vyhľadávanom pokojnom prostredí. Byt sa nachádza na siedmom poschodí z ôsmych v zateplenom a nezaplesnenom dome s bezproblémovými susedmi a výťahom. Výhodná poloha, kompletná občianska vybavenosť, na skok do centra mesta, nemocnice aj do prírody.
Do izby je možné sa temer okamžite nasťahovať. Izba je nepriechodná, v izbe posteľ, skriňa, stôl, stolička, police,.. - viď fotografie. V druhej prenajatej izbe (modrá) je len 1 dospelá zarábajúca zodpovedná poriadkumilovná nekonfliktná priateľská osoba (rovnaké požiadavky máme aj na Vás), čiže v celom byte budete len 2 osoby, nikto iný.
K dispozícii máte aj prechodnú obývačku (20,9 m2) a príslušenstvo bytu - celkovo teda (bez štvrtej, nepoužívanej, neprístupnej, izby) cca 70 m2 plus zasklená lodžia a pivničné priestory. V teplom byte internet, TV, chladnička, kombinovaný sporák 60cm, plechy, hrnce, taniere, riady, práčka, okno v kúpeľni, umývadlo aj na WC a veľmi veľa úložného priestoru.
Zákaz fajčenia a držania zvierat v byte. Mesačný nájom 330€ vrátane energií. Dvojmesačný depozit + mesačný nájom sa platí pri podpise zmluvy. Neplatíte žiadne poplatky pre realitku!
viac foto na vegaby.webnode.sk/prenajom-bytu
Do izby je možné sa temer okamžite nasťahovať. Izba je nepriechodná, v izbe posteľ, skriňa, stôl, stolička, police,.. - viď fotografie. V druhej prenajatej izbe (modrá) je len 1 dospelá zarábajúca zodpovedná poriadkumilovná nekonfliktná priateľská osoba (rovnaké požiadavky máme aj na Vás), čiže v celom byte budete len 2 osoby, nikto iný.
K dispozícii máte aj prechodnú obývačku (20,9 m2) a príslušenstvo bytu - celkovo teda (bez štvrtej, nepoužívanej, neprístupnej, izby) cca 70 m2 plus zasklená lodžia a pivničné priestory. V teplom byte internet, TV, chladnička, kombinovaný sporák 60cm, plechy, hrnce, taniere, riady, práčka, okno v kúpeľni, umývadlo aj na WC a veľmi veľa úložného priestoru.
Zákaz fajčenia a držania zvierat v byte. Mesačný nájom 330€ vrátane energií. Dvojmesačný depozit + mesačný nájom sa platí pri podpise zmluvy. Neplatíte žiadne poplatky pre realitku!
viac foto na vegaby.webnode.sk/prenajom-bytu
|
| |||||||||||||||||||||||||||||||
Kontaktovať inzerenta e-mailom
Kontaktovať e-mailom môže iba overený užívateľ.
Overenie je zadarmo.
Vaše telefónne číslo *
Kontaktovať e-mailom môže iba overený užívateľ.
Overenie je zadarmo.
Vaše telefónne číslo *