CREDA | predaj pozemok v priemyselnom parku, Nitra
- [20.11. 2025]Zmazať/ Upraviť/ Topovať


















CREDA COMMERCIAL Vám exkluzívne ponúka na predaj priemyselný stavebný pozemok s projektom nachádzajúci sa v priemyselnom parku Nitra - Sever v zastavenej časti. Pozemok je možné využiť na výstavbu administratívnej budovy so skladmi, skladovú halu, výrobnú halu a iné.
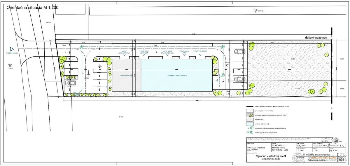
Pozn.: v galérií sa nachádza orientačná situácia na pozemku
Majiteľ ponúka možnosť výstavby na kľúč pre konkrétneho klienta
-POZEMOK-
Výmera: 2739 m2
Šírka: 22 m
Dĺžka: 134 m
Popis: rovinatý, obdĺžnik
-ÚPI-
ÚPI: priemyselná výroba
Koeficient zastavanosti: 0,6
Počet NP: 4 NP
-PROJEKT-
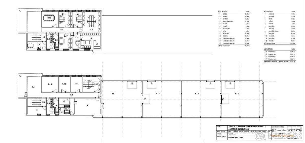
Na pozemok bol vypracovaný projekt na výstavbu dvojpodlažnej administratívnej budovy so skladmi - možnosť pokračovať v projekte na územné rozhodnutie
Príjazdová cesta: bol podaný návrh na vypracovanie dopravno-kapacitného posúdenia návrhu na vjazd na pozemok - určený pre nákladnú dopravu
IS: v dosahu - možnosť napojenia
-LOKALITA-
Pozemok má veľmi dobrú polohu keďže sa nachádza priamo v priemyselnom parku. Je v dostupnosti výrobného závodu Jaguar Land Rover. Napojenie na R1 vo vzdialenosti 1 km.
-CENA-
Cena je uvádzaná bez DPH
Pozn.: v galérií sa nachádza orientačná situácia na pozemku
Majiteľ ponúka možnosť výstavby na kľúč pre konkrétneho klienta
-POZEMOK-
Výmera: 2739 m2
Šírka: 22 m
Dĺžka: 134 m
Popis: rovinatý, obdĺžnik
-ÚPI-
ÚPI: priemyselná výroba
Koeficient zastavanosti: 0,6
Počet NP: 4 NP
-PROJEKT-
Na pozemok bol vypracovaný projekt na výstavbu dvojpodlažnej administratívnej budovy so skladmi - možnosť pokračovať v projekte na územné rozhodnutie
Príjazdová cesta: bol podaný návrh na vypracovanie dopravno-kapacitného posúdenia návrhu na vjazd na pozemok - určený pre nákladnú dopravu
IS: v dosahu - možnosť napojenia
-LOKALITA-
Pozemok má veľmi dobrú polohu keďže sa nachádza priamo v priemyselnom parku. Je v dostupnosti výrobného závodu Jaguar Land Rover. Napojenie na R1 vo vzdialenosti 1 km.
-CENA-
Cena je uvádzaná bez DPH
|
| |||||||||||||||||||||||||||||||
Kontaktovať inzerenta e-mailom
Kontaktovať e-mailom môže iba overený užívateľ.
Overenie je zadarmo.
Vaše telefónne číslo *
Kontaktovať e-mailom môže iba overený užívateľ.
Overenie je zadarmo.
Vaše telefónne číslo *
Podobné inzeráty
STAVEBNÉ pozemky v Párovských Hájoch - [21.11. 2025]B10 Vám ponúka na predaj Pozemok pre rod. domy v mestskej časti Nitra - Párovské Háje.Na pozemku v novovznikajúcej lokalite REZIDENCIA POD LESOM, vznikne 14 rodinných domov, pri čom dva pozemky sú na predaj. Jedná sa o pozemok č. 301 o rozlohe 800m2 a o pozemok 305 o rozlohe 813m2 (viď posledný obrá ...
134 990 €
Nitra
949 01
949 01
18 x
Označiť zlý inzerát Chybnú kategóriu Ohodnotiť užívateľa Zmazať/Upraviť/Topovať
CREDA | predaj pozemok na hlavnom ťahu, Nitra - Dolné Krškan - [20.11. 2025]CREDA COMMERCIAL Vám exkluzívne ponúka na predaj jedinečný komerčný pozemok na viacúčelové podnikateľské účely. Pozemok sa nachádza v Nitre časť Dolné Krškany na frekventovanej trase Nitra - Nové Zámky. Disponuje veľmi dobrou polohu a viditeľnosťou z oboch smerov.
Pozemok je v územnom pláne určený ...
320 000 €
Nitra
949 01
949 01
57 x
Označiť zlý inzerát Chybnú kategóriu Ohodnotiť užívateľa Zmazať/Upraviť/Topovať
Predaj pozemok-orná pôda, Nitra-Janíkovce(060-14-ERF) - [19.11. 2025]Typ: Poľnohospodárske a lesné pozemky
Ulica: Dlhá
Obec: Nitra
060-14-ERF
EXKLUZÍVNE! Ponúkame na predaj rovinatý investičný pozemok - ornú pôdu s rozlohou 8062m2 (cca 17mx490 m) vo výbornej lokalite v Nitre- Janíkovciach, len 5km od centra Nitry. Pozemok je pri hlavnej ceste, v katastri evidova ...
137 000 €
Nitra
949 01
949 01
71 x
Označiť zlý inzerát Chybnú kategóriu Ohodnotiť užívateľa Zmazať/Upraviť/Topovať
Predaj pozemok Nitra-Šúdol- 9,8á, IS v stavebnej realizácii - [19.11. 2025]Na predaj pozemok Nitra- Šúdol(Kynecká strana), ul. Pod Hájom, výmera pozemku 980 m2( plus podiel na prístupovej ceste), rozmery cca 28x35m. IS: Voda, kanalizácia, elektrina, pouličné osvetlenie-aktuálne stavebnej realizácii, voda a elektrina hotové 02/2026.
Môj tip: Pozemok v lokalite Nitra- Š ...
124 999 €
Nitra
949 01
949 01
41 x
Označiť zlý inzerát Chybnú kategóriu Ohodnotiť užívateľa Zmazať/Upraviť/Topovať
Stavebný pozemok 1000 m2, Nitra – Dolné Krškany - [19.11. 2025]Exkluzívne iba u nás! Veľký investičný potenciál! Realitná kancelária RE/MAX ponúka na predaj stavebný pozemok v meste Nitra, časť Dolné Krškany, ulica Pri dríku. Rozmery pozemku cca 17m x 60m a jeho umiestnenie v dotyku s prírodou ho predurčujú na výstavbu rezidenčného sídla, ale vyhovuje aj iným s ...
149 000 €
Nitra
949 01
949 01
62 x
Označiť zlý inzerát Chybnú kategóriu Ohodnotiť užívateľa Zmazať/Upraviť/Topovať
Predaj stavebný pozemok rozostavaný dom Nitra Zobor - [19.11. 2025]Realitná kancelária REMAX ponúka na predaj stavebný pozemok + rozostavaný dom v meste Nitra, časť Zobor – Višňová ulica.
Pozemok je o veľkosti 625 m2, so šírkou 16,35 m od Višňovej ulice a v zadnej časti sa zužuje na 10,58 m. Dĺžka pozemku je 48,74 m.
Všetky IS vrátane kanalizácie sú pred pozem ...
205 900 €
Nitra
949 01
949 01
59 x
Označiť zlý inzerát Chybnú kategóriu Ohodnotiť užívateľa Zmazať/Upraviť/Topovať
Pozemok Nitra - Zobor ID 408-14-MIG - [19.11. 2025]Typ: Pozemky - bývanie
Ulica: Azalková
Obec: Nitra
408-14-MIG
Na predaj pozemok v mestskej časti Nitra - Zobor. Nachádza sa v spodnej časti Azalkovej ulice. Rozloha pozemku je 875 m2 a má ideálne rozmery 26m x 33m. Pozemok je rovinatý,slnečný a vsadený do príjemného,prírodného prostredia s pek ...
146 000 €
Nitra
949 01
949 01
29 x
Označiť zlý inzerát Chybnú kategóriu Ohodnotiť užívateľa Zmazať/Upraviť/Topovať
STAVEBNÝ POZEMOK v tichej lokalite mesta Nitra - Kynek - TOP - [21.11. 2025]Typ: Pozemok pre rodinné domy
Ulica: Pod šípkami
Mestská časť: Kynek
Obec: Nitra
Ponúkame na predaj STAVEBNÝ POZEMOK v tichej lokalite mesta Nitra blízko prírody.
Predmetný stavebný pozemok sa nachádza v zastavanej oblasti mesta Nitra – mestská časť Kynek, na novovybudovanej ul ...
125 000 €
Nitra
949 01
949 01
141 x
Označiť zlý inzerát Chybnú kategóriu Ohodnotiť užívateľa Zmazať/Upraviť/Topovať
Slnečný a rovinatý pozemok v prírode, blízko riečky Malá Nit - [18.11. 2025]F005-14-ANVAa
Predávame slnečný a rovinatý pozemok v lone prírody, Nitra
Pozemok má rozlohu 1000m2.
Vhodný na výstavbu, okrem plynu siete pripravené.
Nachádza sa v príjemnej tichej lokalite Nitra časť Krškany pri riečke Malá Nitra.
Dostupná občianska vybavenosť.
V cene je kompletný právny a katast ...
148 000 €
Nitra
949 01
949 01
42 x
Označiť zlý inzerát Chybnú kategóriu Ohodnotiť užívateľa Zmazať/Upraviť/Topovať
Predám luxusný pozemok na Kyneku 918 m2 - [18.11. 2025]Predám stavebný pozemok s rozlohou 918 m2, plus podiel na ceste, na Kyneku na Hornokyneckej ulici, s prístupom z dvoch strán, s asfaltovou cestou a osvetlením, s možnosťou napojiť sa na mestkú kanalizáciu. Domy okolo pozemku sú bungalovy, situované nižšie oproti pozemku, čím majiteľ získa dokonalé ...
175 000 €
Nitra
949 01
949 01
113 x
Označiť zlý inzerát Chybnú kategóriu Ohodnotiť užívateľa Zmazať/Upraviť/Topovať