Byty na predaj novostavba Martin Tomčany vo výstavbe, nové c
- TOP - [21.11. 2025]Zmazať/ Upraviť/ Topovať




























Ponúkame Vám byt s balkónom na predaj novostavba Martin Tomčany, začatá prvá etapa na tvoriacom sa novom sídlisku Tomčany - viď vizualizácia video.
Výstavba 12 bytov na 2 poschodiach blízko novej nemocnice, byty budú špecifikované ako apartmány, 2 byty sú 1 izbové a 10 bytov je 2 izbové, prevedenie holobyt, kolaudácia najneskôr do 31.12.2026
Byty sa nachádzajú na 1 a 2 poschodí, obytná plocha bytu je podľa výberu bytu.
Informácie sú na stránke realitnej kancelárie Reality AK
link
realityak.sk/vystavba-bytov-na-predaj-novostavba-martin-tomcany-blizko-novej-nemocn-871704?noindex
po zadaní v NOVÉ PROJEKTY, alebo v sekcii DRUH/developerske projekty/výstavba bytov.
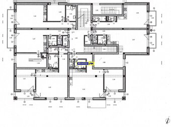
Prehľad voľných bytov je v tabuľke - kliknutím na príslušný byt sa Vám zobrazí detailná ponuka byt
Prevedenie bytu je holobyt a bude v byte urobené
- plastové okná
- elektrika
- voda a kanalizácia
- vnútorné omietky
- dvere vchodové do bytu
- urobený strop sadrokartónom,
- kúrenie bude ústredné radiátormi, alebo podlahové vodou v trubkách, ohrev kotol elektrika
- zateplenie je minerálnou vatou
Je potrebné dokončiť
- kuchynskú linku
- vnútorné dvere a zárubne
- podlahy
- dlažba a obklady
- sanita
- svetlá
Nehnuteľnosť:
Obytný dom je postavený z ytongu a je zateplený.
Cena nehnuteľnosti je uvedená vrátane DPH a zahŕňa kompletný realitný a právny servis vrátane poplatkov.
POPIS PROJEKTU
Byty sa nachádzajú na 1 a 2 poschodí, obytná plocha bytu je podľa výberu bytu.
Informácie sú na stránke realitnej kancelárie Reality AK po zadaní v NOVÉ PROJEKTY, alebo v sekcii DRUH/developerske projekty/výstavba bytov.
Prehľad voľných bytov je v tabuľke nižšie - kliknutím na príslušný byt sa Vám zobrazí detailná ponuka bytu.
realityak.sk/vystavba-bytov-na-predaj-novostavba-martin-tomcany-blizko-novej-nemocn-871704?noindex
Zastavaná plocha: 400m²
Obytná plocha: 665m²
Celková rozloha: 800m²
Úžitková plocha: 665m²
Vlastníctvo: osobné
Stav: pôvodný
Odvoz odpadu: áno - separovaný
Voda: verejný vodovod
El. napätie: 230V
Kanalizácia: áno
Kúpeľňa: áno
Vykurovanie: vlastné - elektrické
Balkón: áno
Pivnica: áno
Parkovanie: vnútorné
Postavené z: Ytong
Zateplený objekt: áno
Energetický certifikát: A
Okná: plastové
Pripravené na výstavbu: vydané stavebné povolenie
Výstavba 12 bytov na 2 poschodiach blízko novej nemocnice, byty budú špecifikované ako apartmány, 2 byty sú 1 izbové a 10 bytov je 2 izbové, prevedenie holobyt, kolaudácia najneskôr do 31.12.2026
Byty sa nachádzajú na 1 a 2 poschodí, obytná plocha bytu je podľa výberu bytu.
Informácie sú na stránke realitnej kancelárie Reality AK
link
realityak.sk/vystavba-bytov-na-predaj-novostavba-martin-tomcany-blizko-novej-nemocn-871704?noindex
po zadaní v NOVÉ PROJEKTY, alebo v sekcii DRUH/developerske projekty/výstavba bytov.
Prehľad voľných bytov je v tabuľke - kliknutím na príslušný byt sa Vám zobrazí detailná ponuka byt
Prevedenie bytu je holobyt a bude v byte urobené
- plastové okná
- elektrika
- voda a kanalizácia
- vnútorné omietky
- dvere vchodové do bytu
- urobený strop sadrokartónom,
- kúrenie bude ústredné radiátormi, alebo podlahové vodou v trubkách, ohrev kotol elektrika
- zateplenie je minerálnou vatou
Je potrebné dokončiť
- kuchynskú linku
- vnútorné dvere a zárubne
- podlahy
- dlažba a obklady
- sanita
- svetlá
Nehnuteľnosť:
Obytný dom je postavený z ytongu a je zateplený.
Cena nehnuteľnosti je uvedená vrátane DPH a zahŕňa kompletný realitný a právny servis vrátane poplatkov.
POPIS PROJEKTU
Byty sa nachádzajú na 1 a 2 poschodí, obytná plocha bytu je podľa výberu bytu.
Informácie sú na stránke realitnej kancelárie Reality AK po zadaní v NOVÉ PROJEKTY, alebo v sekcii DRUH/developerske projekty/výstavba bytov.
Prehľad voľných bytov je v tabuľke nižšie - kliknutím na príslušný byt sa Vám zobrazí detailná ponuka bytu.
realityak.sk/vystavba-bytov-na-predaj-novostavba-martin-tomcany-blizko-novej-nemocn-871704?noindex
Zastavaná plocha: 400m²
Obytná plocha: 665m²
Celková rozloha: 800m²
Úžitková plocha: 665m²
Vlastníctvo: osobné
Stav: pôvodný
Odvoz odpadu: áno - separovaný
Voda: verejný vodovod
El. napätie: 230V
Kanalizácia: áno
Kúpeľňa: áno
Vykurovanie: vlastné - elektrické
Balkón: áno
Pivnica: áno
Parkovanie: vnútorné
Postavené z: Ytong
Zateplený objekt: áno
Energetický certifikát: A
Okná: plastové
Pripravené na výstavbu: vydané stavebné povolenie
|
| |||||||||||||||||||||||||||||||
Kontaktovať inzerenta e-mailom
Kontaktovať e-mailom môže iba overený užívateľ.
Overenie je zadarmo.
Vaše telefónne číslo *
Kontaktovať e-mailom môže iba overený užívateľ.
Overenie je zadarmo.
Vaše telefónne číslo *







