2 izbový byt na predaj novostavba Martin Tomčany výstavba za
- TOP - [21.11. 2025]Zmazať/ Upraviť/ Topovať




























Ponúkam Vám 2izbový byt na predaj novostavba s balkónom Martin Tomčany, začatá prvá etapa na tvoriacom sa novom sídlisku Tomčany v blízkosti novej nemocnice - viď vizualizácia video.
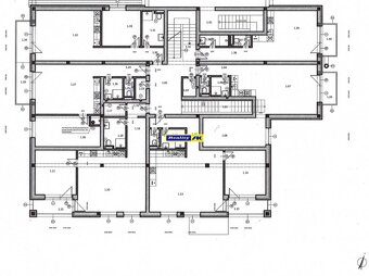
Výstavba 12 bytov na 2 poschodiach blízko novej nemocnice, byty budú špecifikované ako apartmány, 2 byty sú 1 izbové a 10 bytov je 2 izbové, prevedenie holobyt, kolaudácia najneskôr do 31.12.2026
Byty sa nachádzajú na 1 a 2 poschodí, obytná plocha bytu je podľa výberu bytu.
Informácie sú na stránke realitnej kancelárie Reality AK
realityak.sk/vystavba-bytov-na-predaj-novostavba-martin-tomcany-blizko-novej-nemocn-871704?noindex
po zadaní v NOVÉ PROJEKTY, alebo v sekcii DRUH/developerske projekty/výstavba bytov.
Prehľad voľných bytov je v tabuľke - kliknutím na príslušný byt sa Vám zobrazí detailná ponuka bytu.
Prevedenie bytu je holobyt a bude v byte urobené
- plastové okná
- elektrika
- voda a kanalizácia
- vnútorné omietky
- dvere vchodové do bytu
- urobený strop sadrokartónom,
- kúrenie bude ústredné radiátormi, alebo podlahové vodou v trubkách, ohrev kotol elektrika
- zateplenie je minerálnou vatou
Je potrebné dokončiť
- kuchynskú linku
- vnútorné dvere a zárubne
- podlahy
- dlažba a obklady
- sanita
- svetlá
Zastavaná plocha: 400m²
Obytná plocha: 90m²
Úžitková plocha: 90m²
Vlastníctvo: osobné
Stav: pôvodný
Odvoz odpadu: áno - separovaný
Kúpeľňa: áno
Vykurovanie: vlastné - elektrické
Balkón: áno
Pivnica: áno
Parkovanie: verejné
Postavené z: Ytong
Zateplený objekt: áno
Energetický certifikát: A
Okná: plastové
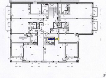
Výstavba 12 bytov na 2 poschodiach blízko novej nemocnice, byty budú špecifikované ako apartmány, 2 byty sú 1 izbové a 10 bytov je 2 izbové, prevedenie holobyt, kolaudácia najneskôr do 31.12.2026
Byty sa nachádzajú na 1 a 2 poschodí, obytná plocha bytu je podľa výberu bytu.
Informácie sú na stránke realitnej kancelárie Reality AK
realityak.sk/vystavba-bytov-na-predaj-novostavba-martin-tomcany-blizko-novej-nemocn-871704?noindex
po zadaní v NOVÉ PROJEKTY, alebo v sekcii DRUH/developerske projekty/výstavba bytov.
Prehľad voľných bytov je v tabuľke - kliknutím na príslušný byt sa Vám zobrazí detailná ponuka bytu.
Prevedenie bytu je holobyt a bude v byte urobené
- plastové okná
- elektrika
- voda a kanalizácia
- vnútorné omietky
- dvere vchodové do bytu
- urobený strop sadrokartónom,
- kúrenie bude ústredné radiátormi, alebo podlahové vodou v trubkách, ohrev kotol elektrika
- zateplenie je minerálnou vatou
Je potrebné dokončiť
- kuchynskú linku
- vnútorné dvere a zárubne
- podlahy
- dlažba a obklady
- sanita
- svetlá
Zastavaná plocha: 400m²
Obytná plocha: 90m²
Úžitková plocha: 90m²
Vlastníctvo: osobné
Stav: pôvodný
Odvoz odpadu: áno - separovaný
Kúpeľňa: áno
Vykurovanie: vlastné - elektrické
Balkón: áno
Pivnica: áno
Parkovanie: verejné
Postavené z: Ytong
Zateplený objekt: áno
Energetický certifikát: A
Okná: plastové
|
| |||||||||||||||||||||||||||||||
Kontaktovať inzerenta e-mailom
Kontaktovať e-mailom môže iba overený užívateľ.
Overenie je zadarmo.
Vaše telefónne číslo *
Kontaktovať e-mailom môže iba overený užívateľ.
Overenie je zadarmo.
Vaše telefónne číslo *







