Veľký 2 izbový byt s balkónom na Chrenovej
- [20.11. 2025]Zmazať/ Upraviť/ Topovať




























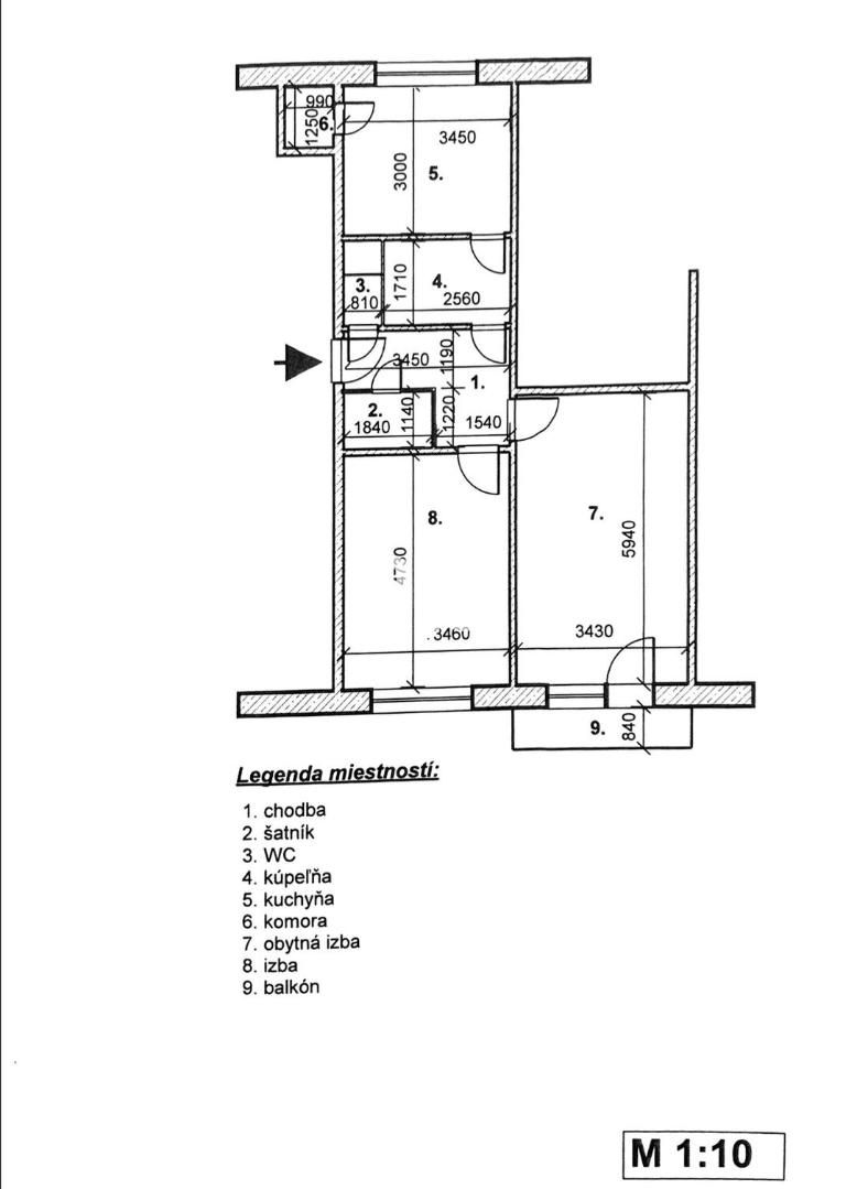
B10 Vám ponúka na predaj veľký 2 izbový byt s balkónom, vo vyhľadávanej lokalite, na sídlisku Chrenová. Tento príjemný byt zaujme najmä skvelou dispozíciou. Má dve veľké nepriechodné izby, z nich jedna je obývačka s východom na balkón. V spálni je dostatok priestoru, a nachádza sa v nej roldor. Na chodbe máme veľký šatník, o veľkosti cca 3 m2. Pri vstupe sa nachádza samostatná toaleta. Kúpeľňa je s vaňou.Kuchyňa je samostatná s jedálňou, a veľkou výhodou je špajza.Rozloha bytu je 64 m2 plus balkón. Byt sa nachádza na 6/7 poschodí bytového domu s výťahom. Byt prešiel rekonštrukciou ktorá sa týkala okien, podláh, dverí, kuchynskej linky, výmeny vstupných dverí za bezpečnostné, elektrických rozvodov v jadre a v kuchyni, stierky, vstavané nábytky. K bytu prislúcha pivnica o veľkosti 2,2 m2. Bytový dom je kompletne zrekonštruovaný s novým výťahom.Lokalita: Chrenová - Dlhá ulica - V pešej dostupnosti je kompletná občianska vybavenosť. Výhodou je bezproblémové parkovanie a takisto dobrý výjazd na diaľnicu. Názor makléra: Skvelá lokalita a nízke mesačne náklady robia z tohto bytu dobrú investičnú príležitosť. V prípade záujmu o obhliadku alebo bližšie informácie ma neváhajte kontaktovať na tel.č. 0949 833 900ID: 133932Cena: 167 000 € Aj váš dom, byt alebo pozemok predáme na počkanie #pocelomslovensku
|
| |||||||||||||||||||||||||||||||
Kontaktovať inzerenta e-mailom
Kontaktovať e-mailom môže iba overený užívateľ.
Overenie je zadarmo.
Vaše telefónne číslo *
Kontaktovať e-mailom môže iba overený užívateľ.
Overenie je zadarmo.
Vaše telefónne číslo *







