Novostavba rodinného domu. Rezidencia Hažín.
- [20.11. 2025]Zmazať/ Upraviť/ Topovať


























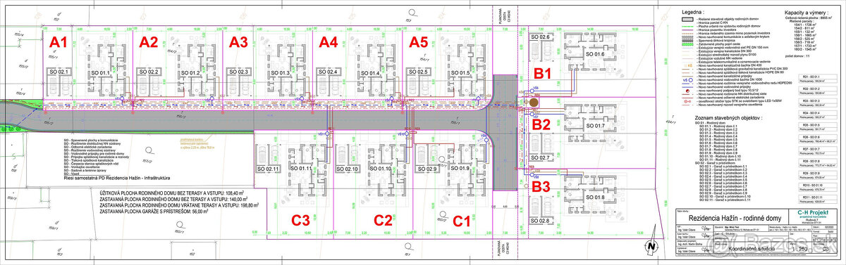
Realitná kancelária Leaders & Partners predstavuje developerský projekt REZIDENCIA HAŽÍN, pozostávajúci z 11 rodinných domov, ktoré budú situované v obci Hažín, mimo hlavnej cesty. Poloha ulice Vám zaručí dostatok súkromia a ticha. K domom povedie nová asfaltová cestná komunikácia a novovybudované inžinierske siete. To všetko už v cene projektu.
Dedinka Hažín je vzdialená 8 kilometrov od Michaloviec. Je to koncová obec s vynikajúcimi službami. V celej obci je zavedená kanalizácia, chodníky, multifunkčné ihrisko, posilňovňa, kultúrne centrum, športoviská, kostol, optický internet od dobrého dodávateľa. Rekreačná oblasť Zemplínska Šírava je, ako sa hovorí, hneď za humnami.
Rezidenciu tvoria rodinné domy typu BUNGALOV so zastavanou plochou 198,8m². Z tejto plochy prislúcha na rodinný dom 140m² a na terasu 58m². Úžitková plocha domu je 108,4m².
Domy sa predávajú v stave hrubá stavba. Podmienkou predaja je zakúpenie pozemku spolu s hrubou stavbou. Pozemok je pripojený na inžinierske siete: elektrinu, vodu, kanalizáciu a asfaltovú komunikáciu.
Hrubá stavba zahŕňa:
- murivo Ytong 300
- plastové okná - izolačné trojsklo, profil 92mm
- 2x posuvné terasové dvere, bezpečnostné vchodové dvere s madlom
- strešná krytina - betónová škridla Terran
Každý bungalov dispozične pozostáva z predsiene, špajze, samostatného WC, troch spálni, dvoch kúpeľní, obývacej izby s kuchyňou a priestrannej terasy. Z hlavnej spálne a z obývačky je východ priestrannými posuvnými dvermi na terasu. Dostatočne veľký pozemok umožňuje výstavbu garáže alebo prístrešku pre auto aj zriadenie oddychovej zóny.
Developér Vám ponúka dokončenie stavby do stavu: Holodom, Štandard, Na kľúč podľa Vašich požiadaviek. Pripraví Vám jednotlivé balíčky podľa výšky Vášho rozpočtu. Naša realitná kancelária Vám vie zabezpečiť financovanie vo všetkých bankových inštitúciách.
Cena: 169.000,-Eur
V cene je zahrnutá cena pozemku, hrubej stavby, provízia realitnej kancelárie a kompletný právny servis zabezpečovaný advokátskou kanceláriou.
Kontakt: 0948 192 211
Realitná kancelária Leaders & Partners je členom Národnej asociácie realitných kancelárií Slovenska a Realitnej únie SR, čo nás zaväzuje dodržiavať prísne štandardy a zásady v poskytovaní našich služieb. Kancelária je poistená pre prípad zodpovednosti za spôsobené škody, čo zabezpečuje maximálnu ochranu a bezpečnosť vašej investície.
https://inthecity.sk/registracia?kod=ITC244308
Dedinka Hažín je vzdialená 8 kilometrov od Michaloviec. Je to koncová obec s vynikajúcimi službami. V celej obci je zavedená kanalizácia, chodníky, multifunkčné ihrisko, posilňovňa, kultúrne centrum, športoviská, kostol, optický internet od dobrého dodávateľa. Rekreačná oblasť Zemplínska Šírava je, ako sa hovorí, hneď za humnami.
Rezidenciu tvoria rodinné domy typu BUNGALOV so zastavanou plochou 198,8m². Z tejto plochy prislúcha na rodinný dom 140m² a na terasu 58m². Úžitková plocha domu je 108,4m².
Domy sa predávajú v stave hrubá stavba. Podmienkou predaja je zakúpenie pozemku spolu s hrubou stavbou. Pozemok je pripojený na inžinierske siete: elektrinu, vodu, kanalizáciu a asfaltovú komunikáciu.
Hrubá stavba zahŕňa:
- murivo Ytong 300
- plastové okná - izolačné trojsklo, profil 92mm
- 2x posuvné terasové dvere, bezpečnostné vchodové dvere s madlom
- strešná krytina - betónová škridla Terran
Každý bungalov dispozične pozostáva z predsiene, špajze, samostatného WC, troch spálni, dvoch kúpeľní, obývacej izby s kuchyňou a priestrannej terasy. Z hlavnej spálne a z obývačky je východ priestrannými posuvnými dvermi na terasu. Dostatočne veľký pozemok umožňuje výstavbu garáže alebo prístrešku pre auto aj zriadenie oddychovej zóny.
Developér Vám ponúka dokončenie stavby do stavu: Holodom, Štandard, Na kľúč podľa Vašich požiadaviek. Pripraví Vám jednotlivé balíčky podľa výšky Vášho rozpočtu. Naša realitná kancelária Vám vie zabezpečiť financovanie vo všetkých bankových inštitúciách.
Cena: 169.000,-Eur
V cene je zahrnutá cena pozemku, hrubej stavby, provízia realitnej kancelárie a kompletný právny servis zabezpečovaný advokátskou kanceláriou.
Kontakt: 0948 192 211
Realitná kancelária Leaders & Partners je členom Národnej asociácie realitných kancelárií Slovenska a Realitnej únie SR, čo nás zaväzuje dodržiavať prísne štandardy a zásady v poskytovaní našich služieb. Kancelária je poistená pre prípad zodpovednosti za spôsobené škody, čo zabezpečuje maximálnu ochranu a bezpečnosť vašej investície.
https://inthecity.sk/registracia?kod=ITC244308
|
| |||||||||||||||||||||||||||||||
Kontaktovať inzerenta e-mailom
Kontaktovať e-mailom môže iba overený užívateľ.
Overenie je zadarmo.
Vaše telefónne číslo *
Kontaktovať e-mailom môže iba overený užívateľ.
Overenie je zadarmo.
Vaše telefónne číslo *





