ASSENZIO - PRENÁJOM - NEBYTOVÝ PRIESTOR / GASTRO- VYSOKÁ - S
- [19.11. 2025]Zmazať/ Upraviť/ Topovať




















ASSENZIO Property ponúka na prenájom nebytový priestor v lukratívnej časti Bratislavy na Vysokej ulici v Starom meste.
ZÁKLADNÁ CHARAKTERISTIKA:
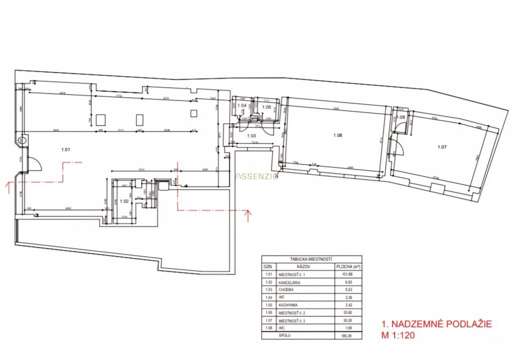
- celková výmera priestoru: 186 m²
- priestor je na prízemí
- klimatizácia
- zabezpečenie: kamerový systém, alarm
- parkovanie PAAS
DISPOZÍCIA:
- 3x väčšia miestnosť
- 1x menšia miestnosť
- 2x toaleta
- 1x kuchynka
LOKALITA
Priestor sa nachádza v frekventovanej časti Starého Mesta s vysokou koncentráciou rezidentov, turistov aj kancelárií. Táto lokalita ponúka výbornú dostupnosť, pešiu zónu a potenciál na stabilný zákaznícky tok počas celého týždňa.
CENA A PODMIENKY
Mesačný nájom: 2 100,-€ + energie 300,-€
Priestor je vhodný pre rôzne obchodné zámery, vrátane gastra.
DOSTUPNOSŤ:
Voľné ihneď!
ASSENZIO Property zabezpečí kompletný právny servis, zmluvnú dokumentáciu a podporu počas celého procesu odstúpenia. K cene bude pripočítaný jednorazový administratívny poplatok, vo výške jedného mesačného nájmu, ktorý zahŕňa všetky služby poskytované našou kanceláriou.
Dodatok k cene: , +energie
Zastavaná plocha: 186m²
Obytná plocha: 186m²
Úžitková plocha: 186m²
Stav: po rekonštrukcii
Odvoz odpadu: áno - separovaný
Voda: verejný vodovod
El. napätie: 230V
Plyn: áno
Kanalizácia: áno
Internet: wifi
Kúpeľňa: áno
Terasa: áno
Pivnica: nie
Garáž: nie
Výťah: nie
Parkovanie: verejné
Inžinierske siete: áno
Postavené z: tehla
Zariadenie: nezariadený
Krb: nie
Klimatizácia: áno
Káblová televízia: nie
Energetický certifikát: nie
Predzáhradka: nie
ZÁKLADNÁ CHARAKTERISTIKA:
- celková výmera priestoru: 186 m²
- priestor je na prízemí
- klimatizácia
- zabezpečenie: kamerový systém, alarm
- parkovanie PAAS
DISPOZÍCIA:
- 3x väčšia miestnosť
- 1x menšia miestnosť
- 2x toaleta
- 1x kuchynka
LOKALITA
Priestor sa nachádza v frekventovanej časti Starého Mesta s vysokou koncentráciou rezidentov, turistov aj kancelárií. Táto lokalita ponúka výbornú dostupnosť, pešiu zónu a potenciál na stabilný zákaznícky tok počas celého týždňa.
CENA A PODMIENKY
Mesačný nájom: 2 100,-€ + energie 300,-€
Priestor je vhodný pre rôzne obchodné zámery, vrátane gastra.
DOSTUPNOSŤ:
Voľné ihneď!
ASSENZIO Property zabezpečí kompletný právny servis, zmluvnú dokumentáciu a podporu počas celého procesu odstúpenia. K cene bude pripočítaný jednorazový administratívny poplatok, vo výške jedného mesačného nájmu, ktorý zahŕňa všetky služby poskytované našou kanceláriou.
Dodatok k cene: , +energie
Zastavaná plocha: 186m²
Obytná plocha: 186m²
Úžitková plocha: 186m²
Stav: po rekonštrukcii
Odvoz odpadu: áno - separovaný
Voda: verejný vodovod
El. napätie: 230V
Plyn: áno
Kanalizácia: áno
Internet: wifi
Kúpeľňa: áno
Terasa: áno
Pivnica: nie
Garáž: nie
Výťah: nie
Parkovanie: verejné
Inžinierske siete: áno
Postavené z: tehla
Zariadenie: nezariadený
Krb: nie
Klimatizácia: áno
Káblová televízia: nie
Energetický certifikát: nie
Predzáhradka: nie
|
| |||||||||||||||||||||||||||||||
Kontaktovať inzerenta e-mailom
Kontaktovať e-mailom môže iba overený užívateľ.
Overenie je zadarmo.
Vaše telefónne číslo *
Kontaktovať e-mailom môže iba overený užívateľ.
Overenie je zadarmo.
Vaše telefónne číslo *