Na prenájom obchodné priestory 460 m2 na prízemí, Laborecká
- [19.11. 2025]Zmazať/ Upraviť/ Topovať

























Exkluzívne ponúkame na prenájom obchodné priestory o výmere 460 m2 situované na prízemí polyfunkčnej budovy na Laboreckej 17 na najväčšom husto osídlenom Sídlisku III v Humennom, v ktorej má sídlo okrem iných prevádzok aj Okresný súd Humenné.
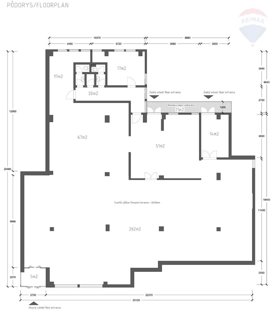
Priestory pozostávajú z otvorenej dispozície, konkrétne veľkej predajnej časti a zázemia zloženého z menších skladových priestorov, kancelárie a sociálnej časti. Sú čiastočne zrekonštruované, so samostatným meraním energií a je možné ich po dohode rôzne dispozične upravovať. Vykurovanie priestorov je zabezpečené prostredníctvom tepelného čerpadla.
Hlavný vstup do priestorov je z terasy od verejného bezplatného parkoviska pred budovou. Terasu s vyše 100 m2 bezprostredne pred hlavným vchodom do obchodných priestorov si je po dohode možné spolu s obchodnými priestormi rovnako prenajať.
Zásobovanie je možné dvoma samostatnými vchodmi s nákladnou rampou v zadnej časti priestorov zo súkromného oploteného a uzamykateľného dvora o výmere 666 m2, ktorý je rovnako predmetom nášho vlastníctva a je po dohode možné si ho k obchodným priestorom prenajať a užívať na parkovanie vozidiel alebo prípadné uskladnenie tovaru a pod..
Celá polyfunkčná budova postavená a v minulosti slúžila ako administratívne sídlo spoločnosti Jednota Humenné a na prenájom ponúkané obchodné priestory boli využívané ako predajňa potravín COOP Jednota. Priestory sa nachádzajú na najväčšom sídlisku s kompletnou občianskou vybavenosťou, zvýšeným pohybom osôb a výbornou viditeľnosťou ponúkaných priestorov. V budove je okrem iných prevádzok aj sídlo Okresného súdu Humenné a v bezprostrednej blízkosti sú zdravotné stredisko, lekáreň, reštaurácie, kaviareň, cukráreň, piváreň, potraviny, advokátska a realitná kancelária.
INFORMÁCIA O CENE PRENÁJMU V REALITNEJ KANCELÁRII.
V prípade záujmu o doplňujúce informácie alebo obhliadku priestorov nás prosím neváhajte kontaktovať.
Priestory pozostávajú z otvorenej dispozície, konkrétne veľkej predajnej časti a zázemia zloženého z menších skladových priestorov, kancelárie a sociálnej časti. Sú čiastočne zrekonštruované, so samostatným meraním energií a je možné ich po dohode rôzne dispozične upravovať. Vykurovanie priestorov je zabezpečené prostredníctvom tepelného čerpadla.
Hlavný vstup do priestorov je z terasy od verejného bezplatného parkoviska pred budovou. Terasu s vyše 100 m2 bezprostredne pred hlavným vchodom do obchodných priestorov si je po dohode možné spolu s obchodnými priestormi rovnako prenajať.
Zásobovanie je možné dvoma samostatnými vchodmi s nákladnou rampou v zadnej časti priestorov zo súkromného oploteného a uzamykateľného dvora o výmere 666 m2, ktorý je rovnako predmetom nášho vlastníctva a je po dohode možné si ho k obchodným priestorom prenajať a užívať na parkovanie vozidiel alebo prípadné uskladnenie tovaru a pod..
Celá polyfunkčná budova postavená a v minulosti slúžila ako administratívne sídlo spoločnosti Jednota Humenné a na prenájom ponúkané obchodné priestory boli využívané ako predajňa potravín COOP Jednota. Priestory sa nachádzajú na najväčšom sídlisku s kompletnou občianskou vybavenosťou, zvýšeným pohybom osôb a výbornou viditeľnosťou ponúkaných priestorov. V budove je okrem iných prevádzok aj sídlo Okresného súdu Humenné a v bezprostrednej blízkosti sú zdravotné stredisko, lekáreň, reštaurácie, kaviareň, cukráreň, piváreň, potraviny, advokátska a realitná kancelária.
INFORMÁCIA O CENE PRENÁJMU V REALITNEJ KANCELÁRII.
V prípade záujmu o doplňujúce informácie alebo obhliadku priestorov nás prosím neváhajte kontaktovať.
|
| |||||||||||||||||||||||||||||||
Kontaktovať inzerenta e-mailom
Kontaktovať e-mailom môže iba overený užívateľ.
Overenie je zadarmo.
Vaše telefónne číslo *
Kontaktovať e-mailom môže iba overený užívateľ.
Overenie je zadarmo.
Vaše telefónne číslo *




