REZERVOVANÉ Predaj rodinný dom Mojmírovce
- [19.11. 2025]Zmazať/ Upraviť/ Topovať










REZERVOVANÉ! Realitná kancelária RE/MAX ponúka na predaj starší rodinný dom v obci Mojmírovce, vzdialenej 15 km od mesta Nitra, na rozľahlom pozemku s výmerou 2.732 m2.
Postavený bol v 60. rokoch, zastavaná plocha domu je 210 m2, úžitková cca 170 m2. Dom je v pôvodnom stave, zdravý, bez známok vlhkosti a určený ku kompletnej rekonštrukcii.
Nehnuteľnosť je vhodná pre záujemcu s vyššími nárokmi na rozlohu pozemku, s jeho prípadným využitím na rôznorodé využitie (parcelovanie, chov či pestovanie, vlastné podnikanie).
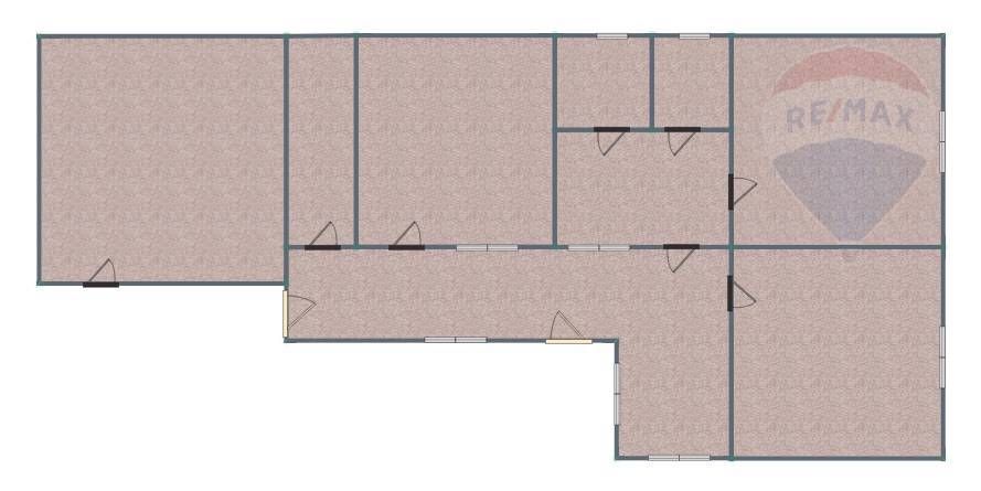
Dispozícia: vstupná priestranná chodba, dve predné izby orientované smerom do ulice, kuchyňa, kúpeľňa, špajza a jedna zadná izba.
V dome je zavedená obecná voda, elektrická energia - odpojená, plynové - gamatkové kúrenie - odpojené. Odpad bol v minulosti riešený žumpou.
Certifikát energetickej náročnosti budovy nie je k dispozícii.
V obci sa nachádza kompletná občianska vybavenosť, nakoľko je to veľká stredisková obec.
V prípade viacerých záujemcov bude nehnuteľnosť predaná najvýhodnejšej ponuke podľa preferencií majiteľa.
Uvedená cena je vrátane provízie realitnej kancelárie RE/MAX, kompletného právneho servisu, autorizovaných zmlúv a poplatkov spojených s prevodom vlastníckych práv.
Postavený bol v 60. rokoch, zastavaná plocha domu je 210 m2, úžitková cca 170 m2. Dom je v pôvodnom stave, zdravý, bez známok vlhkosti a určený ku kompletnej rekonštrukcii.
Nehnuteľnosť je vhodná pre záujemcu s vyššími nárokmi na rozlohu pozemku, s jeho prípadným využitím na rôznorodé využitie (parcelovanie, chov či pestovanie, vlastné podnikanie).
Dispozícia: vstupná priestranná chodba, dve predné izby orientované smerom do ulice, kuchyňa, kúpeľňa, špajza a jedna zadná izba.
V dome je zavedená obecná voda, elektrická energia - odpojená, plynové - gamatkové kúrenie - odpojené. Odpad bol v minulosti riešený žumpou.
Certifikát energetickej náročnosti budovy nie je k dispozícii.
V obci sa nachádza kompletná občianska vybavenosť, nakoľko je to veľká stredisková obec.
V prípade viacerých záujemcov bude nehnuteľnosť predaná najvýhodnejšej ponuke podľa preferencií majiteľa.
Uvedená cena je vrátane provízie realitnej kancelárie RE/MAX, kompletného právneho servisu, autorizovaných zmlúv a poplatkov spojených s prevodom vlastníckych práv.
|
| |||||||||||||||||||||||||||||||
Kontaktovať inzerenta e-mailom
Kontaktovať e-mailom môže iba overený užívateľ.
Overenie je zadarmo.
Vaše telefónne číslo *
Kontaktovať e-mailom môže iba overený užívateľ.
Overenie je zadarmo.
Vaše telefónne číslo *