Na predaj rodinný dom ul. Pri Suchom mlyne BA-Staré Mesto
- [19.11. 2025]Zmazať/ Upraviť/ Topovať





























EXKLUZÍVNE ponúkame na predaj rodinný dom so zastavanou plochou domu 121 m2 (úžitkovou plochou cca 241 m2 + 17m2 balkóny) + garáž 27 m2 na ul. Pri Suchom mlyne v obci Bratislava, mestská časť Staré Mesto, lokalita Patrónka na pozemku s celkovou výmerou 589 m2.
Dom je vhodný aj na podnikanie, aj na bývanie. Možnosť dokončiť ho podľa vlastných predstáv. Dom má schválený investičný zámer Hl.mestom SR Bratislava (prístavbu a nadstavbu).
3D virtuálna prehliadka:
https://my.matterport.com/show/?m=7LfE229moxG
Dom má 2 nadzemné podlažia + podkrovie:
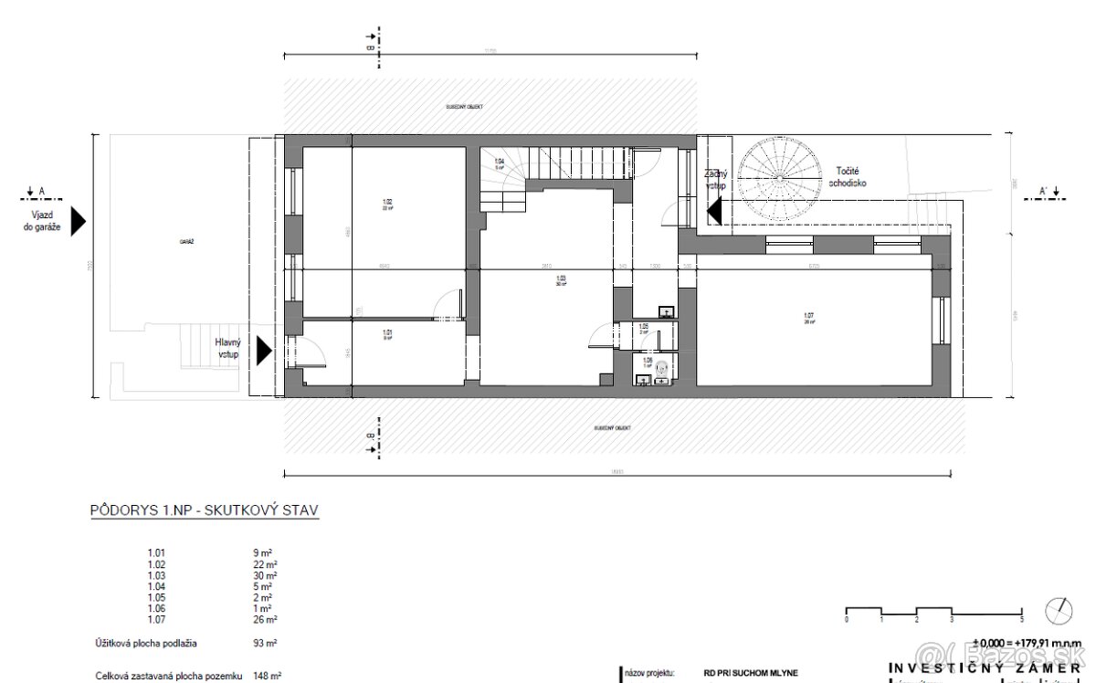
1.NP (prízemie): 2 miestnosti, predsieň, hala, kuchynský kút, wc, schodisko, priestor pod schodiskom, výstup na záhradu (možnosť vybudovania prízemnej terasy), garáž (nie je prepojená s domom).
2.NP (1.poschodie): 3 miestnosti, 2x wc, z každej strany je balkón (zo strany ulice má balkón 7 m2, zo strany záhrady má balkón 3 m2)
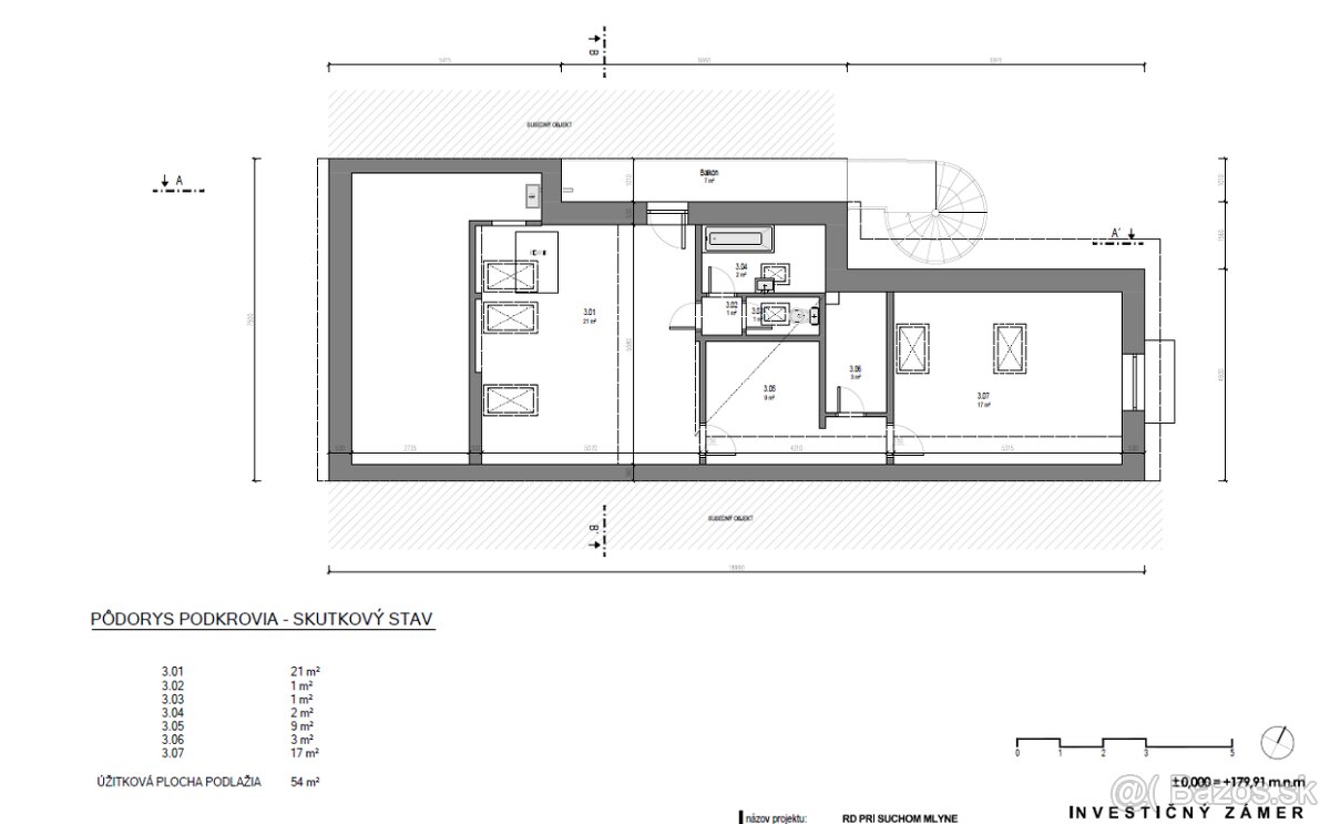
Podkrovie: 2 izby, chodba, šatník, kúpeľňa, wc, priestor pod strechou, výstup na terasu 7 m2. Podkrovie má 2 možné vstupy, a to z 2.NP sklopným rebríkom alebo zo záhrady vonkajším točitým oceľovým schodiskom.
Budova v minulosti slúžila na účely podnikania. V podkroví sa nachádzala bytová jednotka. Predpokladá sa, že pred touto úpravou objekt slúžil ako rodinný dom (6 izbový + príslušenstvo). Na liste vlastníctva je v súčasnosti stavba zapísaná ako dom, druh stavby 20 – iná budova.
Dom je napojený na všetky IS: elektrina, kanalizácia, voda, plyn.
Okolie: výborná poloha, výborná občianska vybavenosť, v blízkosti Železná studnička - lesnatá oblasť s ihriskami, športovými zariadeniami a turistickými i cyklistickými chodníkmi vedúcimi okolo niekoľkých jazier, Národný ústav detských chorôb (Detská pohotovosť Kramáre), Nemocnica s poliklinikou Ladislava Dérera Bratislava (Kramáre), školy, MŠ, detské ihriská, obchody, reštaurácie, potraviny, pošta, zastávky MHD, veľa zelene, rýchla dostupnosť do mesta a rýchle napojenie von z mesta cez obchvat.
Ponuka nehnuteľnosti obsahuje foto: aj skutkový stav, aj vizualizácie.
Bližšie informácie v RK.
Cena: 449.000 €, možnosť kúpy aj na hypoúver,
v cene sú zahrnuté služby RK:
- komplexný právny servis - vypracovanie všetkých typov zmlúv
- komplexný finančný servis – vybavenie hypotekárnych úverov a poistení nehnuteľností
- správny poplatok pri prevode vlastníckeho práva vo výške 100,-Eur na Okresnom úrade, katastrálnom odbore za kúpne zmluvy
Kontakt:
Tomáš Janek, 0903 73 85 99, tomas.janek9@gmail.com
Mgr. Anetta Vlčáková, RSc., 0905 83 33 44, anetta.vlcakova@gmail.com
Dom je vhodný aj na podnikanie, aj na bývanie. Možnosť dokončiť ho podľa vlastných predstáv. Dom má schválený investičný zámer Hl.mestom SR Bratislava (prístavbu a nadstavbu).
3D virtuálna prehliadka:
https://my.matterport.com/show/?m=7LfE229moxG
Dom má 2 nadzemné podlažia + podkrovie:
1.NP (prízemie): 2 miestnosti, predsieň, hala, kuchynský kút, wc, schodisko, priestor pod schodiskom, výstup na záhradu (možnosť vybudovania prízemnej terasy), garáž (nie je prepojená s domom).
2.NP (1.poschodie): 3 miestnosti, 2x wc, z každej strany je balkón (zo strany ulice má balkón 7 m2, zo strany záhrady má balkón 3 m2)
Podkrovie: 2 izby, chodba, šatník, kúpeľňa, wc, priestor pod strechou, výstup na terasu 7 m2. Podkrovie má 2 možné vstupy, a to z 2.NP sklopným rebríkom alebo zo záhrady vonkajším točitým oceľovým schodiskom.
Budova v minulosti slúžila na účely podnikania. V podkroví sa nachádzala bytová jednotka. Predpokladá sa, že pred touto úpravou objekt slúžil ako rodinný dom (6 izbový + príslušenstvo). Na liste vlastníctva je v súčasnosti stavba zapísaná ako dom, druh stavby 20 – iná budova.
Dom je napojený na všetky IS: elektrina, kanalizácia, voda, plyn.
Okolie: výborná poloha, výborná občianska vybavenosť, v blízkosti Železná studnička - lesnatá oblasť s ihriskami, športovými zariadeniami a turistickými i cyklistickými chodníkmi vedúcimi okolo niekoľkých jazier, Národný ústav detských chorôb (Detská pohotovosť Kramáre), Nemocnica s poliklinikou Ladislava Dérera Bratislava (Kramáre), školy, MŠ, detské ihriská, obchody, reštaurácie, potraviny, pošta, zastávky MHD, veľa zelene, rýchla dostupnosť do mesta a rýchle napojenie von z mesta cez obchvat.
Ponuka nehnuteľnosti obsahuje foto: aj skutkový stav, aj vizualizácie.
Bližšie informácie v RK.
Cena: 449.000 €, možnosť kúpy aj na hypoúver,
v cene sú zahrnuté služby RK:
- komplexný právny servis - vypracovanie všetkých typov zmlúv
- komplexný finančný servis – vybavenie hypotekárnych úverov a poistení nehnuteľností
- správny poplatok pri prevode vlastníckeho práva vo výške 100,-Eur na Okresnom úrade, katastrálnom odbore za kúpne zmluvy
Kontakt:
Tomáš Janek, 0903 73 85 99, tomas.janek9@gmail.com
Mgr. Anetta Vlčáková, RSc., 0905 83 33 44, anetta.vlcakova@gmail.com
|
| |||||||||||||||||||||||||||||||
Kontaktovať inzerenta e-mailom
Kontaktovať e-mailom môže iba overený užívateľ.
Overenie je zadarmo.
Vaše telefónne číslo *
Kontaktovať e-mailom môže iba overený užívateľ.
Overenie je zadarmo.
Vaše telefónne číslo *








