3-izbový BUNGALOV, Necpaly pod Chlmom, Splňte si svoj SEN o
- [19.11. 2025]Zmazať/ Upraviť/ Topovať








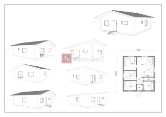
Ponúkame Vám výstavbu NOVOSTAVBY BUNGALOVU v obci Necpaly neďaleko Martina.
V cene domu o rozlohe cca 85 m2 je postavenie domu do stavu HOLODOMU - zateplený dom a fasádnou omietkou, priečky, elektrika, vykurovanie odporovým káblom, voda, omietky, okná a dvere....Následne už podľa predstáv nového vlastníka sa dorobia dokončovacie práce v interiéri - sanita, kuchyňa, podlahy - dlažba alebo plávajúcej podlahy - tieto práce si už spravíte na vlastné náklady (cca 8.000 €).
Výstavbu domu zabezpečuje firma s dlhoročnými skúsenosťami so stavbou domov - viac ako 200 za celú éru fungovania firmy.
Dom je možnosť si pred výstavbou ešte upraviť podľa vlastných predstáv a požiadaviek - typ strechy(sedlová, plochá, šikmá), rozmiestnenie izieb, otočiť ho na tie "správne" svetové strany, vybrať si odtieň fasády, okien.
V prípade záujmu o daný VYSNÍVANÝ dom s pozemkom - ZÁHRADA, VLASTNÉ PARKOVANIE aj pre 2 autá, detské ihrisko, v okolí veľa zelene no jeho cena bude cenou 3i bytu tak neváhajte a kontaktujte nás: 0911 488 199 alebo na mail: mriso@astonreal.sk
Dodatok k cene: cena vrátane pozemku a HOLODOMU
Zastavaná plocha: 85m²
Obytná plocha: 85m²
Celková rozloha: 400m²
Rozloha pozemku: 400m²
Úžitková plocha: 85m²
Vlastníctvo: osobné
Odvoz odpadu: áno
Voda: verejný vodovod
El. napätie: 230/400V
Kanalizácia: áno
Kúpeľňa: áno
Vykurovanie: vlastné - elektrické
Terasa: áno
Parkovanie: vlastné vyhradené
Inžinierske siete: áno
Postavené z: Zmiešané
Zateplený objekt: áno
Energetický certifikát: áno
Predzáhradka: áno
Bezbariérový prístup : áno
Okná: plastové
Orientácia: západná
Terén: rovina
Prístupová cesta: asfaltová cesta
V cene domu o rozlohe cca 85 m2 je postavenie domu do stavu HOLODOMU - zateplený dom a fasádnou omietkou, priečky, elektrika, vykurovanie odporovým káblom, voda, omietky, okná a dvere....Následne už podľa predstáv nového vlastníka sa dorobia dokončovacie práce v interiéri - sanita, kuchyňa, podlahy - dlažba alebo plávajúcej podlahy - tieto práce si už spravíte na vlastné náklady (cca 8.000 €).
Výstavbu domu zabezpečuje firma s dlhoročnými skúsenosťami so stavbou domov - viac ako 200 za celú éru fungovania firmy.
Dom je možnosť si pred výstavbou ešte upraviť podľa vlastných predstáv a požiadaviek - typ strechy(sedlová, plochá, šikmá), rozmiestnenie izieb, otočiť ho na tie "správne" svetové strany, vybrať si odtieň fasády, okien.
V prípade záujmu o daný VYSNÍVANÝ dom s pozemkom - ZÁHRADA, VLASTNÉ PARKOVANIE aj pre 2 autá, detské ihrisko, v okolí veľa zelene no jeho cena bude cenou 3i bytu tak neváhajte a kontaktujte nás: 0911 488 199 alebo na mail: mriso@astonreal.sk
Dodatok k cene: cena vrátane pozemku a HOLODOMU
Zastavaná plocha: 85m²
Obytná plocha: 85m²
Celková rozloha: 400m²
Rozloha pozemku: 400m²
Úžitková plocha: 85m²
Vlastníctvo: osobné
Odvoz odpadu: áno
Voda: verejný vodovod
El. napätie: 230/400V
Kanalizácia: áno
Kúpeľňa: áno
Vykurovanie: vlastné - elektrické
Terasa: áno
Parkovanie: vlastné vyhradené
Inžinierske siete: áno
Postavené z: Zmiešané
Zateplený objekt: áno
Energetický certifikát: áno
Predzáhradka: áno
Bezbariérový prístup : áno
Okná: plastové
Orientácia: západná
Terén: rovina
Prístupová cesta: asfaltová cesta
|
| |||||||||||||||||||||||||||||||
Kontaktovať inzerenta e-mailom
Kontaktovať e-mailom môže iba overený užívateľ.
Overenie je zadarmo.
Vaše telefónne číslo *
Kontaktovať e-mailom môže iba overený užívateľ.
Overenie je zadarmo.
Vaše telefónne číslo *