BH REAL ESTATE ponúka na prenájom areál v SENCI
- [19.11. 2025]Zmazať/ Upraviť/ Topovať






























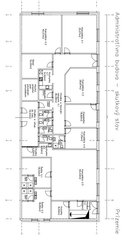
BH REAL ESTATE ponúka na prenájom výrobno-skladovací areál v Senci . Areál sa nachádza na Poľnej ulici v Senci. Budova sa skladá z troch celkov a to Administratívna budova, Skladová hala a Výrobná hala. Administratívna budova je dvojpodlažná, nepodpivničená, založená na železobetónových základových pásoch. Na pozemku sa nachádzajú komplet inžinierske siete. Areál ma vlastnú trafostanicu.
Dispozícia:
HALA - 976m2
Administratívna časť:
- 1NP - 385m2
Pozemok :
- 5927m2
Vybavenie:
- vykurovaná hala
- výška haly je v najnižšom bode cca 7,8 m, v najvyššom bode cca 8,5 m.
- kamerový systém
- parkovanie priamo pred budovou cca 40 miest
- hala má dva vstupy
- rozmer brán:
Bočná: 3,21x3,7 m., t.z. 3,7m. je výška
Zadná: 4,5x4,35 m, t.z. 4,35m. je výška.
Cenová ponuka:
5,25eur bez DPH/m2 hala
8,50eur bez DPH/m2 administrativa
V prípade záujmu ma neváhajte kontaktovať telefonicky na 0911019059 alebo e-mailom na hostovecka@bhreal.sk
Dispozícia:
HALA - 976m2
Administratívna časť:
- 1NP - 385m2
Pozemok :
- 5927m2
Vybavenie:
- vykurovaná hala
- výška haly je v najnižšom bode cca 7,8 m, v najvyššom bode cca 8,5 m.
- kamerový systém
- parkovanie priamo pred budovou cca 40 miest
- hala má dva vstupy
- rozmer brán:
Bočná: 3,21x3,7 m., t.z. 3,7m. je výška
Zadná: 4,5x4,35 m, t.z. 4,35m. je výška.
Cenová ponuka:
5,25eur bez DPH/m2 hala
8,50eur bez DPH/m2 administrativa
V prípade záujmu ma neváhajte kontaktovať telefonicky na 0911019059 alebo e-mailom na hostovecka@bhreal.sk
|
| |||||||||||||||||||||||||||||||
Kontaktovať inzerenta e-mailom
Kontaktovať e-mailom môže iba overený užívateľ.
Overenie je zadarmo.
Vaše telefónne číslo *
Kontaktovať e-mailom môže iba overený užívateľ.
Overenie je zadarmo.
Vaše telefónne číslo *









