Novostavba RD Žihárec - Šaľa
- [18.11. 2025]Zmazať/ Upraviť/ Topovať

























ARCHEUS realitná kancelária
Ponúkame na predaj krásnu novostavbu 4-izbového rodinného domu nachádzajúceho sa na pozemku o veľkosti 467 m2 v obci Žihárec - Šaľa.
3D obhliadka: https://2home-sk-s-r-o.vr-360-tour.com/e/UC0Bml7qky0/e?initvars.autorotate.enabled=true
Dom sa predáva v štádiu holodomu alebo s možnosťou dokončenia domu do štandardu.
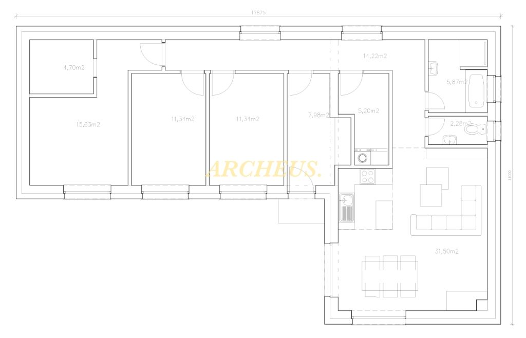
Dispozičné riešenie domu je nasledovné:
• vstupná terasa
• predsieň
• toaleta
• technická miestnosť
• obývacia izba spojená s jedálňou a kuchyňou
• izba
• izba
• kúpeľňa
• izba
• terasa
Na stavbe rodinného domu boli použité tieto stavebné materiály:
• múry tehla 300 mmm Termobrik
• strecha - Fatrafol so spádovým polystyrénom a izolácia 400 mm
• fasádna farba je biela omietka
• okná plastové sú 3 sklo a farba antracitovosivej
• vchodové dvere hliníkové a terasové dvere francúzske hliníkové
• predpríprava na vonkajšie žalúzie
• predpríprava na kamerový systém, alarm a elektrický vrátnik
Interiér domu pozostáva z:
• podláh s podlahovým poterom, ktorý je pripravený na pokladík dlažby a plávajúcej podlahy
• v dome je podlahové elektrické teplovodné kúrenie
• taktiež sú v dome kompletné rozvody elektriny, vypínače a elektrické zásuvky
• je tu aj príprava na pripojenie ďalších dátových sietí - internet
• na stenach je biela omietka a základ 2x malovky
• v dome sa nachádza aj zásobník na teplú vodu - kotol
• taktiež sú tu kompletné sadrokartóny
• a príprava na krb
Exteriér domu je aktuálne v štádiu:
• pozemok, ktorý bude vyrovnaný so zemou zo základov
• betónová terasa
• a oplotenie pozemku
• a tiež vstupná brana na súkromnú príjazdovú cestu.
Ponúkame na predaj krásnu novostavbu 4-izbového rodinného domu nachádzajúceho sa na pozemku o veľkosti 467 m2 v obci Žihárec - Šaľa.
3D obhliadka: https://2home-sk-s-r-o.vr-360-tour.com/e/UC0Bml7qky0/e?initvars.autorotate.enabled=true
Dom sa predáva v štádiu holodomu alebo s možnosťou dokončenia domu do štandardu.
Dispozičné riešenie domu je nasledovné:
• vstupná terasa
• predsieň
• toaleta
• technická miestnosť
• obývacia izba spojená s jedálňou a kuchyňou
• izba
• izba
• kúpeľňa
• izba
• terasa
Na stavbe rodinného domu boli použité tieto stavebné materiály:
• múry tehla 300 mmm Termobrik
• strecha - Fatrafol so spádovým polystyrénom a izolácia 400 mm
• fasádna farba je biela omietka
• okná plastové sú 3 sklo a farba antracitovosivej
• vchodové dvere hliníkové a terasové dvere francúzske hliníkové
• predpríprava na vonkajšie žalúzie
• predpríprava na kamerový systém, alarm a elektrický vrátnik
Interiér domu pozostáva z:
• podláh s podlahovým poterom, ktorý je pripravený na pokladík dlažby a plávajúcej podlahy
• v dome je podlahové elektrické teplovodné kúrenie
• taktiež sú v dome kompletné rozvody elektriny, vypínače a elektrické zásuvky
• je tu aj príprava na pripojenie ďalších dátových sietí - internet
• na stenach je biela omietka a základ 2x malovky
• v dome sa nachádza aj zásobník na teplú vodu - kotol
• taktiež sú tu kompletné sadrokartóny
• a príprava na krb
Exteriér domu je aktuálne v štádiu:
• pozemok, ktorý bude vyrovnaný so zemou zo základov
• betónová terasa
• a oplotenie pozemku
• a tiež vstupná brana na súkromnú príjazdovú cestu.
|
| |||||||||||||||||||||||||||||||
Kontaktovať inzerenta e-mailom
Kontaktovať e-mailom môže iba overený užívateľ.
Overenie je zadarmo.
Vaše telefónne číslo *
Kontaktovať e-mailom môže iba overený užívateľ.
Overenie je zadarmo.
Vaše telefónne číslo *




