Ponúkame na predaj pozemok so stav. povolením domu / chaty.
- [18.11. 2025]Zmazať/ Upraviť/ Topovať






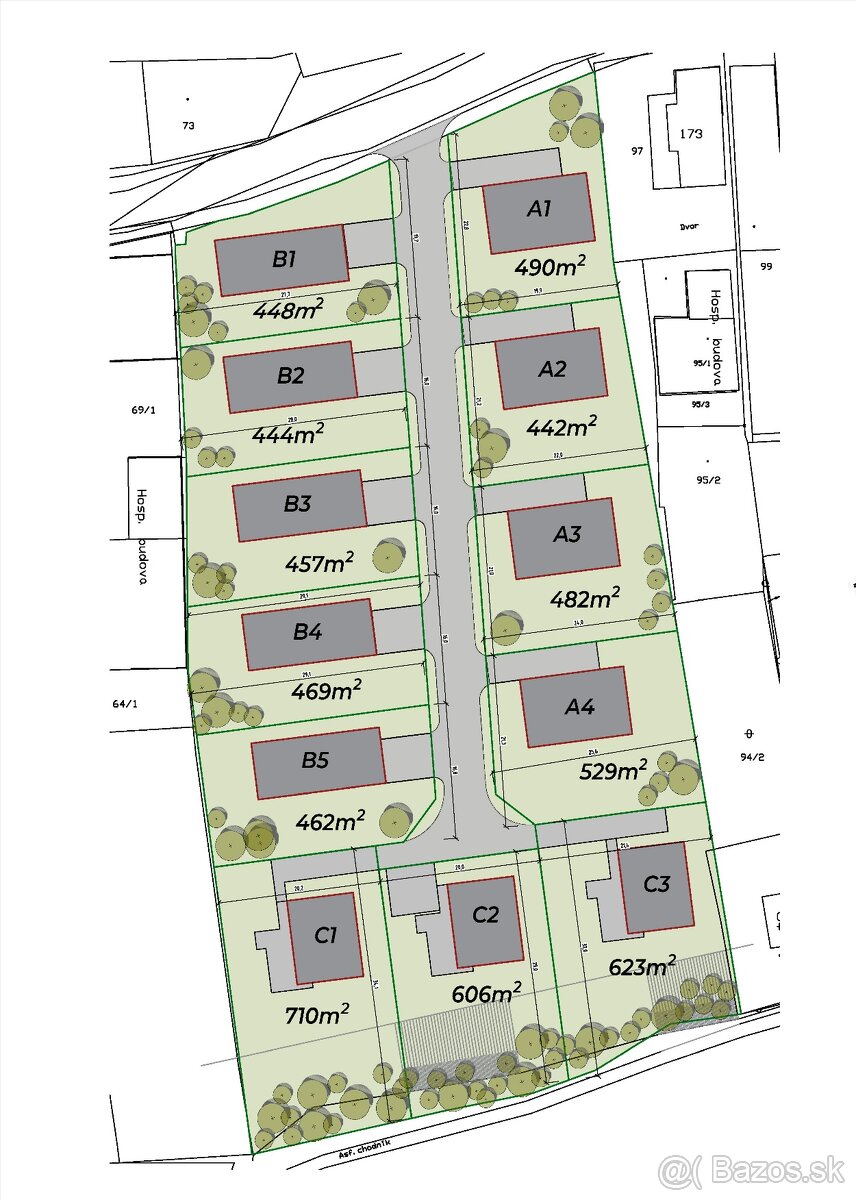
Ponúkame Vám na predaj pozemok v Západných Tatrách v obci Habovka pri Zuberci v novovytvorenej lokalite s 12 parcelami chát a rodinných domov.
Pekný, slnečný a rovinatý pozemok A1 ( viď foto ) o šírke 19m a dĺžke 25m je vrátane:
- inžinierskych sietí – voda, kanál, elektrina, vrátane vodovodnej a kanalizačnej šachty, elektrickej rozvodovej skrine a rozvodovej skrine optiky na internet,
- podiel na súkromnej spevnenej prístupovej štrkovej ceste = + 60 m2,
- komplet platné stavebné povolenie s inžinierskym projektom pre daný typ chaty / rodinného domu s možnosťou okamžite stavať,
- po dohode, možnosť výstavby,
V prípade záujmu ma neváhajte kontaktovať a dohodneme si obhliadku.
Pekný, slnečný a rovinatý pozemok A1 ( viď foto ) o šírke 19m a dĺžke 25m je vrátane:
- inžinierskych sietí – voda, kanál, elektrina, vrátane vodovodnej a kanalizačnej šachty, elektrickej rozvodovej skrine a rozvodovej skrine optiky na internet,
- podiel na súkromnej spevnenej prístupovej štrkovej ceste = + 60 m2,
- komplet platné stavebné povolenie s inžinierskym projektom pre daný typ chaty / rodinného domu s možnosťou okamžite stavať,
- po dohode, možnosť výstavby,
V prípade záujmu ma neváhajte kontaktovať a dohodneme si obhliadku.
|
| |||||||||||||||||||||||||||||||
Kontaktovať inzerenta e-mailom
Kontaktovať e-mailom môže iba overený užívateľ.
Overenie je zadarmo.
Vaše telefónne číslo *
Kontaktovať e-mailom môže iba overený užívateľ.
Overenie je zadarmo.
Vaše telefónne číslo *