Investičné stavebné pozemky Budča
- [18.11. 2025]Zmazať/ Upraviť/ Topovať












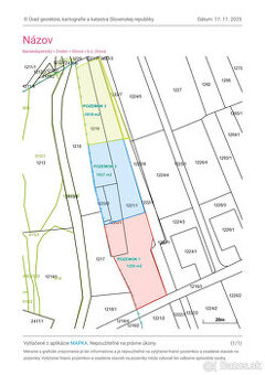
Na predaj stavebné pozemky v obci Budča, 10 min cesty autom od Zvolena. Rovinaté pozemky sa nachádzajú v časti „U troch hrušiek“, kde je podľa územného plánu obce naplánovaná nová výstavba rodinných domov. Na pozemkoch sa v nenachádzajú žiadne inžinierske siete.
Cena 53,- € / m2 + dohoda možná
• Prvý pozemok má rozlohu 1121 m2 – určený na výstavbu rodinného domu
• Druhý pozemok má rozlohu 1068 m2 – určený na výstavbu rodinného domu
• Tretí pozemok má rozlohu 929 m2 – určený na plánovaný športový areál
Prvý a druhý pozemok sa nachádzajú vedľa seba. Pri kúpe oboch pozemkov je možnosť získať jeden veľký ucelený pozemok, prípadne postaviť dva rodinného domy, bez predelenia plotom.
Dohoda na cene možná
Cena 53,- € / m2 + dohoda možná
• Prvý pozemok má rozlohu 1121 m2 – určený na výstavbu rodinného domu
• Druhý pozemok má rozlohu 1068 m2 – určený na výstavbu rodinného domu
• Tretí pozemok má rozlohu 929 m2 – určený na plánovaný športový areál
Prvý a druhý pozemok sa nachádzajú vedľa seba. Pri kúpe oboch pozemkov je možnosť získať jeden veľký ucelený pozemok, prípadne postaviť dva rodinného domy, bez predelenia plotom.
Dohoda na cene možná
|
| |||||||||||||||||||||||||||||||
Kontaktovať inzerenta e-mailom
Kontaktovať e-mailom môže iba overený užívateľ.
Overenie je zadarmo.
Vaše telefónne číslo *
Kontaktovať e-mailom môže iba overený užívateľ.
Overenie je zadarmo.
Vaše telefónne číslo *
Podobné inzeráty
Slnečné, rovinaté stavebné pozemky s dostupnými IS v Očovej - [17.11. 2025]CENA: 54,00 €/m2
Predám stavebné pozemky o výmerách 1255 m2, 1037 m2 a 1019 m2 v Očovej. Pozemky sa nachádzajú v západnej časti obce na konci slepej ulice, sú rovinaté a slnečné. Tichá a pokojná lokalita. Ich veľkosť zaručuje dostatočné súkromie, pomer šírka a dĺžka umožnia naprojektovať dom podľ ...
54 €
Zvolen
960 01
960 01
34 x
Označiť zlý inzerát Chybnú kategóriu Ohodnotiť užívateľa Zmazať/Upraviť/Topovať
Na predaj väčší pozemok v peknej prírode - [8.11. 2025]
Na predaj väčší pozemok v peknej prírode - [19.10. 2025]
Zmazať/ Upraviť/ Topovať
Na predaj väčší pozemok v peknej prírode - 1
Na predaj väčší pozemok v peknej prírode - 2
Na predaj väčší pozemok v peknej prírode - 3
Na predaj väčší pozemok v extraviláne 2km od obce Dobrá Niva .Pozemok posk ...
33 €
Zvolen
960 01
960 01
82 x
Označiť zlý inzerát Chybnú kategóriu Ohodnotiť užívateľa Zmazať/Upraviť/Topovať
Rozsiahly priemyselný areál 10703m2. - [2.11. 2025]Bosen Lučenec vám ponúka na predaj veľký priemyselný areál vo vyhľadávanej priemyselnej zóne v meste Fiľakovo. Areál sa nachádza v strategickej lokalite s výbornou dostupnosťou pre nákladnú dopravu aj zamestnancov. Celková rozloha pozemku je 10 703 m², pričom súčasťou areálu sú výrobné a skladové ha ...
50 €
Zvolen
960 01
960 01
584 x
Označiť zlý inzerát Chybnú kategóriu Ohodnotiť užívateľa Zmazať/Upraviť/Topovať
Pozemok Zvolen Rákoš - [23.10. 2025]Predám pozemok v intraviláne pri hlavnej ceste smer Sliač, 645 m2, siete dostupné, za úradnú cenu. Možná výmena za iný stavebný pozemok, alebo prenájom na prevádzkovanie reklamných zariadení
70 €
Zvolen
960 01
960 01
593 x
Označiť zlý inzerát Chybnú kategóriu Ohodnotiť užívateľa Zmazať/Upraviť/Topovať
STAVEBNÉ POZEMKY 13490 m2, ZVOLEN - MÔŤOVÁ, pri ICE ARÉNE - TOP - [24.10. 2025]Ponúkame na predaj lukratívne stavebné pozemky vo výmere 13490 m2 v priemyselnej zóne Zvolena, pri ICE Aréne Zvolen, v bezprostrednej blízkosti Lučeneckej cesty (hlavného ťahu Košice - Bratislava).
Kvôli ochrannému pásmu je PRIAMO STAVEBNE VYUŽITEĽNÝCH 3500 m2, zvyšné časti pozemkov sú využiteľné ...
40 €
Zvolen
960 01
960 01
692 x
Označiť zlý inzerát Chybnú kategóriu Ohodnotiť užívateľa Zmazať/Upraviť/Topovať
ROVINATÉ STAVEBNÉ POZEMKY 57341 m2, ZVOLEN - časť ŠARINY - TOP - [24.10. 2025]Ponúkame na predaj rovinaté stavebné pozemky 57341 m2 - parcely registra "E".
Pozemky sa nachádzajú na severnej hranici mesta Zvolen, v časti Šariny, cca 100 m od hlavného ťahu cesty Zvolen - Banská Bystrica.
Pozemky sú mimoriadne vhodné na veľký investičný zámer.
Pozemky sú majetkovo vyspo ...
50 €
Zvolen
960 01
960 01
675 x
Označiť zlý inzerát Chybnú kategóriu Ohodnotiť užívateľa Zmazať/Upraviť/Topovať