Na predaj moderný rodinný dom, Fintice, okres Prešov
- [18.11. 2025]Zmazať/ Upraviť/ Topovať





























Bc. Alena Kimlerová v spolupráci s realitnou kanceláriou ELI REAL Vám ponúka na predaj moderný rodinný dom v obci Fintice vzdialenej len pár minút od Prešova.
Základné informácie:
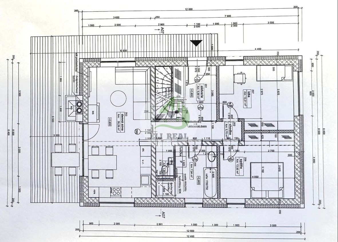
Stav: uzavretá hrubá stavba s vnútornými priečkami
Zastavaná plocha 96 m2
Podlahová plocha 132,1 m2
Počet podlaží 2
Pozemok 261 m2
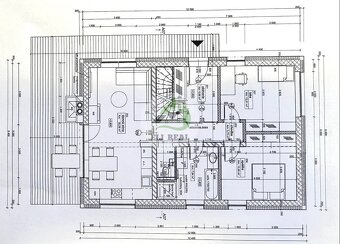
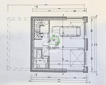
Dispozícia: kuchyňa spojená s obývačkou, 2 samostatné spálne, kúpeľňa, toaleta, technická miestnosť, garáž
Inžinierske siete:
- obecná voda
- obecná kanalizácia
- elektrina
- plyn nie je
Technické parametre:
- Materiál: tehla 30 cm
- Zateplenie: polystyrén 20 cm
- Vykurovanie: podlahové (príprava na kotol alebo tepelné čerpadlo)
- Predpríprava: rekuperácia a klimatizácia
Aktuálne je dokončená vonkajšia fasáda, vnútorná elektroinštalácia + strop zatepleny striekanou nehorľavou penou.
Možnosť dokončenia stavby podľa Vašich predstáv + kolaudácia je samozrejmosť.
Dom je ideálny pre tých, ktorí hľadajú moderné bývanie s možnosťou dokončenia podľa vlastných predstáv.
Tichá lokalita, výborná dostupnosť a kvalitná stavba sú veľkou výhodou tejto nehnuteľnosti.
V cene nehnuteľnosti je zahrnutý kompletný právny servis, vyhotovenie kúpnej zmluvy advokátom, poplatky spojené s prevodom vlastníckych práv na katastri a odmena pre sprostredkovateľa.
V prípade ak Vás naša ponuka zaujala, neváhajte nás kedykoľvek kontaktovať, veľmi radi Vám nehnuteľnosť ukážeme aj na osobnej obhliadke.
Ak plánujete kúpu nehnuteľnosti financovať prostriedkami z predaja Vašej nehnuteľnosti, veľmi radi Vám pomôžeme aj s týmto procesom.
Ak plánujete kúpu nehnuteľnosti financovať prostredníctvom hypotekárneho úveru, naši finanční špecialisti Vás ešte pred podpisom rezervačnej dohody dokážu vopred preveriť, či máte na úver nárok. U nás sa hrá na istotu. S nami rezervujete len to, na čo dosiahnete.
Nečakajte a kontaktujte nás ešte dnes !
Takéto nehnuteľnosti neostávajú na trhu dlho.
Bc. Alena KIMLEROVÁ
0911 034 189
kimlerova@elireal.sk
Základné informácie:
Stav: uzavretá hrubá stavba s vnútornými priečkami
Zastavaná plocha 96 m2
Podlahová plocha 132,1 m2
Počet podlaží 2
Pozemok 261 m2
Dispozícia: kuchyňa spojená s obývačkou, 2 samostatné spálne, kúpeľňa, toaleta, technická miestnosť, garáž
Inžinierske siete:
- obecná voda
- obecná kanalizácia
- elektrina
- plyn nie je
Technické parametre:
- Materiál: tehla 30 cm
- Zateplenie: polystyrén 20 cm
- Vykurovanie: podlahové (príprava na kotol alebo tepelné čerpadlo)
- Predpríprava: rekuperácia a klimatizácia
Aktuálne je dokončená vonkajšia fasáda, vnútorná elektroinštalácia + strop zatepleny striekanou nehorľavou penou.
Možnosť dokončenia stavby podľa Vašich predstáv + kolaudácia je samozrejmosť.
Dom je ideálny pre tých, ktorí hľadajú moderné bývanie s možnosťou dokončenia podľa vlastných predstáv.
Tichá lokalita, výborná dostupnosť a kvalitná stavba sú veľkou výhodou tejto nehnuteľnosti.
V cene nehnuteľnosti je zahrnutý kompletný právny servis, vyhotovenie kúpnej zmluvy advokátom, poplatky spojené s prevodom vlastníckych práv na katastri a odmena pre sprostredkovateľa.
V prípade ak Vás naša ponuka zaujala, neváhajte nás kedykoľvek kontaktovať, veľmi radi Vám nehnuteľnosť ukážeme aj na osobnej obhliadke.
Ak plánujete kúpu nehnuteľnosti financovať prostriedkami z predaja Vašej nehnuteľnosti, veľmi radi Vám pomôžeme aj s týmto procesom.
Ak plánujete kúpu nehnuteľnosti financovať prostredníctvom hypotekárneho úveru, naši finanční špecialisti Vás ešte pred podpisom rezervačnej dohody dokážu vopred preveriť, či máte na úver nárok. U nás sa hrá na istotu. S nami rezervujete len to, na čo dosiahnete.
Nečakajte a kontaktujte nás ešte dnes !
Takéto nehnuteľnosti neostávajú na trhu dlho.
Bc. Alena KIMLEROVÁ
0911 034 189
kimlerova@elireal.sk
|
| |||||||||||||||||||||||||||||||
Kontaktovať inzerenta e-mailom
Kontaktovať e-mailom môže iba overený užívateľ.
Overenie je zadarmo.
Vaše telefónne číslo *
Kontaktovať e-mailom môže iba overený užívateľ.
Overenie je zadarmo.
Vaše telefónne číslo *








