NOVOSTAVBA S VEĽKORYSÝM POZEMKOM PRI KOŠICIACH, 950 m², VAJK
- [18.11. 2025]Zmazať/ Upraviť/ Topovať


























Realitná kancelária REALIFY ponúka na predaj 4 izbový bungalov v štádiu holodom v obci Vajkovce na pozemku s výmerou 950 m², ktorý sa nachádza na novej súkromnej ulici, kde sú postavené štyri domy. Ak hľadáte tiché prostredie a veľkorysý pozemok, tak je tento dom tou správnou voľbou. Pozemok je dostatočne veľký na vytvorenie záhradky, detského ihriska, postavenie bazénu, či garáže, alebo na iné využitie podľa preferencií nových majiteľov. V prípade záujmu je možné dom dokončiť.
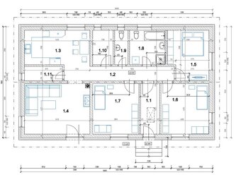
Nehnuteľnosť ponúka 152 m² zastavanej plochy, ktorá je efektívne využitá na komfortné bývanie. Táto plocha zahŕňa otvorený obývací priestor s predprípravou na krb, ktorý plynule prechádza do kuchyne, 3 izby, modernú kúpeľňu s predprípravou na sprchovací kút, vaňu a závesné WC, komoru a technickú miestnosť (s predprípravou na rekuperáciu a s prístupom k rozvodom podlahového kúrenia), samostatné WC a vstupnú chodbu s výstupom na povalu, ktorá poskytuje dostatok úložného priestoru.
Aktuálny stav domu:
- dom je napojený na IS – elektrina, voda, kanalizácia
- stavebný materiál: tvárnice Solbet
- tepelná izolácia obvodových múrov je z izolačného polystyrénu s hrúbkou
18 cm
- sedlová strecha pokrytá kanadským šindľom IKO Xtreme
- izolácia stropov minerálnou vlnou s hrúbkou 30 cm
- 6-komorové plastové okná s izolačným trojsklom
- vnútorné a vonkajšie parapety a omietky
- elektroinštalácia a zásuvky
- príprava vývodov pre rekuperačnú jednotku, kamerový systém a krb
- teplovodné podlahové kúrenie s poterom
- pozemok oplotený z 3 strán
V cene holodomu je 1/4 podiel na prístupovej ceste k pozemku a parkovacie miesto (9,7x2,8 m).
BENEFITY DOMU:
- praktická dispozícia
- súkromný areál pre 4 rodinné domy
- veľkorysý pozemok
- možnosť dokončenia domu
Obec Vajkovce,ktorá je vzdialená 11 km od Košíc, ponúka dobrú občiansku vybavenosť. Vďaka svojej polohe v blízkosti Košíc poskytuje kombináciu pokojného vidieckeho prostredia s rýchlym prístupom do mesta a k jeho kompletným službám. V obci sa nachádza materská škola, obchod, reštaurácia, kostol, (ZŠ je v obciach Budimír a Rozhanovce). Obec je obklopená prírodou, ponúka cyklotrasy, možnosti na turistiku, hubárčenie atď.
Cena 336.000.- Eur je vrátane provízie a kompletného právneho servisu spojeného s kúpou nehnuteľnosti (vypracovanie kúpnych zmlúv advokátom, poplatky za autorizáciu podpisov predávajúceho, kolky za štandardné podanie návrhu na vklad kúpnych zmlúv do katastra prostredníctvom advokáta).
Bližšie informácie Vám radi poskytneme na telefónnom čísle 0907 406 460 – Ing. Diana Jirkovská - certifikovaný realitný maklér NARKS
Zastavaná plocha: 152m²
Obytná plocha: 152m²
Celková rozloha: 950m²
Rozloha pozemku: 950m²
Úžitková plocha: 152m²
Stav: holopriestor
El. napätie: 230/400V
Plyn: nie
Kanalizácia: áno
Pivnica: nie
Postavené z: iné
Krb: predpríprava
Energetický certifikát: áno
T
Nehnuteľnosť ponúka 152 m² zastavanej plochy, ktorá je efektívne využitá na komfortné bývanie. Táto plocha zahŕňa otvorený obývací priestor s predprípravou na krb, ktorý plynule prechádza do kuchyne, 3 izby, modernú kúpeľňu s predprípravou na sprchovací kút, vaňu a závesné WC, komoru a technickú miestnosť (s predprípravou na rekuperáciu a s prístupom k rozvodom podlahového kúrenia), samostatné WC a vstupnú chodbu s výstupom na povalu, ktorá poskytuje dostatok úložného priestoru.
Aktuálny stav domu:
- dom je napojený na IS – elektrina, voda, kanalizácia
- stavebný materiál: tvárnice Solbet
- tepelná izolácia obvodových múrov je z izolačného polystyrénu s hrúbkou
18 cm
- sedlová strecha pokrytá kanadským šindľom IKO Xtreme
- izolácia stropov minerálnou vlnou s hrúbkou 30 cm
- 6-komorové plastové okná s izolačným trojsklom
- vnútorné a vonkajšie parapety a omietky
- elektroinštalácia a zásuvky
- príprava vývodov pre rekuperačnú jednotku, kamerový systém a krb
- teplovodné podlahové kúrenie s poterom
- pozemok oplotený z 3 strán
V cene holodomu je 1/4 podiel na prístupovej ceste k pozemku a parkovacie miesto (9,7x2,8 m).
BENEFITY DOMU:
- praktická dispozícia
- súkromný areál pre 4 rodinné domy
- veľkorysý pozemok
- možnosť dokončenia domu
Obec Vajkovce,ktorá je vzdialená 11 km od Košíc, ponúka dobrú občiansku vybavenosť. Vďaka svojej polohe v blízkosti Košíc poskytuje kombináciu pokojného vidieckeho prostredia s rýchlym prístupom do mesta a k jeho kompletným službám. V obci sa nachádza materská škola, obchod, reštaurácia, kostol, (ZŠ je v obciach Budimír a Rozhanovce). Obec je obklopená prírodou, ponúka cyklotrasy, možnosti na turistiku, hubárčenie atď.
Cena 336.000.- Eur je vrátane provízie a kompletného právneho servisu spojeného s kúpou nehnuteľnosti (vypracovanie kúpnych zmlúv advokátom, poplatky za autorizáciu podpisov predávajúceho, kolky za štandardné podanie návrhu na vklad kúpnych zmlúv do katastra prostredníctvom advokáta).
Bližšie informácie Vám radi poskytneme na telefónnom čísle 0907 406 460 – Ing. Diana Jirkovská - certifikovaný realitný maklér NARKS
Zastavaná plocha: 152m²
Obytná plocha: 152m²
Celková rozloha: 950m²
Rozloha pozemku: 950m²
Úžitková plocha: 152m²
Stav: holopriestor
El. napätie: 230/400V
Plyn: nie
Kanalizácia: áno
Pivnica: nie
Postavené z: iné
Krb: predpríprava
Energetický certifikát: áno
T
|
| |||||||||||||||||||||||||||||||
Kontaktovať inzerenta e-mailom
Kontaktovať e-mailom môže iba overený užívateľ.
Overenie je zadarmo.
Vaše telefónne číslo *
Kontaktovať e-mailom môže iba overený užívateľ.
Overenie je zadarmo.
Vaše telefónne číslo *





