Posledný bungalov v Mlynici – cena za štandard
- TOP - [20.11. 2025]Zmazať/ Upraviť/ Topovať




















REALITY KAMZÍK ponúka na predaj posledný moderný 4-izbový tehlový bungalov v novej a tichej lokalite obce Mlynica (okres Poprad).
Projekt má len 14 rodinných domov, čo zaručuje súkromie, pokoj a krásne výhľady na Vysoké Tatry.
📐 Parametre:
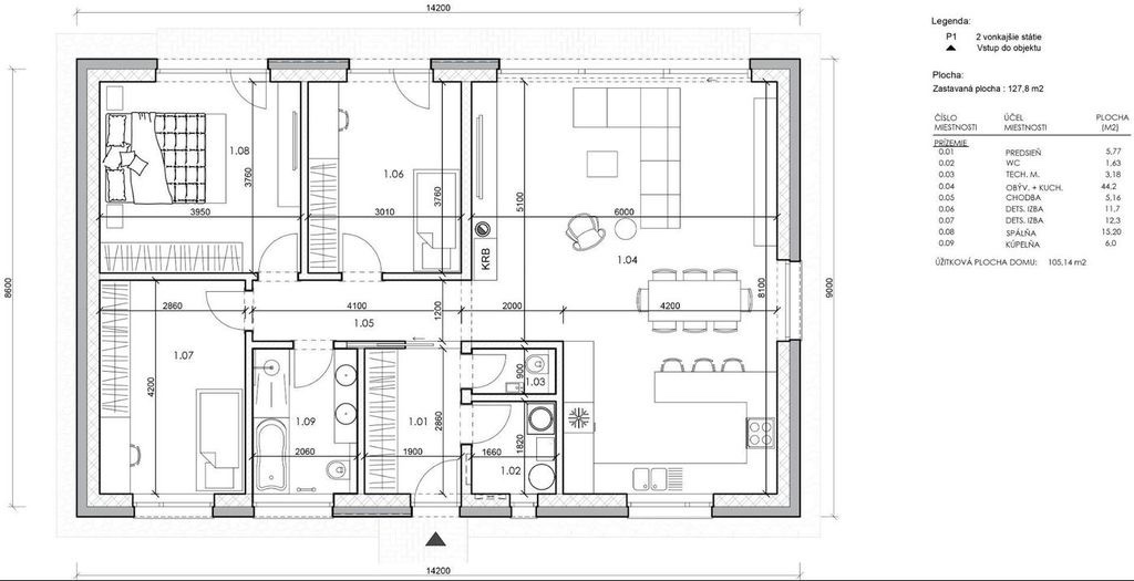
Úžitková plocha: 105 m²
Zastavaná plocha: 127 m²
Pozemok: 630 m²
🏠 Dispozícia:
- priestranná obývačka s kuchyňou a otvoreným stropom
- 3 samostatné izby
- kúpeľňa s vaňou, sprchovým kútom a WC
- samostatné WC s umývadlom
- technická miestnosť
✨ Dom sa predáva v štandarde – cena je za dokončený bungalov!
- hotová fasáda, okná, dvere
- všetky inžinierske siete (voda, elektrina, kanalizácia, predpríprava na optiku)
omietky, rozvody, podlahové kúrenie
- tepelné čerpadlo
- lokálna rekuperácia (3 jednotky)
- pripravený na kolaudáciu
Interiér si môžete dokončiť podľa vlastného vkusu, alebo Vám ho radi dokončíme na mieru podľa Vašich predstáv.
⚡ Výhody:
- nízkoenergetický dom – energetická trieda A0
-podlahové kúrenie
-nízke mesačné náklady
📍 Lokalita:
Tichá, nová časť obce Mlynica – len pár minút od Popradu.
Krásne prostredie, výborná dostupnosť, občianska vybavenosť v blízkosti.
💰 Financovanie:
- možnosť hypotéky aj postupného financovania
- kompletný právny servis v cene
- možnosť odpočtu DPH
Projekt má len 14 rodinných domov, čo zaručuje súkromie, pokoj a krásne výhľady na Vysoké Tatry.
📐 Parametre:
Úžitková plocha: 105 m²
Zastavaná plocha: 127 m²
Pozemok: 630 m²
🏠 Dispozícia:
- priestranná obývačka s kuchyňou a otvoreným stropom
- 3 samostatné izby
- kúpeľňa s vaňou, sprchovým kútom a WC
- samostatné WC s umývadlom
- technická miestnosť
✨ Dom sa predáva v štandarde – cena je za dokončený bungalov!
- hotová fasáda, okná, dvere
- všetky inžinierske siete (voda, elektrina, kanalizácia, predpríprava na optiku)
omietky, rozvody, podlahové kúrenie
- tepelné čerpadlo
- lokálna rekuperácia (3 jednotky)
- pripravený na kolaudáciu
Interiér si môžete dokončiť podľa vlastného vkusu, alebo Vám ho radi dokončíme na mieru podľa Vašich predstáv.
⚡ Výhody:
- nízkoenergetický dom – energetická trieda A0
-podlahové kúrenie
-nízke mesačné náklady
📍 Lokalita:
Tichá, nová časť obce Mlynica – len pár minút od Popradu.
Krásne prostredie, výborná dostupnosť, občianska vybavenosť v blízkosti.
💰 Financovanie:
- možnosť hypotéky aj postupného financovania
- kompletný právny servis v cene
- možnosť odpočtu DPH
|
| |||||||||||||||||||||||||||||||
Kontaktovať inzerenta e-mailom
Kontaktovať e-mailom môže iba overený užívateľ.
Overenie je zadarmo.
Vaše telefónne číslo *
Kontaktovať e-mailom môže iba overený užívateľ.
Overenie je zadarmo.
Vaše telefónne číslo *