Veľký 6i. RD a garážou, 612m2 pozemok, obec Smolenice
- [17.11. 2025]Zmazať/ Upraviť/ Topovať






























# Možnosť využívať na trvalé bývanie, ale aj na podnikateľské aktivity #
Ponúkame na predaj veľký 6 izbový rodinný dom po rekonštrukcii v obci Smolenice ktorá sa nachádza na úpätí Malých Karpát. Ide o 22 ročný TEHLOVÝ samostatne stojaci čiastočne podpivničený dom situovaný v centre obce (mimo hlavnej cesty) na peknom a slnečnom pozemku o rozlohe 612m2. Zastavaná plocha domu je 150m2.
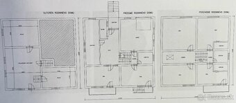
Dispozičné riešenie:
1.NP.: vstupná hala s Walk In šatníkom, priestranná kuchyňa, garáž s elektrickou bránou, izba s balkónom, druhá izba s vlastnou kuchyňou a s priamim vstupom na záhradu.
2.NP.: chodba, kúpeľňa, 4x izba (dve izby s vlastnou kúpeľňou a jedna aj s balkónom)
Suterén: veľká spoločenská miestnosť (pre 20 ľudí) s priamim vstupom na záhradu, 2x skladový priestor, vínna pivnica o rozlohe 12m2.
V celom dome sú plastové okná so žalúziami, v roku 2024 boli kompletne a moderne zrekonštruované všetky kúpeľňe, priestranná kuch. linka s dostatkom pracovnej plochy, kúrenie a ohrev vody prostredníctvom plynového kotla a radiátorov s možnosťou kúrenia aj tuhým palivom + 200l elektrický bojler, v každej izbe zavedené satelitné programy atď. TREBA VIDIEŤ!
Pozemok je slnečný s ideálnou šírkou. Na pozemku sa nachádza altánok, detské ihrisko, trampolína, krb a ohnisko na opekanie. Parkovanie možné priamo vo dvore (2 autá), pred domom (3 autá) a jedno auto v garáži. Dom je napojený na všetky inžinierske siete: obecná voda, elektrika, plyn, kanalizácia a optická prípojka priamo pred domom.
Nehnuteľnosť je dlhodobo využívaná ako ubytovacie zariadenie - Penzión. V prípade investično podnikateľského záujmu kúpy je možné ihneď pokračovať ďalej v prevádzkovaní Penziónu, nakoľko je k dispozícii kompletné zariadenie a vybavenie ( aktuálne 15 lôžok s možnosťou rozšírenia) vrátane KNOW HOW, webovej stránky, integrácie do google vyhľadávača a pod.
Nehnuteľnosť sa nachádza samotnom centre Smoleníc s výbornou dostupnosťou občianskej vybavenosti ako napr.: reštaurácie, pizzéria, ZŠ a MŠ, fitnes centrum, zdravotné stredisko, potraviny, pošta atď. Obec je známa Smolenickým zámkom, jaskyňou Driny, Včelovinou a pod. Na svoje si prídu aj milovníci turistiky.
Kúpa možná aj prostredníctvom Hypotekárneho Úveru s ktorého vybavením Vám radi bezplatne pomôžeme.
Možná výmena za 1i-2i-3 izbový byt v Trnave s doplatkom.
Viac informácii a dohodnutie obhliadky na čísle: 0905 857 987. Tešíme sa na spoluprácu
Ponúkame na predaj veľký 6 izbový rodinný dom po rekonštrukcii v obci Smolenice ktorá sa nachádza na úpätí Malých Karpát. Ide o 22 ročný TEHLOVÝ samostatne stojaci čiastočne podpivničený dom situovaný v centre obce (mimo hlavnej cesty) na peknom a slnečnom pozemku o rozlohe 612m2. Zastavaná plocha domu je 150m2.
Dispozičné riešenie:
1.NP.: vstupná hala s Walk In šatníkom, priestranná kuchyňa, garáž s elektrickou bránou, izba s balkónom, druhá izba s vlastnou kuchyňou a s priamim vstupom na záhradu.
2.NP.: chodba, kúpeľňa, 4x izba (dve izby s vlastnou kúpeľňou a jedna aj s balkónom)
Suterén: veľká spoločenská miestnosť (pre 20 ľudí) s priamim vstupom na záhradu, 2x skladový priestor, vínna pivnica o rozlohe 12m2.
V celom dome sú plastové okná so žalúziami, v roku 2024 boli kompletne a moderne zrekonštruované všetky kúpeľňe, priestranná kuch. linka s dostatkom pracovnej plochy, kúrenie a ohrev vody prostredníctvom plynového kotla a radiátorov s možnosťou kúrenia aj tuhým palivom + 200l elektrický bojler, v každej izbe zavedené satelitné programy atď. TREBA VIDIEŤ!
Pozemok je slnečný s ideálnou šírkou. Na pozemku sa nachádza altánok, detské ihrisko, trampolína, krb a ohnisko na opekanie. Parkovanie možné priamo vo dvore (2 autá), pred domom (3 autá) a jedno auto v garáži. Dom je napojený na všetky inžinierske siete: obecná voda, elektrika, plyn, kanalizácia a optická prípojka priamo pred domom.
Nehnuteľnosť je dlhodobo využívaná ako ubytovacie zariadenie - Penzión. V prípade investično podnikateľského záujmu kúpy je možné ihneď pokračovať ďalej v prevádzkovaní Penziónu, nakoľko je k dispozícii kompletné zariadenie a vybavenie ( aktuálne 15 lôžok s možnosťou rozšírenia) vrátane KNOW HOW, webovej stránky, integrácie do google vyhľadávača a pod.
Nehnuteľnosť sa nachádza samotnom centre Smoleníc s výbornou dostupnosťou občianskej vybavenosti ako napr.: reštaurácie, pizzéria, ZŠ a MŠ, fitnes centrum, zdravotné stredisko, potraviny, pošta atď. Obec je známa Smolenickým zámkom, jaskyňou Driny, Včelovinou a pod. Na svoje si prídu aj milovníci turistiky.
Kúpa možná aj prostredníctvom Hypotekárneho Úveru s ktorého vybavením Vám radi bezplatne pomôžeme.
Možná výmena za 1i-2i-3 izbový byt v Trnave s doplatkom.
Viac informácii a dohodnutie obhliadky na čísle: 0905 857 987. Tešíme sa na spoluprácu
|
| |||||||||||||||||||||||||||||||
Kontaktovať inzerenta e-mailom
Kontaktovať e-mailom môže iba overený užívateľ.
Overenie je zadarmo.
Vaše telefónne číslo *
Kontaktovať e-mailom môže iba overený užívateľ.
Overenie je zadarmo.
Vaše telefónne číslo *









