Na predaj rodinný dom-chalupa Sasinkovo len 10km od HC
- [17.11. 2025]Zmazať/ Upraviť/ Topovať






















Na predaj rodinný dom v tichej uličke v obci Sasinkovo len 10km od Hlohovca 24km od Nitry.
Dom je vhodný na rekonštrukciu podľa predstáv ponúkame Vám stavebno-technické poradenstvo kvalifikovanými majstrami o stave domu a možnej rekonštrukcií, vytvorenie nezáväznej cenovej ponuky podľa osobitých kritérií.
Nehnuteľnosť ponúka ideálne miesto na pokojné trvalé bývanie alebo rekreačné chalupárčenie, nachádza v tichej ulici s dobrými susedmi, mierne stúpajúci rozsiahly pozemok o výmere 2034m2 ponúka dostatočné súkromie a pekný výhľad na okolitú prírodu.
Na pozemku sa nachádza množstvo ovocných stromov, chovajú sa sliepky na domáce vajíčka.
Nová elektrická prípojka zavedená do domu a nová prípojka vody na obecný vodovod. Na pozemku sa taktiež nachádza pivnica, hospodárske budovy a funkčná studňa.
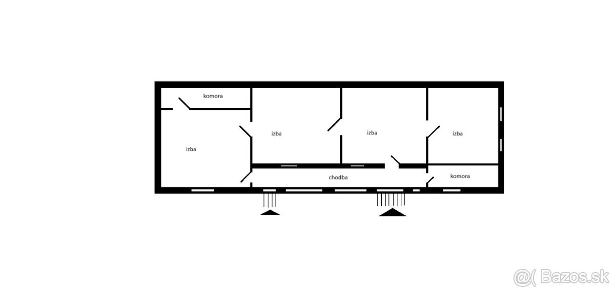
Dispozičné riešenie domu -Vstupná dlhá chodba – 4 izby – 1 komora – 1 miestnosť vhodná pre budúcu kúpeľňu.
Dom je v dobrom technickom stave postavený z pálených tehál a kvádrov, zachovalý krov.
Obec je kompletne občiansky vybavená dobrá dostupnosť do mesta aj autobusovou dopravou.
V prípade otázok a obhliadky nás neváhajte kedykoľvek kontaktovať na tel.č. 0902110217- DOSTUPNÉ REALITY s.r.o. STAVEBNO-REALITNÁ FIRMA
Dom je vhodný na rekonštrukciu podľa predstáv ponúkame Vám stavebno-technické poradenstvo kvalifikovanými majstrami o stave domu a možnej rekonštrukcií, vytvorenie nezáväznej cenovej ponuky podľa osobitých kritérií.
Nehnuteľnosť ponúka ideálne miesto na pokojné trvalé bývanie alebo rekreačné chalupárčenie, nachádza v tichej ulici s dobrými susedmi, mierne stúpajúci rozsiahly pozemok o výmere 2034m2 ponúka dostatočné súkromie a pekný výhľad na okolitú prírodu.
Na pozemku sa nachádza množstvo ovocných stromov, chovajú sa sliepky na domáce vajíčka.
Nová elektrická prípojka zavedená do domu a nová prípojka vody na obecný vodovod. Na pozemku sa taktiež nachádza pivnica, hospodárske budovy a funkčná studňa.
Dispozičné riešenie domu -Vstupná dlhá chodba – 4 izby – 1 komora – 1 miestnosť vhodná pre budúcu kúpeľňu.
Dom je v dobrom technickom stave postavený z pálených tehál a kvádrov, zachovalý krov.
Obec je kompletne občiansky vybavená dobrá dostupnosť do mesta aj autobusovou dopravou.
V prípade otázok a obhliadky nás neváhajte kedykoľvek kontaktovať na tel.č. 0902110217- DOSTUPNÉ REALITY s.r.o. STAVEBNO-REALITNÁ FIRMA
|
| |||||||||||||||||||||||||||||||
Kontaktovať inzerenta e-mailom
Kontaktovať e-mailom môže iba overený užívateľ.
Overenie je zadarmo.
Vaše telefónne číslo *
Kontaktovať e-mailom môže iba overený užívateľ.
Overenie je zadarmo.
Vaše telefónne číslo *
Podobné inzeráty
Starší rodinný dom s 20 á pozemkom v Sasinkove na predaj - [15.11. 2025]Ponúkame na predaj starší rodinný dom situovaný v tichej a pokojnej časti obce Sasinkovo. Dom sa nachádza na priestrannom, slnečnom a mierne svahovitom pozemku, ktorý poskytuje množstvo možností na ďalšie využitie. Nehnuteľnosť je v pôvodnom stave a je ideálna na kompletnú rekonštrukciu podľa vlastn ...
77 000 €
Hlohovec
920 65
920 65
170 x
Označiť zlý inzerát Chybnú kategóriu Ohodnotiť užívateľa Zmazať/Upraviť/Topovať
Rozostavaný dom na 597 m² pozemku – Sasinkovo - [14.11. 2025]Typ: Rodinný dom
Ulica: Sasinkovo
Obec: Sasinkovo
Ponúkame na predaj rozostavaný rodinný dom nachádzajúci sa v obci Sasinkovo. Nehnuteľnosť stojí na pozemku s výmerou 597 m² a aktuálne sú na dome vytiahnuté obvodové múry, čo predstavuje ideálny základ pre pokračovanie výstavby podľa vlastných p ...
85 000 €
Hlohovec
920 65
920 65
167 x
Označiť zlý inzerát Chybnú kategóriu Ohodnotiť užívateľa Zmazať/Upraviť/Topovať
NA PREDAJ - Rodinný dom so záhradou v Sasinkove - [9.11. 2025]*** KOLLÁR REALITY ***
Vám ponúka na predaj rodinný dom v krásnom prostredí obce Sasinkovo neďaleko Hlohovca.
Výmera:
Dom - 140 m2
Pozemok - 700 m2
Dispozícia:
Dom sa delí na dve časti, čo umožňuje využiť ho aj ako dvojgeneračný.
Prvá časť - vstupná chodba, kuchyň ...
104 900 €
Hlohovec
920 65
920 65
246 x
Označiť zlý inzerát Chybnú kategóriu Ohodnotiť užívateľa Zmazať/Upraviť/Topovať
Rodinný dom v Sasinkove, okr. Hlohovec so samostatným vstupo - [15.10. 2025]Ponúkame na predaj nehnuteľnosť, ktorá tvorí samostatnú bytovú jednotku s vlastným vstupom a úžitkovou plochou 140 m². Nachádza sa na dvoch nadzemných podlažiach a disponuje praktickou dispozíciou vhodnou aj pre viacčlennú rodinu.
K domu patrí aj spoločný dvor a pozemok o výmere 2 536 m², ktoré posk ...
102 000 €
Hlohovec
920 65
920 65
458 x
Označiť zlý inzerát Chybnú kategóriu Ohodnotiť užívateľa Zmazať/Upraviť/Topovať
Stavebné pozemky Sasinkovo pri Hlohovci - [14.10. 2025]Exkluzívne iba u nás ponúkame stavebné pozemky v novovybudovanej lokalite v obci Sasinkovo.
V novovybudovanej lokalite v obci Sasinkovo - IBV - POD LIPOU, s vlastnou prístupovou cestou, chodníkom, osvetlením. V danej lokalite bude k dispozícii 7pozemkov.
inžinierske siete - elektrika, obecný vodov ...
44 900 €
Hlohovec
920 65
920 65
611 x
Označiť zlý inzerát Chybnú kategóriu Ohodnotiť užívateľa Zmazať/Upraviť/Topovať
PNORF – novostavba 4i RD, terasa, garáž, 600 m2, Sasinkovo - TOP - [18.10. 2025]Extrémna zľava/Exkluzívne iba v PNORF – REAL ESTATE ponúkame na predaj samostatnú novostavbu nízkoenergetického jednopodlažného 4i rodinného holodomu s terasou a garážou na južnom svahu uprostred zástavby rodinných domov v centrálnej časti obce Sasinkovo len 8 min. cesty autom od Hlohovca.
Disp ...
Dohodou
Hlohovec
920 65
920 65
734 x
Označiť zlý inzerát Chybnú kategóriu Ohodnotiť užívateľa Zmazať/Upraviť/Topovať

