Predaj: Kompletne zrekonštruovaný 3-izbový byt v srdci Košíc
- [17.11. 2025]Zmazať/ Upraviť/ Topovať





















Hľadáte moderný a pohodlný byt v dynamickej časti Košíc? Ponúkame na predaj tento slnečný 3-izbový byt s podlahovou plochou 63 m² (vrátane pivnice 1 m²) na 1. poschodí v zrekonštruovanom bytovom dome s výťahom. Lokalita Košice - Juh (Rastislavova ulica - na krok od zastávky Dom umenia), je perfektná: blízko centra, obchodov, škôl, MHD a zelených parkov – všetko na dosah ruky!
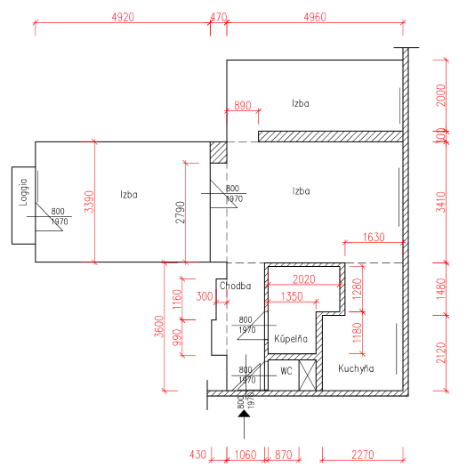
Priestranná dispozícia: 2 nepriechodné izby, "open space" obývačka, samostatná kuchyňa, kúpeľňa so sprchovým kútom, oddelené WC, predsieň a balkón na relax.
Kompletná rekonštrukcia: Byt prešiel modernizáciou v rokoch 2007, 2009 a 2020 – plastové okná, nové rozvody, parketová podlaha, centrálne kúrenie a teplá voda. Všetko v top stave, zariadené a pripravené na okamžité nasťahovanie!
Samotný bytový dom taktiež prešiel kompletnou obnovov - strecha a zvislé rozvody, zateplenie (, obnova balkónov a nový výtah.
V okolí nehnutelnosti je plná občanská vybavenosť:
Obchody a služby: Supermarkety ako Billa, Fresh Plus alebo Klas v blízkom okolí ako aj lekáne, banky, pošta a velký výber kaviarní . V pešej dostupnosti nájdete obchodné centrá ako Aupark alebo OC Galéria
Školy a škôlky: V pešej dostupnosti 15 – 20 minút nájdete hneď niekoľko materských škôlok alebo základných škol
Zeleň a relax: Parky a detské ihriská v okolí
Doprava na jedničku: Zastávka autobusu aj električky je vzdialená len 5 minút (Dom umenia), do centra mesta sa pešo dostanete za 15 min., verejné parkovanie priamo pred bytovkou
Tento byt je ako stvorený pre mladú rodinu, pár alebo jednotlivca, čo chcú mať všetko poruke: výbornú dostupnosť do centra Košíc, kompletnú občiansku vybavenosť priamo pod nosom a zároveň hladajú pokojnú mestskú časť, kde sa dobre býva.
V prípade vážného záujmu a rychlého jednania DOHODA NA CENE MOŽNÁ!
Možnosť kúpy v hotovosti alebo prostredníctvom hypotekárneho úveru (s vybavením radi pomôžeme).
Neváhajte a dohodnite si obhliadku ešte dnes!
Kontakt na makléra: Ing. Martin Řeháček, 0904637607, martin.rehacek@finix.sk
Priestranná dispozícia: 2 nepriechodné izby, "open space" obývačka, samostatná kuchyňa, kúpeľňa so sprchovým kútom, oddelené WC, predsieň a balkón na relax.
Kompletná rekonštrukcia: Byt prešiel modernizáciou v rokoch 2007, 2009 a 2020 – plastové okná, nové rozvody, parketová podlaha, centrálne kúrenie a teplá voda. Všetko v top stave, zariadené a pripravené na okamžité nasťahovanie!
Samotný bytový dom taktiež prešiel kompletnou obnovov - strecha a zvislé rozvody, zateplenie (, obnova balkónov a nový výtah.
V okolí nehnutelnosti je plná občanská vybavenosť:
Obchody a služby: Supermarkety ako Billa, Fresh Plus alebo Klas v blízkom okolí ako aj lekáne, banky, pošta a velký výber kaviarní . V pešej dostupnosti nájdete obchodné centrá ako Aupark alebo OC Galéria
Školy a škôlky: V pešej dostupnosti 15 – 20 minút nájdete hneď niekoľko materských škôlok alebo základných škol
Zeleň a relax: Parky a detské ihriská v okolí
Doprava na jedničku: Zastávka autobusu aj električky je vzdialená len 5 minút (Dom umenia), do centra mesta sa pešo dostanete za 15 min., verejné parkovanie priamo pred bytovkou
Tento byt je ako stvorený pre mladú rodinu, pár alebo jednotlivca, čo chcú mať všetko poruke: výbornú dostupnosť do centra Košíc, kompletnú občiansku vybavenosť priamo pod nosom a zároveň hladajú pokojnú mestskú časť, kde sa dobre býva.
V prípade vážného záujmu a rychlého jednania DOHODA NA CENE MOŽNÁ!
Možnosť kúpy v hotovosti alebo prostredníctvom hypotekárneho úveru (s vybavením radi pomôžeme).
Neváhajte a dohodnite si obhliadku ešte dnes!
Kontakt na makléra: Ing. Martin Řeháček, 0904637607, martin.rehacek@finix.sk
|
| |||||||||||||||||||||||||||||||
Kontaktovať inzerenta e-mailom
Kontaktovať e-mailom môže iba overený užívateľ.
Overenie je zadarmo.
Vaše telefónne číslo *
Kontaktovať e-mailom môže iba overený užívateľ.
Overenie je zadarmo.
Vaše telefónne číslo *
