HALO reality - Predaj, rodinný dom Veľké Úľany - VO VÝSTAVBE
- [17.11. 2025]Zmazať/ Upraviť/ Topovať










Ponúkame na predaj rozostavaný rodinný dom v tichej uličke vo Veľkých Úľanoch.
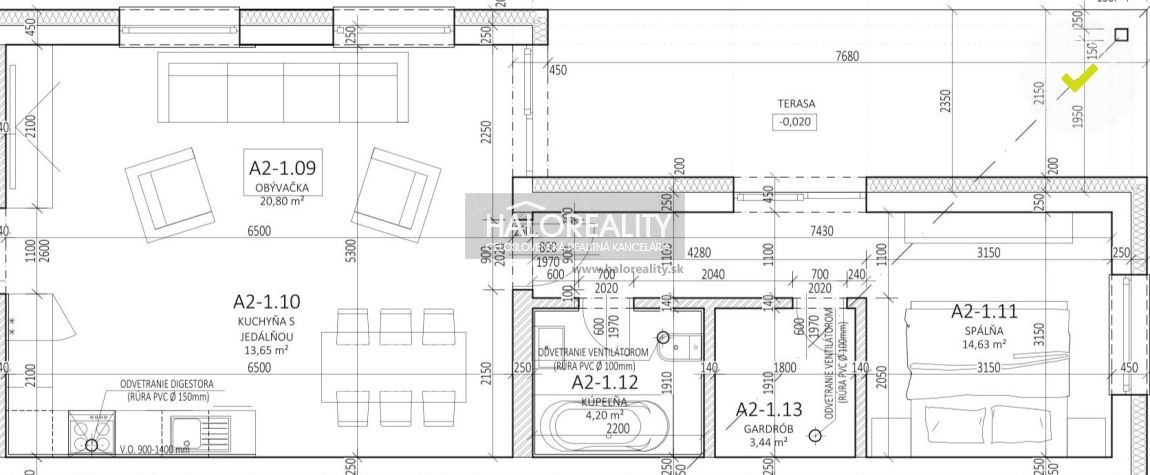
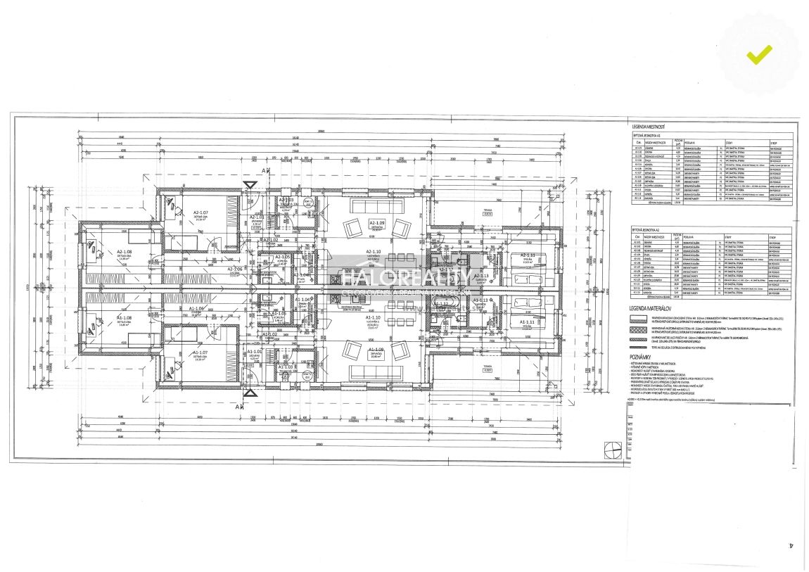
DISPOZÍCIA:
Tento premyslene koncipovaný RD je tvorený dvomi blokmi, spojenými chodbou:
Detskú časť tvoria:
-dve detské izby
-samostatná kúpeľňa
-technická miestnosť s WC
Dospelácku časť tvoria:
-kuchyňa s jedálňou, ktorá je prepojená s obývačkou
-rodičovská spálňa s priľahlým šatníkom a kúpeľňou
-špajza
Dispozičné riešenie prakticky dopĺňa zádverie s chodbou a prestupy na terasu z obývačky aj spálne.
Vykurovanie je zabezpečené tepelným čerpadlom (vzduch-voda) v kombinácii s podlahovým vykurovaním. V dome je zavedený optický internet. Pochôdzna povala s prístupom zo zádveria poskytuje dostatočný úložný priestor.
Pred domom bude prístrešok/garáž s prípojkou na nabíjanie elektromobilov. Dom je súčasťou symetrického dvojdomu, je možné sa samozrejme baviť o predaji celého dvojdomu.
STAV NEHNUTEĽNOSTI:
Nehnuteľnosť je v štádiu výstavby a dokončovacích prác, v stave holodom bude k dispozícii na jar 2026. V prípade dohody, je možné ho dokončiť do štandardu. V dome je príprava na klimatizáciu, kamerový systém.
VÝHODY:
Nesmiernou výhodou je poloha v tichej uličke. Dostatočné odsadenie stavby od hranice pozemku poskytuje budúcim vlastníkom mimoriadne súkromie.
LOKALITA:
Obec Veľké Úľany, situovaná vo Okres Galanta v Trnavskom kraji, ponúka ideálne miesto pre rodinné bývanie. Leží približne 12 km od mesta Galanta medzi riekami Malý Dunaj a Čierna Voda – v pokojnej, rovinnej a prírodou dotknutej lokalite.
Obec disponuje dobrým občianskym vybavením – školou, kultúrnym domom, základnými službami a priestorom pre rodinný život mimo rušného mestského prostredia.
Vďaka svojej výhodnej polohe a dostupnosti je vhodná ako domov pre rodinu, ktorá hľadá kombináciu pokojného bývania a rýchleho prístupu k väčšej infraštruktúre.
Ak hľadáte miesto s pokojom, prirodzeným prostredím a dobrými možnosťami rozvoja, Veľké Úľany môžu byť práve tým správnym miestom pre Váš nový domov.
NÁZOR MAKLÉRA:
Šikovne zvolená dispozícia domu v spojení s tichou lokalitou v rámci obce Veľké Úľany dáva predpoklad pre spokojný domov pre mladú rodinu, oceňujúcu pokojné bývanie.
V blízkosti sa nachádza malé jazero s možnosťou vyžitia pre mladých, starších aj tých najmenších.
.
Bližšie informácie Vám radi poskytneme na telefónnom čísle 0905 889 977 alebo na lubomirfranta@haloreality.sk. ID ponuky: GA-71596.
Cena za nehnuteľnosť je KONEČNÁ, vrátane provízie, právneho servisu zabezpečeného advokátom, poradenstva, základného správneho poplatku na katastri a hypotekárnych služieb (viac na našej webovej stránke).
U NÁS MÁTE ISTOTU: --------------------------------------------------------
- sme JEDNOTKA na SLOVENSKOM REALITNOM TRHU, predávame 1 000 nehnuteľností ročne
- prvotriedny servis a služby po celom Slovensku, predávali sme už viac ako 70 000 NEHNUTEĽNOSTÍ
- na našom webe náj
DISPOZÍCIA:
Tento premyslene koncipovaný RD je tvorený dvomi blokmi, spojenými chodbou:
Detskú časť tvoria:
-dve detské izby
-samostatná kúpeľňa
-technická miestnosť s WC
Dospelácku časť tvoria:
-kuchyňa s jedálňou, ktorá je prepojená s obývačkou
-rodičovská spálňa s priľahlým šatníkom a kúpeľňou
-špajza
Dispozičné riešenie prakticky dopĺňa zádverie s chodbou a prestupy na terasu z obývačky aj spálne.
Vykurovanie je zabezpečené tepelným čerpadlom (vzduch-voda) v kombinácii s podlahovým vykurovaním. V dome je zavedený optický internet. Pochôdzna povala s prístupom zo zádveria poskytuje dostatočný úložný priestor.
Pred domom bude prístrešok/garáž s prípojkou na nabíjanie elektromobilov. Dom je súčasťou symetrického dvojdomu, je možné sa samozrejme baviť o predaji celého dvojdomu.
STAV NEHNUTEĽNOSTI:
Nehnuteľnosť je v štádiu výstavby a dokončovacích prác, v stave holodom bude k dispozícii na jar 2026. V prípade dohody, je možné ho dokončiť do štandardu. V dome je príprava na klimatizáciu, kamerový systém.
VÝHODY:
Nesmiernou výhodou je poloha v tichej uličke. Dostatočné odsadenie stavby od hranice pozemku poskytuje budúcim vlastníkom mimoriadne súkromie.
LOKALITA:
Obec Veľké Úľany, situovaná vo Okres Galanta v Trnavskom kraji, ponúka ideálne miesto pre rodinné bývanie. Leží približne 12 km od mesta Galanta medzi riekami Malý Dunaj a Čierna Voda – v pokojnej, rovinnej a prírodou dotknutej lokalite.
Obec disponuje dobrým občianskym vybavením – školou, kultúrnym domom, základnými službami a priestorom pre rodinný život mimo rušného mestského prostredia.
Vďaka svojej výhodnej polohe a dostupnosti je vhodná ako domov pre rodinu, ktorá hľadá kombináciu pokojného bývania a rýchleho prístupu k väčšej infraštruktúre.
Ak hľadáte miesto s pokojom, prirodzeným prostredím a dobrými možnosťami rozvoja, Veľké Úľany môžu byť práve tým správnym miestom pre Váš nový domov.
NÁZOR MAKLÉRA:
Šikovne zvolená dispozícia domu v spojení s tichou lokalitou v rámci obce Veľké Úľany dáva predpoklad pre spokojný domov pre mladú rodinu, oceňujúcu pokojné bývanie.
V blízkosti sa nachádza malé jazero s možnosťou vyžitia pre mladých, starších aj tých najmenších.
.
Bližšie informácie Vám radi poskytneme na telefónnom čísle 0905 889 977 alebo na lubomirfranta@haloreality.sk. ID ponuky: GA-71596.
Cena za nehnuteľnosť je KONEČNÁ, vrátane provízie, právneho servisu zabezpečeného advokátom, poradenstva, základného správneho poplatku na katastri a hypotekárnych služieb (viac na našej webovej stránke).
U NÁS MÁTE ISTOTU: --------------------------------------------------------
- sme JEDNOTKA na SLOVENSKOM REALITNOM TRHU, predávame 1 000 nehnuteľností ročne
- prvotriedny servis a služby po celom Slovensku, predávali sme už viac ako 70 000 NEHNUTEĽNOSTÍ
- na našom webe náj
|
| |||||||||||||||||||||||||||||||
Kontaktovať inzerenta e-mailom
Kontaktovať e-mailom môže iba overený užívateľ.
Overenie je zadarmo.
Vaše telefónne číslo *
Kontaktovať e-mailom môže iba overený užívateľ.
Overenie je zadarmo.
Vaše telefónne číslo *