026h 3 izb. byt v apartmánovom komplexe Košice - Sever
- [17.11. 2025]Zmazať/ Upraviť/ Topovať


























Do dlhodobého nájmu ponúkame atypický bezbariérový byt s dvoma balkónmi v uzavretom obytnom komplexe a to vrátane parkovacieho miesta.
Lokalita: okrajová vilová štvrť mesta v susedstve obľúbenej rekreačnej zóny.
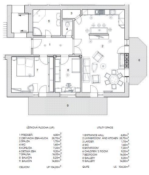
Popis bytu: Dispozícia bytu o rozlohe 104 m2 + balkóny je zrejmá z priloženého pôdorysu.
Byt umiestnený na 3.poschodí bytového domu je v nadštandardnom prevedení, drevené a keramické podlahy, kvalitné zariadenie, sanita, svietidlá, moderná kuchynská linka so spotrebičmi značky Bosch, samostatná priestranná kúpeľňa s práčkou a sušičkou, rohovou vaňou, sprchovým kútom s masážnym boxom a parnou saunou. Cez domový telefón je možné komunikovať s návštevou pri bráne. V kuchyni, WC a kúpeľni je aj podlahové kúrenie. V obývacej miestnosti je krb na drevo, zabudovaný systém domáceho kina, nezávislý TV, počítačový a telefónny rozvod. Televízny signál je možné prijímať cez satelitný rozvod telefónu T-com sieť (Magio), alebo UPS kábelový rozvod.
Popis areálu: Obytný komplex tvorí 11 apartmanových bytov a 4 rodinné domy so samostatnou infraštruktúrou a parkovaním pri dome, priamo v oplotenom a bezpečnom areály. Súčasťou dvorovej časti je aj oddychová zeleň s lavičkami a nočným záhradným osvetlením. Samozrejmosťou je aj detské ihrisko.
Kúrenie: plynový kotol, radiátory, + funkčný krb + podlahové kúrenie.
Dostupnosť: MHD.
Okolie a občianska vybavenosť: kompletná v blízkom okolí.
Mesačné nájomné za byt a jedno parkovacie miesto v areáli je 1 100,- € bez DPH. Platby nájmu sú kvartálne. K nájmu sa pripočítava platba za skutočnú spotrebu médií a služieb. Možnosť 2.parkovacieho miesta za poplatok 60,-€/mes.
Depozit:1 500,- €.
Uvedená cena je vrátane provízie realitnej kancelárie, v ktorej je zahrnuté vypracovanie nájomnej zmluvy a preberacieho protokolu.
Lokalita: okrajová vilová štvrť mesta v susedstve obľúbenej rekreačnej zóny.
Popis bytu: Dispozícia bytu o rozlohe 104 m2 + balkóny je zrejmá z priloženého pôdorysu.
Byt umiestnený na 3.poschodí bytového domu je v nadštandardnom prevedení, drevené a keramické podlahy, kvalitné zariadenie, sanita, svietidlá, moderná kuchynská linka so spotrebičmi značky Bosch, samostatná priestranná kúpeľňa s práčkou a sušičkou, rohovou vaňou, sprchovým kútom s masážnym boxom a parnou saunou. Cez domový telefón je možné komunikovať s návštevou pri bráne. V kuchyni, WC a kúpeľni je aj podlahové kúrenie. V obývacej miestnosti je krb na drevo, zabudovaný systém domáceho kina, nezávislý TV, počítačový a telefónny rozvod. Televízny signál je možné prijímať cez satelitný rozvod telefónu T-com sieť (Magio), alebo UPS kábelový rozvod.
Popis areálu: Obytný komplex tvorí 11 apartmanových bytov a 4 rodinné domy so samostatnou infraštruktúrou a parkovaním pri dome, priamo v oplotenom a bezpečnom areály. Súčasťou dvorovej časti je aj oddychová zeleň s lavičkami a nočným záhradným osvetlením. Samozrejmosťou je aj detské ihrisko.
Kúrenie: plynový kotol, radiátory, + funkčný krb + podlahové kúrenie.
Dostupnosť: MHD.
Okolie a občianska vybavenosť: kompletná v blízkom okolí.
Mesačné nájomné za byt a jedno parkovacie miesto v areáli je 1 100,- € bez DPH. Platby nájmu sú kvartálne. K nájmu sa pripočítava platba za skutočnú spotrebu médií a služieb. Možnosť 2.parkovacieho miesta za poplatok 60,-€/mes.
Depozit:1 500,- €.
Uvedená cena je vrátane provízie realitnej kancelárie, v ktorej je zahrnuté vypracovanie nájomnej zmluvy a preberacieho protokolu.
|
| |||||||||||||||||||||||||||||||
Kontaktovať inzerenta e-mailom
Kontaktovať e-mailom môže iba overený užívateľ.
Overenie je zadarmo.
Vaše telefónne číslo *
Kontaktovať e-mailom môže iba overený užívateľ.
Overenie je zadarmo.
Vaše telefónne číslo *
Podobné inzeráty
Dvoj/trojizbovy byt na prenajom - [19.11. 2025]Štátna organizácia hľadá byt s dvomi samostatnými neprechodnými spálňami (môže to byť aj byt bez obývačky) na dlhodobý prenájom v Košiciach. Bližšie informácie poskytneme telefonicky.
800 €
Košice
040 01
040 01
31 x
Označiť zlý inzerát Chybnú kategóriu Ohodnotiť užívateľa Zmazať/Upraviť/Topovať
Prenajom 3 iz, byt Kosice juh - [19.11. 2025]Bývanie v obľúbenej lokalite Žižkova – na prenájom zariadený 3-izbový byt
Parametre bytu:
• Výmera: 68 m² (68 m² byt + 6 m² loggia + kopka + špajza pred bytom)
• Poschodie: 3./8
• Výťah
• Stav: Po staršej čiastočnej rekonštrukcii, pripravený na okamžité bývanie
• Dispozícia: Byt má 3 izby, k ...
900 €
Košice
040 01
040 01
25 x
Označiť zlý inzerát Chybnú kategóriu Ohodnotiť užívateľa Zmazať/Upraviť/Topovať
Exkluzívny 4-izbový byt na prenájom - [19.11. 2025]Exkluzívne ponúkame na prenájom priestranný a štýlový 4-izbový byt v prestížnej lokalite Košice – Sever. Byt s úžitkovou plochou 200 m² a veľkou terasou ponúka komfortné bývanie pre náročných klientov.
Dispozícia a vybavenie:
3 samostatné spálne
2 kúpeľne (dva sprchové kúty, jedna vaňa)
2 toal ...
2 200 €
Košice
040 01
040 01
16 x
Označiť zlý inzerát Chybnú kategóriu Ohodnotiť užívateľa Zmazať/Upraviť/Topovať
Prenájom 3 izbového zariadeného mezonetu s parkovaním - [19.11. 2025]Ponúkame na prenájom priestranný 3-izbový mezonet v novostavbe na Hlavnej ulici v centre Košíc, priamo v pasáži Valentína. Byt sa nachádza na 2. poschodí domu s výťahom a k bytu prináleží aj parkovacie miesto v podzemnej garáži.
Základné informácie
• Výmera: 99 m²
• Dispozícia: 2 podlažia
• Po ...
1 100 €
Košice
040 01
040 01
38 x
Označiť zlý inzerát Chybnú kategóriu Ohodnotiť užívateľa Zmazať/Upraviť/Topovať
Furča 1.i byt - [19.11. 2025]Prenájom 1-izbového bytu
Ponúkam na prenájom priestranný 1-izbový byt s rozlohou 40 m² na sídlisku Furča v Košiciach. Byt je svetlý, udržiavaný a vhodný pre jednotlivca alebo pár.
Dispozícia a vybavenie:
priestranná izba obývačka s kuchyňou, spálňa, kúpeľňa a WC
Byt je vybavený: sklo keramick ...
670 €
Košice
040 01
040 01
23 x
Označiť zlý inzerát Chybnú kategóriu Ohodnotiť užívateľa Zmazať/Upraviť/Topovať
Ponúkame na prenájom pekný 3-izbový byt na Adlerovej ul. - [19.11. 2025]So súhlasom majiteľa ponúkame na prenájom pekný 3-izbový byt na Adlerovej ul. 1, sídlisko Dargovských hrdinov.
Byt má 71m2+ 6m loggiu, nachádza sa na 1. posch.
Byt je kompletne zariadený a vybavený, internet, Wi-FI, TV.
Dobrá lokalita s kompletnou občianskou vybavenosťou a dopravnou dostupnosťo ...
750 €
Košice
040 01
040 01
23 x
Označiť zlý inzerát Chybnú kategóriu Ohodnotiť užívateľa Zmazať/Upraviť/Topovať
Pkame na prenájom 1-izbový byt s loggiou na Palárikovej ul. - [19.11. 2025]
So súhlasom majiteľa ponúkame na prenájom 1-izbový byt s loggiou na Palárikovej ul.
Byt o výmere 38 m2, sa nachádza na 5. poschodí.
Rekonštrukcia bytu: murované jadro, plastové okná, pláv. podlahy, sanita v kúpeľni a WC, automatická práčka, zariadená kuchyňa: kuchynská linka, nový plyn. sporák ...
650 €
Košice
040 01
040 01
47 x
Označiť zlý inzerát Chybnú kategóriu Ohodnotiť užívateľa Zmazať/Upraviť/Topovať
Velky 1i byt 42m2 - [19.11. 2025]Ponukam na dlhodoby prenajom lokalita Ke-sever velky 1 izbovy byt s balkonom 42m2 vo vyhladavanej lokalite, v blizkosti centra, TUKE, Veterinarnej univerzity, UPJŠ.
Pre 1 osobu, pripadne par.
Bez zvierat.
Ulica: Bozeny Nemcovej
Poschodie: 8 z 11
Byt je cely cerstvo vymalovany, v celom byt ...
650 €
Košice
040 01
040 01
46 x
Označiť zlý inzerát Chybnú kategóriu Ohodnotiť užívateľa Zmazať/Upraviť/Topovať
Štýlový 1-izbový byt s terasou, parking a pivnica, ALBELLI - [19.11. 2025]Štýlový 1-izbový byt s terasou, parkovaním a pivnicou, Rezidencia Albelli
Realitná spoločnosť CassaReal vám ponúka na prenájom štýlový 1-izbový byt s priestrannou krytou slnečnou terasou, garážovým státím a pivnicou v atraktívnom rezidenčnom komplexe Albelli, Alvinczyho ulica č.28.
Komplex má ...
700 €
Košice
040 01
040 01
24 x
Označiť zlý inzerát Chybnú kategóriu Ohodnotiť užívateľa Zmazať/Upraviť/Topovať
NA PRENÁJOM 3-IZBOVÝ BYT S BALKÓNOM, UL. TYRŠOVO NÁBREŽIE - [19.11. 2025]Petersen Realitný servis Vám na prenájom ponúka 3-izbový byt situovaný vo vynikajúcej lokalite na ulici Tyršovo nábrežie.
Samotná nehnuteľnosť s kvalitnými materiálmi pozostáva z: vstupnej chodby, 2x priestrannej spálne, kúpeľne so sprchovým kútom oddelenej od toalety, krásnej kuchyne so vstavanými ...
850 €
Košice
040 01
040 01
23 x
Označiť zlý inzerát Chybnú kategóriu Ohodnotiť užívateľa Zmazať/Upraviť/Topovať





