Administratívna budova v TOP lokalite na PREDAJ, Plynárenská
- [17.11. 2025]Zmazať/ Upraviť/ Topovať




Ponúkame na PREDAJ administratívnu budovu na Plynárenskej ulici, v Bratislava II – Ružinov, v top lokalite, v tesnej blízkosti BBC1, BBC5, Apollo Business Center a bytových domov CityPark Ružinov.
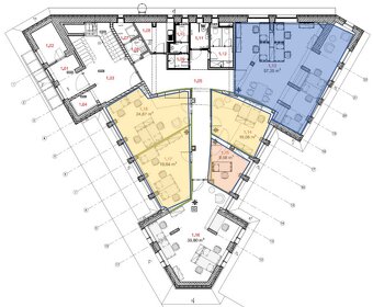
Budova bola kompletne zrekonštruovaná, má 2NP (aj výťah) a celkovú plochu 503m2. Disponuje 13 kanceláriami, kuchynkami a sociálnych zázemím. Vhodná ako sídlo firmy, škola a pod.
Aktuálne má 100% obsadenosť.
Zastávky MHD v tesnej blízkosti od budovy.
Cena 1.850.000 EUR + DPH. V cene je 5 parkovacích státí pred budovou, 4 parkovacie státia v areáli a 1 garážové státie vo vedľajšej budove.
Podrobnejšie informácie sú dostupné len pre overených záujemcov po prejavení vážneho záujmu.
Viac informácii u uvedeného realitného manažéra.
Budova bola kompletne zrekonštruovaná, má 2NP (aj výťah) a celkovú plochu 503m2. Disponuje 13 kanceláriami, kuchynkami a sociálnych zázemím. Vhodná ako sídlo firmy, škola a pod.
Aktuálne má 100% obsadenosť.
Zastávky MHD v tesnej blízkosti od budovy.
Cena 1.850.000 EUR + DPH. V cene je 5 parkovacích státí pred budovou, 4 parkovacie státia v areáli a 1 garážové státie vo vedľajšej budove.
Podrobnejšie informácie sú dostupné len pre overených záujemcov po prejavení vážneho záujmu.
Viac informácii u uvedeného realitného manažéra.
|
| |||||||||||||||||||||||||||||||
Kontaktovať inzerenta e-mailom
Kontaktovať e-mailom môže iba overený užívateľ.
Overenie je zadarmo.
Vaše telefónne číslo *
Kontaktovať e-mailom môže iba overený užívateľ.
Overenie je zadarmo.
Vaše telefónne číslo *