Obchodno-kancelársky priestor na prízemí, s vlastným vstupom
- [17.11. 2025]Zmazať/ Upraviť/ Topovať


















Ponúkame na prenájom kancelárske priestory v reprezentatívnej administratívnej budove v centre na Panenskej ulici, Bratislava 1 – Staré Mesto. Budova je umiestnená v tesnej blízkosti Palisád a Hodžovho námestia, na lukratívnej adrese neďaleko Prezidentského paláca.
Administratívna budova aktuálne prechádza kompletnou rekonštrukciou a od septembra 2025 budú k dispozícií rôzne typy priestorov, od menších – až po veľké samostatné celky s vlastnou kuchynkou a delenými toaletami.
Voľné priestory, napr.:
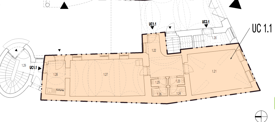
prízemie (1.NP): priestor s vlastným vstupom z dvora o celkovej ploche 79,15m2, celok 2-kancelárií s vlastnou kuchynkou a delenými toaletami priamo v priestore.
Priestory sú klimatizované, podlaha koberec/vinyl..
Veľkou výhodou je možnosť prenájmu spoločnej zasadačky s využitím rezervačného systému. Možnosť do-zariadenia nábytkom (stoly, stoličky, skrine).
Nájomné je od 11,50-12,50€/m2/mesiac + prevádzkové náklady a energie 4,90-5,50€/m2/mesiac + DPH.
Finálna cena nájmu bude závisieť od dĺžky nájmu a požadovaných úprav.
Kaucia 2-mesačné nájomné.
K väčším priestorom sú k dispozícií na prenájom vonkajšie parkovacie státia, cena: 130€/miesto/mesiac + DPH.
Záujemca neplatí províziu.
Viac informácii u uvedeného realitného manažéra.
Administratívna budova aktuálne prechádza kompletnou rekonštrukciou a od septembra 2025 budú k dispozícií rôzne typy priestorov, od menších – až po veľké samostatné celky s vlastnou kuchynkou a delenými toaletami.
Voľné priestory, napr.:
prízemie (1.NP): priestor s vlastným vstupom z dvora o celkovej ploche 79,15m2, celok 2-kancelárií s vlastnou kuchynkou a delenými toaletami priamo v priestore.
Priestory sú klimatizované, podlaha koberec/vinyl..
Veľkou výhodou je možnosť prenájmu spoločnej zasadačky s využitím rezervačného systému. Možnosť do-zariadenia nábytkom (stoly, stoličky, skrine).
Nájomné je od 11,50-12,50€/m2/mesiac + prevádzkové náklady a energie 4,90-5,50€/m2/mesiac + DPH.
Finálna cena nájmu bude závisieť od dĺžky nájmu a požadovaných úprav.
Kaucia 2-mesačné nájomné.
K väčším priestorom sú k dispozícií na prenájom vonkajšie parkovacie státia, cena: 130€/miesto/mesiac + DPH.
Záujemca neplatí províziu.
Viac informácii u uvedeného realitného manažéra.
|
| |||||||||||||||||||||||||||||||
Kontaktovať inzerenta e-mailom
Kontaktovať e-mailom môže iba overený užívateľ.
Overenie je zadarmo.
Vaše telefónne číslo *
Kontaktovať e-mailom môže iba overený užívateľ.
Overenie je zadarmo.
Vaše telefónne číslo *